刚刚,雨核G14项目户型图曝光,最小116㎡三室两厅两卫。同时,今天早上09:00起,大校场热盘云尚紫薇开启报名。
01、雨核G14户型曝光,最小116㎡起步!
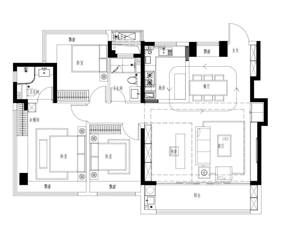
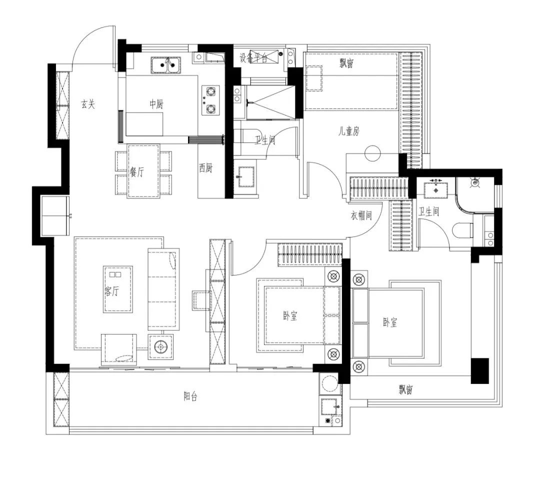
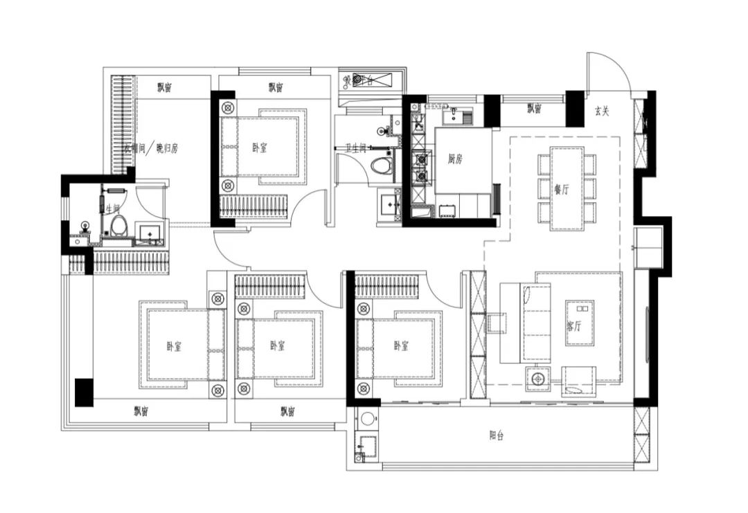
就在刚刚,雨核G14项目户型图曝光,主力户型有三种,分别是建面约116㎡三房两厅两卫、128㎡四房两厅两卫、143㎡四房两厅两卫。
建面约116㎡户型:

建面约128㎡户型:

建面约143㎡户型:

前几天,雨核G14地块释放招聘海报,目前正在组建销售团队,最快9月份公开,10月份开盘。

今年5月10日,雨核G14地块在第二次土拍中大火,经过激烈的73轮竞价,不到1分钟触顶,最终被厦门建发拿下,成交总价28.9亿元,成交楼面价28219.2元/㎡,楼面价刷新区域新高。

根据规划,厦门建发G14项目拟建8栋22-32F高层。

根据效果图显示,厦门建发G14运用“中式飞檐+玻璃幕墙”组成的高颜值外立面,打破了传统立面的沉闷,刷新了南京楼市产品的美学高度。

地块位于雨花数字城核心区域,处于软件谷北园、南园、西园的中心地带,同时也位于连接河西新城与南部新城的纽带上,是片区商业、产业、文体休闲等重要载体。
片区教育资源丰富,地块东侧已建成中华中学雨花校区、北侧规划建设小学、初中各一所,规划幼儿园两所。
东侧靠近片区配套建设的居住社区中心,配套较大规模的社区商业,可形成片区内公共生活配套中心。东南侧为数字城核心区地块,将由华润置地建设大型综合体商业及办公。
紧邻数字大道、机场二通道等城市主干道,可快速通达主城核心区、河西新城、南部新城以及南京南站,片区内路网已成型,通达性强。
毗邻地铁S3号线贾西站,可慢行、公交、机动车多种交通方式。地块东侧紧邻规划口袋公园,东南侧在建占地约290亩的雨花城市公园,周围环境优越。

02、均价4.7万/㎡,大校场热盘新领销许,即将加推!
云尚紫薇昨日(7月27日)领取C3号楼销许,共59套(人才12套、无房18套),建面约140、172㎡,全装修销许均价46296元/㎡,另有升级装修包4350元/㎡,首付3起。

摇号报名时间:7月28日上午9:00-7月29日上午9:00;
报名方式:报名人可通过关注公众号:南京房地产微政务,点击“房帮宁-买房报名-宁小通-商品房报名”进入报名通道进行线上报名。

户型图一览:
项目前身是南部新城会展中心G121地块,去年11月25日,经过竞拍,南部新城G121地块最终被南京南部新城会展中心发展有限公司以底价25.8亿夺得,楼面地价11896元/㎡,毛坯限价44998元/㎡。
此后,河西集团下属的奥体建设公司获得该项目住宅地块代建代销、商办地块代建业务。
根据规划,项目分为A、B、C、D四个分区。其中A、B分区是商办,C、D分区是住宅。共计规划12栋住宅,其中6栋8-9F、6栋16-18F住宅。
项目打造的是六恒科技住宅,装修风格高端,厨房采用博世的三件套和洗碗机、铂浪高的水龙头;卫生间采用高仪的花洒和水龙头,唯宝的台盆、悬浮式智能马桶等等。



此外,项目住宅部分采用“多层+小高层”模式,在大校场创新街区为独一家,其中多层得房率约85%,小高层得房率约79%。

奥体建设在南京的朋友都不会觉得陌生,首先想到的就是河西中的奥体新城,被人们称为“奥体新城植物园”,翠杉园、海棠园、丹枫园、清竹园、紫薇园等,其中最长交付时间已十余年,但小区里仍绿意层叠、花开四季,这一切离不开由奥体物业提供服务的。
奥体建设亲自开发建设的几个小区,最高成交价几乎都在5-6万/㎡左右,目前整体的二手房报价,也在6万/㎡左右,紫薇园甚至在7万/㎡以上!

南部新城占据着得天独厚的地理位置,是南京城市总体规划中确立的与新街口、河西新城并立的城市中心区,是南京当之无愧的中心板块。
另外,南部新城最大的亮点还在于那条2600多米长的跑道,后期还将打造成全国独一无二的机场公园。这条跑道未来将会成为这座城市的新地标、新名片。
在这里,交通便捷,生活氛围也十分浓厚。
片区内还将有6条地铁线,是主城内轨道线网最密集的区域之一,目前3号线已经运营,5、6、10号线二期还在建。值得一提的是,项目为地铁6号线应天东街上盖,可以说是整个南部新城版块距离地铁站最近的小区。
商业资源上,将有金地+华润等综合体加持,也标志着南部新城的宜居性在进一步夯实。
教育配套方面,2023年南部新城共计划开工8个公建配套项目,包括富华路中小学及幼儿园、怡居路北侧幼儿园、大明路东侧居住社区中心、国际路社区中心、油库公园南中小学、响水河路南侧幼儿园、广洋路东幼儿园、汇秀路南侧幼儿园。值得一提的是,南部新城未来共有1所高中、6所初中、7所小学、20所幼儿园。
另外,大校场还有七桥瓮生态湿地公园、神机营文化公园、机场跑道公园(在建)、南京博物院故宫馆(规划中)、南京市不动产档案馆已投入使用,第二历史档案馆新馆(已竣工)、中芬合作交流中心(已封顶)等各种文化场所。
片区内,秦淮金茂府预计将在近期加推项目3#号楼,依旧是最受欢迎的143㎡户型,预计去化还是不错的。