拿地7天出规划,开发商卷疯了!
就在昨天,上周一刚刚出让的软件谷G38地块规划出炉,将拟建10栋17-32F住宅,及7栋低层配套用房,项目还规划了下沉庭院。
01、拿地7天出规划,软件谷G38进展飞快!
7月17日(上周一),南京三批次土拍,软件谷G38被保利以29.2亿元总价拿下,楼面价24475元/㎡,这也是继凤起云台之后,保利再次进军城南软件谷。
时隔一周,昨天(7月24日),雨花台区官网正式公示了保利软件谷G38地块规划!

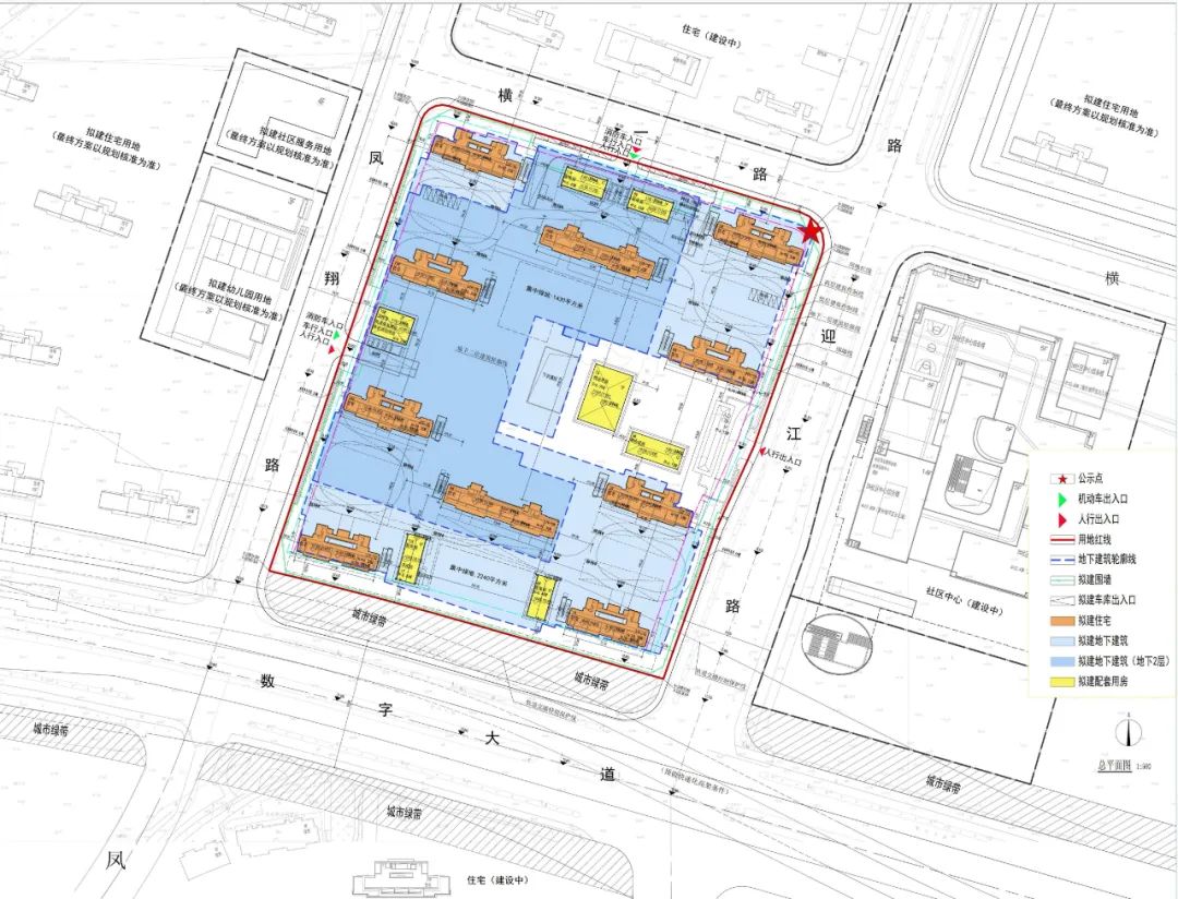
根据规划显示:该地块拟建10栋17-32F住宅,及7栋低层配套用房,项目还规划了下沉庭院,据悉未来销售价格预计超过4.4万元/㎡!

保利G38 地块项目位于雨花台区铁心桥街道,东至迎江路、南至数字大道、西至凤翔路、北至横一路。

项目规划总建筑面积约168920平方米,其中地上建筑面积约119307平方米,地下建筑面积约49613平方米,主要建设2层地下室,包含人防设施、配建停车库及其他辅助设施。

规划显示,保利G38采用围合式排布,从曝光的效果图来看,外立面采用大面积玻璃,很有现代感。

这幅地块是今年雨花台区数字大道沿线推出的第三幅地块,前2幅均触顶摇号,分别被万科和建发拿下。
本地块十分方正,为数字大道东段十分优质的住宅用地,将接续雨花数字城土地市场的高热度。东侧规划建设小学、初中、幼儿园各一所,其中初中已开始建设。地块西南侧已建成铁心桥小学,西侧及西南侧还将规划建设两所幼儿园。
地块东侧紧邻片区配套建设的居住社区中心,配套较大规模的社区商业,可形成片区内的公共生活配套中心。西南侧为商办用地,规划建设社区型商业。

G38地块紧邻数字大道、花神大道等城市主干道,可快速通达主城核心区、河西新城、南部新城以及南京南站。地块位于地铁S3号线景明佳园站与铁心桥站之间,距离铁心桥站更近,是名副其实的地铁盘,居民可慢行、公交、机动车多种交通方式便利出行。
地块南侧靠近秦淮新河百里风光带,东侧规划建设景观公园,西侧正在建设占地约290亩的雨花城市公园,周边环境十分优越。

地块内可建7栋26-32层的高层住宅,沿迎江路可布局3-4层的沿街商业,作为片区社区生活配套的补充。

02、区域配套完善,房源充足,多盘可选!
目前,片区内的配套已经逐步更迭蜕变:
产业资源方面,南京软件产业集中就在雨花台区的软件谷,这里已形成“五大产业集群”,包括华为、中兴、三星、亚信、东软、润和软件等,未来将吸引更多高素质研发人才落户,会产生大量的置业需求以及形成更纯粹的圈层。
交通方面,区域内有已经通车的S3号线规划中的地铁16号线、8号线;此外,区域内有已建成的机场二通道南段、龙翔大道等16条道路,可快速达到河西、江北等区域,未来交通便捷,全城即达。
生态方面,地块南侧靠近秦淮新河百里风光带,东侧规划建设景观公园,西侧正在建设占地约290亩的雨花城市公园,周边生态环境优越。
教育方面,东侧规划建设小学、初中、幼儿园各一所,其中初中已开始建设。地块西南侧已建成铁心桥小学,西侧及西南侧还将规划建设两所幼儿园。

医疗方面,江苏省人民医院(南京医科大学第一附属医院)妇幼分院、江苏省妇幼保健院已经与雨花台区政府签订“府院合作”协议,共建江苏省妇幼保健院总部(江苏省人民医院雨花分院)项目。

商业方面,目前已有苏果超市、农贸市场以及部分社区商业,可以满足日常的生活需求;此外还有区域内的雨花客厅、楚翘城、世茂52+等大型商业综合体的加持,未来雨花核心区CBD还计划投资140亿打造55万方城市综合体。

目前,项目周边有保利合肥城建凤起云台、中铁龙湖宸阅府、伟星时代悦峰、华发美的云筑等楼盘在售。

保利合肥城建凤起云台
项目目前主售7、8号楼,户型建面约100、108、130㎡,全装修交付,销许均价41778元/㎡,升级装修包2500元/㎡,销售方案显示首付最低5成。

户型一览:
伟星时代悦峰
项目目前在售1、2、3、5号楼,户型建面约104、113㎡,全装修销许均价40722元/㎡,另有升级装修包3300元/㎡,首付3成。

小区自带1栋12F商业,其中1-3层未来将为业主提供超市、水果店等便民商业,4-12层将打造酒店,也是目前软件谷板块少有的自带酒店的项目。

项目内部打造了约10000㎡的中央景观,有儿童游乐区、羽毛球场、健康跑道等,每个单元门口都设置了室外洽谈区,未来方便邻里交流。

项目共规划6栋高层住宅(30-33F),其中,2、3#楼为30F,1、5#楼为32F,6、7#楼为33F,小区共计760户。整个项目打造2大户型,建面约104、113㎡,都是三房两厅两卫设计。
项目户型图一览↓↓↓
华发美的云筑
项目主售8、9、10号楼房源,户型建面约100、118、142㎡,全装修销许均价约39398-41361元/㎡,另有3500元/㎡升级装修包可选。
项目共规划6栋楼,打造了建面约100、118、142㎡三种户型。
约100㎡的户型做到3房2厅2卫:
三开间朝南,约6.1米南向的双阳台,超大全景落地窗,保证了良好的采光和通风。U型厨房设计,既带来更阔绰的烹饪空间,又使得动线更为合理。超大灵动空间,可容纳多人同时操作,洗切炒科学动线,中西餐美味同步,让烹饪也成为令人向往的惬意时刻。主卧套间设计+270°景观飘窗,南向次卧与阳台相连,北向多功能房间可根据需求改造,空间利用率较高。建面约118㎡户型:
大横厅设计,开间达5.5米,南向大面积开窗,在宽景阳台的加持下,将生活空间向外延伸,全屋通透亮,清风阳光肆意入室,可以想象有多舒适。

U型厨房设计,既带来更阔绰的烹饪空间,又使得动线更为合理。

主卧面宽约3.3米,配备独立卫生间,为主人带来专属洗漱妆点空间的尊贵体验;主卧阳台采用三面转角开窗,更是为主人呈献私属观景空间足不出户也可阅尽窗外美景,尽享生活美好。

建面约142㎡户型:
大气的四室两厅两卫配置,四开间朝南设计,约7米南向270°转角阳台,加之南北通透的格局,落地窗采用双层夹角钢化防火安全玻璃,轻松演绎二胎家庭和三代同堂的生活理想。

项目选用大金中央空调、威能地暖、百朗新风三大件。厨房用的是西门子油烟机、燃气灶、嵌入式洗碗机;卫浴间用的是科勒、唯宝、汉斯格雅等一线大牌。


洗手台采用是“悬空”设计,卫生间镜柜配置了防雾镜片和美颜灯,避免雾气附着。

值得一提的是,华发美的云筑依托美的大科技平台资源、打造出了5M智慧健康社区。通过手机app远程操控,即可控制空调、地暖、新风系统、一键断水电,涵盖智慧家居、社区和服务的全场景功能。提高了居家生活效率和社区安全指数,让整个社区充满科技感。

中铁龙湖宸阅府
近地铁口,主城区位优势突出。
宸阅府高层已经全面清盘,目前主力在售跃墅产品,面积约145-228平,项目实景园林及底跃样板间已经同步公开。

其墅质底跃,负一层可独立入户(部分户型)、停车归家更便捷。
同时空间设计百变,标准层负责温馨日常,负一层则让生活拥有更多可能,工作室、书房,瑜伽健身房、游戏室、书画储藏室……

