转眼南京楼市上半年的新盘比拼告一段落。
据统计,截至6月30日,今年上半年南京全市范围内(含六合、溧水、高淳)共开盘202次(含推盘及已领销许),推出约23154套房源,较去年同期(172次开盘,推出约24841套房源)房源数量出现下滑。 此外,这202次开盘中需要摇号开盘的仅36次,10次开盘是当日全部售罄。
值得注意的是,上半年摇号人数没有一次超过1000组,报名人数最多的一次是2月加推的河西中奥体新城丹若园,148套房源有996组有效报名,综合中签率约14.86%。

2023上半年摇号楼盘一览
转头进入到下半年,在刚刚过去的7月第一周,已经有7盘申领销许,其中仅有大校场的伟星誉璟府达到摇号要求,中签率低至18.16%,该项目今天刚刚摇号结束。
除此之外,预计还将有超15盘入市,大校场在7月依旧热火朝天,“出货量”排名第一,其次河西、江宁等都有纯新盘入市,也有一些老盘加推的计划。
除此之外,南京南站、燕子矶等板块也迎来了久违的新项目。

河西
7月预计有3盘上市,其中1家纯新盘颐和铂越府预计将亮相。颐和铂越府起步户型约115㎡,想要上车小户型的买房人可以重点关注。
作为河西7月入市楼盘中唯一的纯新盘,项目预计近期公开,7月底首开上市,精装均价约5.2-5.3万/㎡。
根据规划,项目共打造5栋17层小高层,打造建面约115㎡(三房)、130㎡(三房)、173㎡(四房)三种科技系统户型,全一梯一户式入户。

建面约115㎡三房两厅两卫↓
三开间朝南,卧室全飘窗;餐客厅一体化,大横厅设计,开间约5.9m。

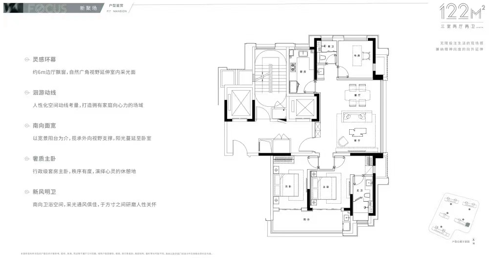
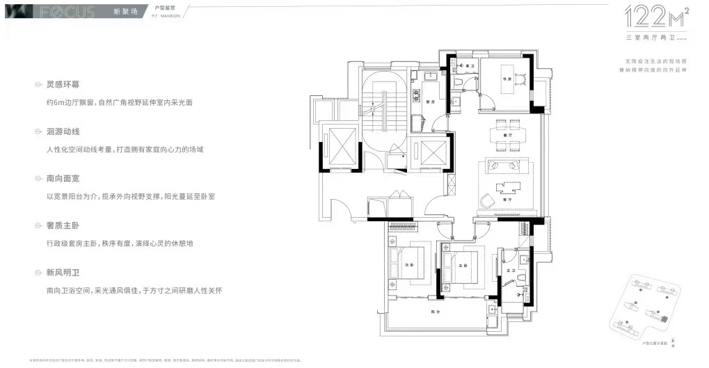
建面约122㎡三房两厅两卫↓
边厅设计,边厅飘窗面宽约6米,南向双卧、双阳台,主卧套房设计。

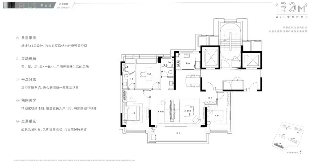
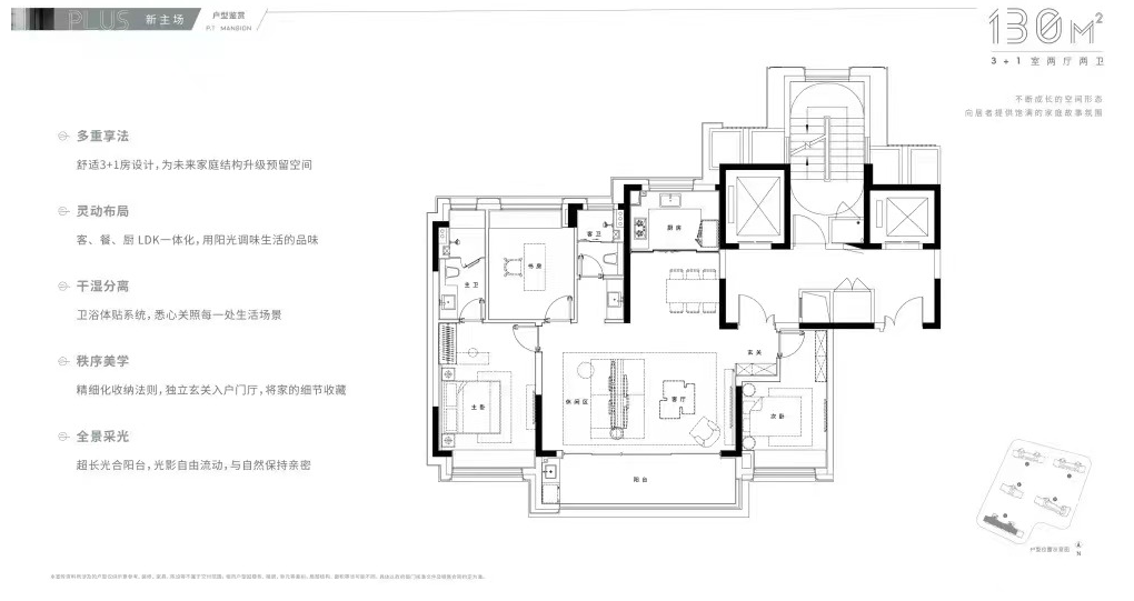
建面约130㎡3+1房两厅两卫↓
3+1房设计,+1房可与客厅打通,提升客厅空间感,亦可用作书房,提升空间功能性。

建面约175㎡四房两厅两卫↓
南北双阳台,卧室全飘窗设计,主卧套间设计。

颐和铂樾府创新打造双层社区泛会所空间,面积约500㎡,配置会客休憩区、健身房、4点半学堂等,一层为社区入户大堂。

项目外立面将采用干挂铝板+大面积玻璃,整体轻盈通透。

城南
城南7月预计有8盘上市,位于大校场、小行、雨核、南站等,大校场上市数最多,一些重磅新盘节奏加快,火速加推。
金基新睿樾府最快本周加推4号楼,这也是项目最后一栋多层房源,户型建面102、130㎡。

户型方面,项目打造了102㎡、130㎡、166㎡、171㎡四款户型,其中低密多层住宅户型约102/130m2,占比约20%,小高层户型约166/171m2,占比约70%。
其中最小102㎡共有47套,主要位于边户;建面约130㎡户型,共计46套(另有少量变异户型),位于中间户,未来上市总价预计将低于周边的几个竞品的洋房。
建面约102㎡的户型:三室两厅一卫,一梯两户,双开间朝南,南向双阳台设计。
建面约130㎡户型:三室两厅二卫,两梯两户,三开间朝南,南向双阳台,整体户型方正,主卧及北向次卧均带有飘窗。
值得一提的是,项目设计的102㎡起步的偏小一些的三房洋房,未来待其上市后,将会是大校场在售项目中最小户型,而且还是洋房产品,总价500万起,远低于周边其他竞品的洋房,届时开盘估计得遭抢购。

高层主打大面积改善,每栋楼一个户型,5、6、8号楼均为约171㎡,10、11号楼为约166㎡。
其中建面171㎡户型为主力户型,四房两厅两卫,三开间朝南,客餐厅一体,南北通透,每个房间均带有飘窗。

秦淮金茂府预计7月加推3号楼房源,户型建面143㎡,首开1号楼售罄,户型建面143㎡,成品房交付,销许均价54899元/㎡,首付3成起。


万科朗拾|雨核实景示范区已经公开,预计7月下旬首开,户型建面约99、115、139㎡,精装交付,预计总价420万元起。

建面约99㎡三室两厅两卫
是该项目的起步户型,三开间朝南、约6.2米双阳台设计,约3.4米宽奢横厅,空间感和尺度感十足!

建面约115㎡三室两厅两卫
依旧是三开间朝南、约5米宽奢客厅,采用LDK一体化设计、约7.7米观景阳台。

建面约139㎡四室两厅两卫
该户型的最大亮点是增加了自定义X空间,另外该户型还打造了开放式餐厨,主卧套房设计,带有独立卫生间。

值得一提的是目前片区内云上润府起步户型为108㎡,此前金基嘉玥起步户型为建面约118㎡,而万科朗拾|雨核起步99㎡的户型将刷新片区小面积段户型。
悦著九章即将于7月10日公开售楼部,目前已公开位于江宁景枫和雨花山姆的两大展厅,最快7月底开盘。

据悉项目打造97-118㎡三房、139㎡四房,全户型都强调居住空间的均好。一方面平衡了“宽厅”和“客卧”以及“餐厅”等空间的格局和使用可能;另一方面实现了约5.7米的客厅和约10.45米的跑道阳台的大尺寸。



江宁
预计有3楼盘上市,东山为上市主力军,海玥华府预计7月收官最后一栋,科学园招商新盘即将在7月首开上市。
璀璨璟园此前已正式公开实景示范区及样板间,预计7月首开3号楼,户型建面约100、135㎡。根据规划,项目拟建13栋14-18F小高层住宅,容积率仅2.1,居住氛围相当纯粹。

户型方面,项目主力100㎡、135㎡户型,适合刚改首置人群上车;此外在户型规划上,两户型均是三房起步,并都带了两个卫生间,更好地保护好每一个人的隐私空间。
建面约100㎡三房两厅两卫户型:主卧套房设计,南北通透;双阳台+三开间朝南,采光充分;配置4个大飘窗。

建面约135㎡四房两厅两卫户型:四开间朝南,L型厨房设计,北向带飘窗,整个户型南北通透。

海玥华府马上收官加推最后1栋8号楼,共108套房源,户型建面约98、117㎡,两梯两户。

除此之外,城东、城北、江北,7月上市房源量较少。
晴樾府预计近期加推收官房源1号楼,户型建筑面积约112、129㎡,一梯两户,精装修交付,前期销许价约36844元/㎡,另有3100元/㎡升级装修包可选,首付8成,

璀璨云筑预计后期加推A地块1、2、7号楼,户型建筑面积约76-133㎡,不卖包。在售C地块6、7、8号楼,户型建筑面积约76、89、105、133㎡,精装交付,销许均价约29216元/㎡。
