大校场又要摇号了
伟星誉璟府报名结果今天上午出炉,继续刷新前两次中签率。与此同时,片区内的保利文璟和颂也于今天正式开启报名。
不得不说,现在大校场的热度比南京30多度的天气还要热,而且这个热度会随着片区内不断入市的热盘而持续一段时间!
01、中签率18.16%,大校场又摇号了
大校场热盘伟星誉璟府报名人数出炉,91套房共501组报名,中签率约18.16%,平均5人抢一套。

这是项目第三次加推,也是第三次摇号,值得一提的是,此次的中签率比之前两次更低,项目将于明天7月7日11点整开始摇号。
- 项目5月20日首开,推出推出6、11、12号楼,166套房源,共吸引836组报名,综合中签率19.9%。
- 项目6月14日加推3、7、10号楼,共164套房源,吸引有852组报名,综合中签率约19.3%。

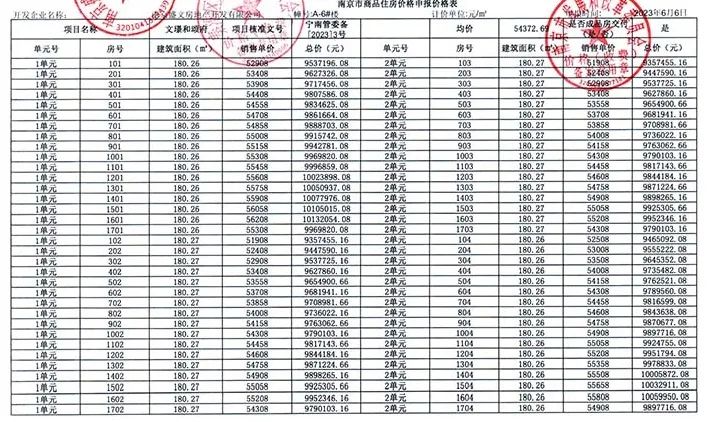
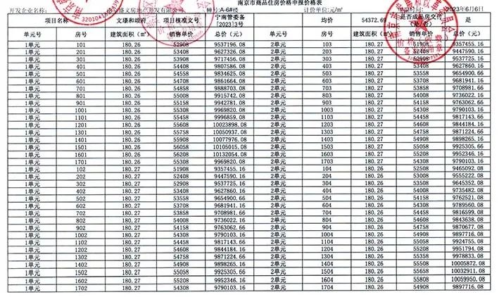
项目本次领取1、8号楼销许,共91套(人才19套,无房28套),户型建面约119、143㎡,精装销许均价约55699元/㎡,首付5成,验资238万。

建面约143㎡四室两厅两卫:三开间朝南、双开间阳台,空间布局宽敞。

项目洋房户型做了不带软装的样板间,该户型得房率超高,约82%,空间感很好。约5米开间的客厅,依旧是餐客厅一体化设计。

U型厨房设计;约8.2米的南向双阳台,采光通风绝佳。

约3.9米开间的主卧套房,带有衣帽间和独立卫生间。

建面约119㎡三室两厅两卫:布局方正,南北通透,客厅为大横厅设计,主卧套房,客卫三段式干湿分离,南北全飘窗。

该户型同样为大横厅设计,餐客厅一体,整体空间感很阔绰。

南向大阳台,采光面很绝。

主卧套房设计,带有独立卫生间和超大飘窗。

另外,项目装修标准很高,采用目前板块内罕见的劳芬、嘉格纳等国际一线品牌;据置业顾问介绍,光是建面约196㎡的主卫配置(浴缸+双台盆+智能马桶+龙头+恒温花洒)成本就超32万!

另外,项目打造约1600㎡的酒店式会所,会所连接约160㎡下沉式庭院,其中会所中也设置有行政酒廊,意境茶室等多元空间,归家休憩、会客见友、焚香品茗在这里都可以实现。
此外会所中还有恒温泳池与健身房。半国标的四季恒温泳池,配置不输五星级度假酒店标准;健身房器材品牌为泰诺健,全套价值超百万。

02、均价5.5万/㎡,首付3成,保利文璟和颂正在报名,即将加推
保利招商·文璟和颂昨日(7月5日)领6号楼销许,共68套房源(人才14套,无房21套),户型建面180㎡,成品房交付,销许均价54373元/㎡,首付3成起。
摇号报名:时间为7月6日上午9点至7月8日上午9点。
报名方式:报名人可通过关注公众号:南京房地产微政务,点击“房帮宁-买房报名-宁小通-商品房报名”进入报名通道进行线上报名。

一房一价表如下:

项目此前加推过2次,共入网128套房源,截止发稿项目累计认购+成交76套,去化近6成。

项目打造10栋住宅,其中6栋17-18层的小高层,还有4栋7-9层的低密多层。

此次加推的房源为建面约180㎡户型:四房两厅三卫,中西双厨设计,朝南双套房,主卧套房含步入式衣帽间+双台盆独立卫浴。
项目外立面采用铝板干挂,使用香槟金+银灰色两种颜色,配合天幕感的大窗墙比设计,现代感十足。

在园林景观上,项目更是借瞻园之境,融九五之尊,打造南部新城首个宋风园林。项目汲取瞻园布局,复刻五进空间格局,形成进厅、登堂、游廊、归园、入宅五重礼序,归家仪式感拉满。

项目迎宾大门,则是青瓷挂瓦,暗绿色的琉璃灯具,由南京六朝青瓷晶莹的釉色提炼,宋风美学的雅致气息扑面而来。

在升级装修方面,保利招商文璟和颂采用国际一线精装标准。
入户玄关柜交付、内置鞋柜精灵,厨房三件套采用博世品牌,还有铂浪高的水槽、抽拉式龙头;卫生间使用唯宝的台盆、高仪的台盆龙头和恒温花洒等。
细节上也值得称赞,比如岩板交付的背景墙、90*180cm大面积地砖的铺陈、比如全卧室地板“人字拼”,以及主卫配美妆冰箱,镜柜设计也采用无底设计,吹风机牙膏牙刷等都可以妥善安置,合理分区收纳。


保利招商文璟和颂配置六恒科技人居,采用恒温、恒湿、恒氧、恒静、恒智,定制毛细官网辐射恒温舒适,新风地送顶排,让居住回归舒适。

除了这个项目外,保利可以说把南部新城“卷”上了天。
目前,保利在南部新城已有8个项目,包括保利堂悦、保利翡翠公馆、锦云台(尾盘在售)、云锦四季、琥珀云台、保利文华、保利招商·文璟和颂、保利G13,其中在售的有4家,待售的1家。
整体来说,保利在大校场在售的4盘,目前综合去化在5-6成。
云锦四季在售A1、3、5、6号楼,户型建筑面积约143、195㎡,全装修销许均价46841元/㎡,另有升级装修包4000元/㎡,据南京网上房地产显示,项目共入网525套房源,目前去化近5成。

琥珀云台在售1、2、5号楼,户型建面约105、125、135㎡,全装修销许均价约47064-47861元/㎡,另有升级装修包4100元/㎡。
项目共加推5次,共388套房源,截止发稿,项目累计认购+成交329套房源,去化超8成。

保利文华在售1号楼,户型建面约128㎡,全装修销许均价47973元/㎡,另有升级装修包4100元/㎡,销许方案显示首付8成,根据网上房地产显示,项目去化超5成。
大校场G13地块:5月10日经过25轮报价被保利斩获,成交总价24.1亿,成交楼面价34383元/㎡。
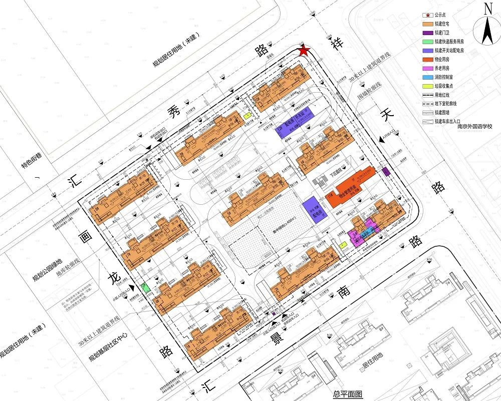
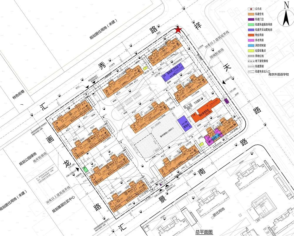
该项目位于秦淮区南部新城,北至汇秀路,西至特色街巷 (画龙路),南至汇景北路,东至祥天路。地块西南侧为规划小学用地,东侧隔祥天路为已建南京外国语学校。

根据规划显示,项目将拟建10栋7F-18F住宅,其中洋房4栋,小高层6栋。

规划用地性质为R2二类居住用地,用地面积为28037.35平方米,1.0<容积率<2.50,建筑高度<60 米,建筑密度<25%,绿地率>30%。地块西侧距离特色街巷505米范围内住宅建筑高度为18-30米,其他住宅建筑高度>35米。

该项目总建筑面积约为9.52万平方米,其中: 地上建筑面积约为7.01万平方米,主要功能为住宅、物业用房、社区居家养老服务用房及其他配套用房;地下建筑面积约为2.51万平方米,主要功能为配套停车库及相关配套辅助设施。
根据规划图所示,项目将打造10栋7-18层住宅产品,整体楼栋呈田字型分布。
其中,项目西侧靠近特色街巷的4栋住宅为洋房产品,此外项目还有6栋小高层产品。大校场板块内部,这样洋房+小高层的低密住宅区项目有很多。

从公布的效果图来看,项目外立面采用大面积玻璃窗,窗墙比较高,颜色空灵通透,美观大气颇具现代风格。
