今年开发商的速度明显提档了不少。
昨天,大校场G13规划出炉。至此,今年5月10日出让的10幅地块已经有5幅地块规划出炉!

除此之外,片区内的热盘伟星誉璟府再次传来加推消息,项目将于近期加推1、8号楼。
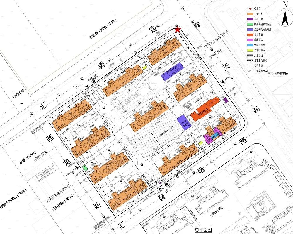
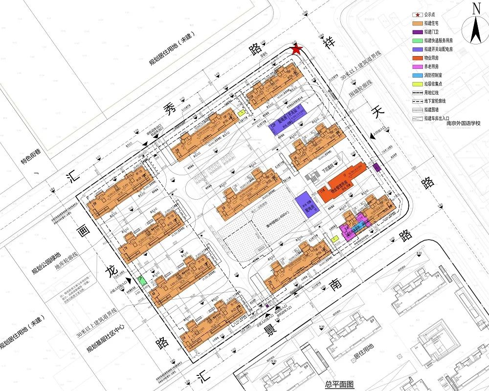
01、新增10栋7-18层低密住宅,大校场G13规划出炉!
昨天,南京规划和自然资源局官网公布了《NO.2023G13地块项目规划设计方案批前公示》。

根据规划显示,项目将拟建10栋7F-18F住宅,其中洋房4栋,小高层6栋。

该项目位于秦淮区南部新城,北至汇秀路,西至特色街巷 (画龙路),南至汇景北路,东至祥天路。地块西南侧为规划小学用地,东侧隔祥天路为已建南京外国语学校。
5月10日经过25轮报价被保利斩获,成交总价24.1亿,成交楼面价34383元/㎡。

规划用地性质为R2二类居住用地,用地面积为28037.35平方米,1.0<容积率<2.50,建筑高度<60 米,建筑密度<25%,绿地率>30%。地块西侧距离特色街巷505米范围内住宅建筑高度为18-30米,其他住宅建筑高度>35米。

该项目总建筑面积约为9.52万平方米,其中: 地上建筑面积约为7.01万平方米,主要功能为住宅、物业用房、社区居家养老服务用房及其他配套用房;地下建筑面积约为2.51万平方米,主要功能为配套停车库及相关配套辅助设施。
根据规划图所示,项目将打造10栋7-18层住宅产品,整体楼栋呈田字型分布。
其中,项目西侧靠近特色街巷的4栋住宅为洋房产品,此外项目还有6栋小高层产品。大校场板块内部,这样洋房+小高层的低密住宅区项目有很多。

从公布的效果图来看,项目外立面采用大面积玻璃窗,窗墙比较高,颜色空灵通透,美观大气颇具现代风格。

02、两开两捷,劲销22亿!大校场热盘即将三推!
近日,大校场热盘伟星誉璟府再次传来三推的消息。项目预计6月底7月初加推1、8号楼,户型建面约119、143㎡。

项目即将加推的是1、8#房源,户型建面约119、143㎡,前期洋房均价约5.6万/㎡,小高层均价约5.4万/㎡,没有装修包。
其中,1#楼为建面约119㎡小户型房源,总价约643万;8#楼为建面约143㎡洋房房源,总价约800万。值得注意的是,此次加推的119㎡小户型、143㎡洋房均为最后1栋房源,错过再无!

项目的加推速度非常快,一个月内,项目两开两捷,揽金22亿+!
5月20日,项目首开推出166套房源,吸引了836组买房人报名,综合中签率仅约19.9%!
6月14日二次加推,852组客户抢164套房,中签率约19.3%,开盘1小时内热销11亿!
据南京网上房地产已经上传的数据显示,项目两次共入网330套房源,截至发稿累计认购+成交225套,去化近7成!

项目之所以能收到如此追捧,与它本身的产品力和地段都有着密不可分的关系。
首先在地段上,伟星誉璟府位于大校场创新街区,与机场跑道公园仅约300米,地段更是无可挑剔。

此外,项目位置还独具先天的自然资源优势,北侧直面天然的机场河,部分楼栋可享一线河景,相较于板块内大多数楼盘,居住舒适性更高。
其次,在产品力上,大校场作为改善板块,洋房、小高层的居住舒适度更高,因此,项目打造的3栋8F洋房+6栋15-17F小高层受到了不少改善客群的青睐。

从户型打造来看,项目共打造了建面约119㎡、143㎡、196㎡三款户型。根据此前开盘情况来看,项目的143㎡洋房更受欢迎,而月底加推的也是最后1栋洋房房源。
建面约119㎡三室两厅两卫:布局方正,南北通透,客厅为大横厅设计,主卧套房,客卫三段式干湿分离,南北全飘窗。
建面约119㎡三房两厅两卫小高层户型
该户型同样为大横厅设计,餐客厅一体,整体空间感很阔绰。

南向大阳台,采光面很绝。

主卧套房设计,带有独立卫生间和超大飘窗。

建面约143㎡四室两厅两卫:三开间朝南、双开间阳台,空间布局宽敞。
建面约143㎡四房两厅两卫洋房户型
项目洋房户型做了不带软装的样板间,该户型得房率超高,约82%,空间感很好。约5米开间的客厅,依旧是餐客厅一体化设计。

U型厨房设计;约8.2米的南向双阳台,采光通风绝佳。

约3.9米开间的主卧套房,带有衣帽间和独立卫生间。
建面约196㎡四室两厅三卫:适合终改,尺度感空间感十足,主卧除了配有卫浴间,还有步入式衣帽间,公共空间完整开阔。
建面约196㎡四房两厅三卫小高层户型
整个餐客厅空间约58㎡,客厅开间约6.6米,加之约3.1米的层高、通铺简一瓷砖,调调奢华感扑面而来,十分气派。(以开发商最终交付为准)

中西双厨设计,厨房预留了足够宽敞的西厨岛台空间;中厨配置了嘉格纳的油烟机、灶具,博世的洗碗机,AO史密斯的热水器,铂浪高的垃圾处理器、水槽和抽拉式水龙头,同时预留了双开门冰箱的位置。(以开发商最终交付为准)


约10.2米的跑道阳台,近乎落地窗的效果,采光一绝!

在景观打造上,项目采用的是金基御用的顺景园林,栽种了乌桕等植被,颇有意境。


带有建面约1600㎡高端私享会所,配备行政酒廊、恒温泳池、健身会所、意境茶室等功能。




项目装修标准很高,采用目前板块内罕见的劳芬、嘉格纳等国际一线品牌;据置业顾问介绍,光是建面约196㎡的主卫配置(浴缸+双台盆+智能马桶+龙头+恒温花洒)成本就超32万!

