今天,金基皓樾府摇号结果出炉,这也是项目的收官之战,据南京网上房地产显示,该项目此前加推的房源仅有4套,十分受欢迎。
同时,本站还整理了目前南京市面上在售/待售的一些真洋房。
01、中签率12.9%,鼓楼滨江高端改善盘摇号结果出炉
今日下午12:20分,鼓楼滨江高端改善盘-金基皓樾府开始第一轮摇号活动。

根据宁小通显示,金基皓樾府本次共成功吸引了420组买房人报名,其中人才26组、无房28组、普通366组,中签率约12.8%,平均8人抢一套。其中人才房中签率:42.3%;无房中签率:60.7%; 普通中签率:7.1%。

金基皓樾本次领取3号楼销许,共54套(人才11套,无房17套),建面约122、143㎡,全装修销许均价43463元/㎡,另有升级装修包5000元/㎡,首付5成,验资268万元。
值得一提的是,此次加推将会是金基皓樾府的收官房源,仅有54套。项目本次收官房源,最低一套总价也超567万,最贵一套近千万!

根据规划,项目拟建7栋8-10层低密多层住宅,以及一栋总高9层商业楼栋。

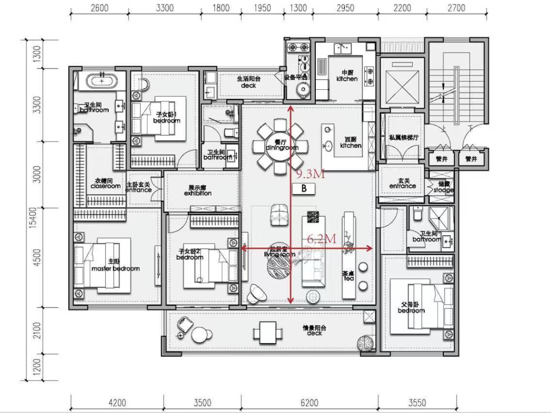
建面约122㎡四室两厅两卫:三开间朝南,厨房带岛台,主卧卫生间也是明卫。

建面约143㎡四室两厅两卫:该户型空间的利用率很高,主卧是明卫,南向次卧有超大飘窗。

项目打造的科技住宅,采用了地源热泵系统、毛细管辐射系统、全屋置换新风系统、新风除霾系统等,打造三恒系统+两大舒居系统,即恒温、恒湿、恒氧,舒洁、舒智。

内部,金基依旧延续了金基风格,将打造会所,涵盖了活力健身空间、共享客厅、共享水吧等。

02、目前,南京6F低密洋房还有这些可选……
洋房凭借更好的改善居住品质、更高的得房率、更强的保值增值功能等硬核价值,以及买房人对美好生活越来越迫切的需求,一直以来,低密度的洋房产品都被各类改善客群所追捧。
随着城市优质资源用地减少,适合洋房生长的地块也越发稀缺。
据统计,在南京近10多年的土地出让中,容积率低于2.0、足以打造洋房产品的臻稀土地,占比仅有2%不到。
目前,本站盘点了南京主城6F及以下的真洋房,目前主城在售和待售一共只有9个,分布在鼓楼、老城东、城南等各个片区。

星叶翰锦院
栖霞建设星叶翰锦院(容积率1.76),为6层洋房,主力户型145平起,只有140多套,前期均价73988元/平,标准层均价8-8.2万/平,起步总价1000万+。

项目搭载先进的户式科技系统,打造了建筑面积约145、180㎡的精装科技平层,和面积约200-280㎡顶跃、350-500㎡底跃,得房率高达87-90%。

星叶翰锦院在售B3-9号楼,科技平层,建面约145、180㎡以及顶底跃,精装交付(部分毛坯),整体销许均价74100元/㎡,首付8成。
建面约145㎡户型:四房两厅三卫,户型方正,南北通透,四个房间分别位于四角,各有互不干扰的天地,典型的四叶草房型。主卧次卧居于客厅两侧,套间设计,带独立卫生间;双飘窗设计,增加各功能间的空间感和尺度感。户型结构无过道浪费,空间利用率高。
建面约180㎡户型:四房两厅三卫,大横厅设计,客厅预留书吧、茶室等多功能空间,尺寸感超强!该户型凭借着约87-90%超高得房率,在空间感上几乎可以匹敌目前市场上200㎡左右的户型。
凤樾府
凤樾府(容积率4)为4-6层洋房,面积段为180-230㎡。前期高层房源均价约52600元/㎡,起步门槛预计900万+。

凤樾府在售8、10号楼,高层,户型建面约143、157、192㎡,部分全装修部分毛坯,销许均价53103元/㎡,另有装修升级包3500元/㎡,首付3成起。
建面约143㎡三房两厅两卫:南向双阳台,动静分离,主卧套房设计。
建面约157㎡四房两厅两卫:三开间朝南、南向双阳台、U型厨房。
建面约192㎡四房两厅三卫:主卧套房,其中南向两个卧室均带有独立卫生间 ,四开间朝南,书房空间可根据需求改造。
孝陵卫凤凰置业G22地块(容积率1.54)
拟建15栋4-7层低密住宅及相关配套设施。毛坯限价49340元/㎡。目前凤凰置业孝陵卫G22地块项目已经动工,预计7-8月公开!

金基老城东G23地块(容积率1.76)
拟建13栋6-7层低密住宅,周边新房基本到5万以上,洋房有溢价,价格只会更高。
根据规划显示,项目将拟建13栋6-7F低密洋房住宅,7栋商办楼,1栋社区综合服务中心和1栋社区医养结合服务中心,以及一所幼儿园。

从公示的效果图来看,项目外立面风格与片区的文化底蕴相符,外立面米白色干挂石材、深棕色大挑檐屋顶,整体低调,小区中央还有大面积景观预留。


保利文华(容积率2.5)
规划有4栋6-8层洋房,其中6层洋房,面积约143㎡起,带包单价约5.7万/㎡,总价800万+。项目即将加推1号楼,户型建面约128㎡。目前在售2号楼,户型建面约143㎡,全装修销许均价50377元/㎡,另有升级装修包4100元/㎡。在售8号楼,户型建面约175㎡,全装修销许均价49508元/㎡,另有升级装修包4100元/㎡。销许方案显示首付8成。

建面约128㎡户型:三房两卫设计,为了追求居住舒适度,该户型做了大三房的设计,约12.9米南向面宽。LDKB厨房餐客厅一体化设计,客厅约6.3米大开间,罕见横厅+入户礼仪玄关,板块内同户型的天花板。
石林云城(容积率1.8)
规划有36栋6层洋房,约89㎡起,3房起步,总价约250万起。目前在售9、10、12、13、30、32、34号楼,主力面积段约109、113、117、136㎡,实景现房销售,精装修销许均价23500-26735元/㎡。
项目是主城难得的纯洋房社区,容积率只有约1.8,社区绿化率高达43%,楼间距开阔、楼栋无遮挡,很宜居。小区全部实景可见,现房销售。
首开南岸潮鸣(容积率1.2)规划14栋4-6层洋房产品,89㎡起,全装修销许均价33451元/㎡,另有升级装修包2450元/㎡,总价约319万起。

建面约89㎡ 三房两厅一卫
建面约113㎡ 三房两厅两卫
建面约113㎡ 三房两厅两卫
燕子矶高科江悦堂(容积率1.06)
规划建设22幢4-5层低密度科技住宅,主力户型建面约215、255、260、320㎡,另有底跃户型,仅有235户,是主城较为难得的滨江低密豪宅,总价预计1000万+。


仙林湖高科紫星堂(容积率1.2)共打造11栋5层洋房,户型建面约215、255、320㎡,4房起步,放风价预计在4.5-4.6万/㎡,预计总价960万+。

从释放的户型图来看,建面约215㎡户型四房两厅三卫,双阳台设计,中西双厨,客厅开间6.2米,两个卧室均为套房设计。

建面约255㎡户型,五房两厅三卫,U型中厨,岛台式西厨,餐客厅一体化,另外还有约10.5米的双阳台。

建面约320㎡户型,六房两厅四卫,约9米北阳台+约13.2米南阳台。

建面约320㎡边厅户型,六房两厅四卫,约8.3米餐厅+约8.3米客厅+约11.9米双开间阳台。
