近日,不少纯新盘陆续有了新动态,其中燕子矶以、仙林湖的两大纯新盘陆续释放出来户型图,面积89㎡-320㎡不等,涵盖了刚需、刚改、终极改善各个阶层!
01、户型89㎡起步!燕子矶纯新盘户型曝光!
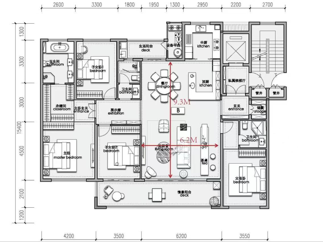
刚刚公布案名不久的栖霞建设纯新盘-星叶燕尚玥府,89-126㎡户型图曝光,全系大横厅设计!
89㎡的户型:三房一卫,南向双开间阳台,每个卧室均带飘窗,不仅如此,该户型还设计了约5.3米横厅,要知道,这可是豪宅才有的尺度!(户型供参考,以开发商最终公布为准)

建面约120㎡户型:四房两卫,除了4个卧室外,两个卫生间都带有飘窗,共6个飘窗!大横厅设计,双开间阳台。

建面约126㎡户型:四房两卫,拥有约6.6米超大横厅,比建面约120㎡户型更加开阔。

目前,楼盘还没公开售楼处,预计下月公开展厅。
去年由栖霞建设拿下的燕子矶G33地块,楼面地价18620元/㎡,毛坯限价32320元/㎡。案名为“星叶燕尚玥府”,打造10栋28-29F高层住宅,预计打造燕子矶改善产品!
项目位于燕子矶新城,东至现状铁路及防护绿地、南至燕恒路、西至怡园东路、北至松花江路。

根据规划显示,项目将拟建10栋28-29F高层住宅,地块北侧为规划医院用地,占地面积约:44918.48平方米。

项目规划设计总建筑面积约:17.12万平方米,其中:地上建筑面积约 12.36 万平方米,主要功能为住宅、配套商业、物业、养老及配电房等相关配套设施;地下建筑面积约4.76万平方米,主要功能为地下车库、其他配套设施等。
效果图:


值得一提的是,项目地段十分优越,地处城北“新街口”正核心位置,旁边一公里范围内配齐学校、地铁、商业等顶级配套。
交通上,南京地铁1号线北延,7号线北段、燕子矶长江隧道、和燕路快速化改造(主线)都已经正式通车,再加上2024年即将通车的地铁6号线,整个燕子矶约18平方公里,汇聚了3条地铁线路,其密度之高在南京各板块中非常少见。
商业方面:周边约30多万方城市级综合商业,繁盛体验交织。其中,招商花园城是花园式购物中心,提供购物、娱乐、餐饮、休闲的一体化体验。21万方的华润万象天地综合体项目已封顶,预计今年开业。
教育方面:南师附中燕子矶新城学校已经开学,项目周边还有燕子矶幼儿园,南外仙林分校燕子矶校区等。前不久,燕子矶新城观音门中学、观音门小学及幼儿园规划正式出炉,板块再添两所学校。
医疗方面:未来,燕子矶新城医院、市妇幼保健院分院、三甲江苏省中西医结合等配套也日益醇熟。
生活配套方面:燕子矶新城体育公园正在加速建设中,目前项目施工迎来最新进展,整体楼栋建设进度已达80%,预计今年底前将实现主体封顶,项目整体将于2024年竣工。
目前,区域内还有2盘待入市(栖霞建设G33、高科G34),3盘在售(保利燕璟和颂、华发·四季雅筑、颐和四季府)。
保利燕璟和颂2月21日刚刚开盘,共152组摇96套房源,中签率63.2%。1号楼共96套(人才20套、无房29/39套),户型建面约89、109㎡,全装修销许均价约33723元/㎡,另有3200元/㎡装修包可选,首付3成起,验资28万元。
保利燕璟和颂由15栋22-26F高层围合而成,拥有超20000㎡ 社区绿地,是在南京主城内非常罕见的超大社区。
项目打造89㎡三房一卫,99㎡三房两卫,109㎡三房两卫,132㎡3+1房两卫三大主力户型。

华发四季雅筑在售1、3、4、5、6、8-11号楼,户型建面99、120、140㎡,全装修销许均价33798元/㎡,另有2500元/㎡装修升级包,首付3成。

颐和四季府在售1号楼,户型建面约89、108、128㎡。全装修(部分毛坯)交付,销许均价34185元/㎡,另有升级装修包2650元/㎡,首付3成起。

燕子矶高科G34:著名的燕子矶滨江老镇地块,2022年7月12日被高科竞得,成交总价16亿元,成交楼面价17349元/㎡,这块地为不限价地块。
住宅部分定案名为:江悦堂,将分为南苑、北苑、东苑三个住宅区;商业部分定案名为:燕栖渡商业广场,据悉,项目将对标太古里,打造南京目的性消费商业新名片。

02、215㎡起步!仙林湖豪宅来了!预计卖到……
仙林湖高科紫星堂户型图也于近日曝光,建面约215-320㎡,4房起步,放风价预计在4.5-4.6万/㎡,预计今年上市。

从释放的户型图来看,建面约215㎡户型四房两厅三卫,双阳台设计,中西双厨,客厅开间6.2米,两个卧室均为套房设计。

建面约255㎡户型,五房两厅三卫,U型中厨,岛台式西厨,餐客厅一体化,另外还有约10.5米的双阳台。

建面约320㎡户型,六房两厅四卫,约9米北阳台+约13.2米南阳台。

建面约320㎡边厅户型,六房两厅四卫,约8.3米餐厅+约8.3米客厅+约11.9米双开间阳台。

去年7月12日,地块经过1轮竞拍最终被高科底价拿下,成交总价12.7亿、楼面地价26147元/㎡,不设限价,由高科&奥体建设联合开发,高科负责操盘。
根据规划显示,项目将拟建5层11栋低密洋房住宅,建面约215-320㎡。

从公示的效果图看,项目外立面或为米色的干挂石材和棕色的铝板相搭配,还设计了落地阳台,看起来低调又高级。


至于小区内部,打造有下沉庭院,高低错落的景观树,还有水景。

因造型跟高科旗下的“院”系产品颇有神似,并且G38地块距离高科紫薇堂非常近,临近的地段,相似的案名,同样的开发商,当时G38项目就被业内猜测将是“高科紫薇堂2.0”!
在仙林,高科的品牌号召力不容小觑!而高科紫薇堂项目作为高科的高端产品线产品,在仙林豪宅市场绝对占有一席之地!

2017年,高科紫微堂亮相,项目三面环山、采用干挂石材+金属材料的外立面、全奢装精装品牌、8-10米级超大横厅......在那个高周转的时代,高科紫微堂的出现,刷新了人们对高端改善住宅的认知。
2019年,项目平墅产品均价3.8-4.2万/㎡,合院产品均价4.2-4.6万/㎡,直接打破仙林房价天花板,且叠墅首付比例5成起。当年平墅产品年初首开,当年8月就直接售罄收官;至于合院产品,目前还有少量房源在售。

目前,在链家网,高科紫微堂的二手房挂牌价格超6.37万/㎡,并且整个小区仅有7套在对外出售。

同在仙林湖的高科荣境二期小高层产品,挂牌均价高达44032元/㎡,去年7月成交一套317㎡大平层,成交单价高达49689元/㎡。


可以说,仙林湖+高科的组合,是城东改善心上的白月光。更别提,这一次容积率仅1.2的高科紫星堂。
由于紫星堂不设限价,未来,高科紫星堂毫无疑问将打造仙林湖豪宅市场新的天花板,产品的高度最终能达到多少,房价又会达到多少,令人期待。
不过从紫薇堂超6.3万/㎡的二手房价来看,紫星堂新房价格肯定不会超过这个价格,今后倒挂几乎是必然的。
如果倒挂程度高,高科在仙林湖掀起一轮新的产品主义膜拜和抢房潮在所难免。仙林湖乃至大城东的高端改善客群可以提前准备起来了。
仙林湖在前几年新房还是比较稀缺的,但去年的几场土拍,仙林湖成功出让了G07、G08、G35、G38四幅地块,很好的为片区新房市场做了补给;同时,同时在售的还有中海观文澜、云樾观山府项目。
泷悦雅颂在售2、5号楼,户型建面约89、113、118㎡,全装修销许均价35576元/㎡,另有2000元/㎡升级装修包可选。首付3成起。
兰亭和颂2月20日,领6、12号楼销许,共101套(人才房31套,无房31套),户型建面约128、143㎡,全装修销许均价约35923元/㎡,另有升级装修包1800元/㎡首,付3成,目前项目平推。
仙林湖G35地块案名为星叶半山玥府!星叶半山玥府位于仙林,临近鲤鱼山、仙林湖,项目打造16栋7-10F低密住宅,打造建面约127-189㎡纯粹四房户型,预计今年上半年上市。
中海观文澜项目主力在售A-1、6号楼,共160套,户型建面约110、130㎡,全装修销许均价36289元/㎡,另有2000元/㎡升级装修包可选。两梯四户。同时在售B-4、B-8号楼,户型建面89、110㎡,全装修销许均价36088元/㎡;在售A-4、5、7、8号楼,户型建面约89、108、110、130㎡,全装修销许均价35117-36214元/㎡。另有2000元/㎡升级装修包可选,两梯四户。
新城云樾观山府项目在售A2-5、8号楼,户型建面约105、120㎡,全装修销许均价35093元/㎡,另有3550元/㎡升级包可选,首付3成起。
高科紫星堂所在的片区周边交通、商业、产业配套已经成熟:
交通方面,未来这里3条地铁环绕,分别是目前已运行的地铁2号线、4号线,还有去年年底开工的宁扬城际S5号线。
商业方面,周边游金鹰湖滨天地、万达茂以及未来的德基(在建)、仙林苏宁广场(在建)等等。
教育方面,有金中仙林分校和金小仙林湖校区,均已建成开学,后期还有包括仙林湖北部中学、鲤鱼山幼儿园、南京外国语学校仙林分校幼儿园等新学校在建。
另外板块内名校环绕,南大、南师大、南邮、南财等等直接将板块拔高了一个档次!
生态方面,周边有紫金山、灵山、羊山湖等多处大型生态景观的环绕。随着宁镇扬一体化进程加快,人才不断涌入,未来或将迎来利好的集中爆发。