开年后,麒麟的仁恒G46便传来消息,该地块透露将打造户型面积约99、125、143、165、180㎡五个户型。
接着,仁恒操盘的江核G03地块也传来动工的消息。
其实2023年,应该是仁恒大展身手的一年。在2022年,仁恒虽在南京基本没有拿地,但在楼市的热度可是一点都不低,并且还遍地开花!
仁恒采用合作方式,参与到一些核心地块的代建、操盘业务中去。
据不完全统计,今年南京预计有6家仁恒盘待上市,非常值得期待,有仁恒华能G46、江北研创园的G10地块、江核的G03地块、城南中心的G59地块、麒麟科创园的G92地块、江宁小龙湾G93地块;
不过近期有消息称,江核G07、08或许也将由仁恒打造。仁恒冲仓江北,是否会给沉寂一段时间的江北焕发新的生机?

今年,仁恒遍布城北、江北、江宁,它的进驻对于提升项目品质,恢复市场信心,将产生显著的推动作用。
江北核心区——新居G10:项目规划5栋25-31F高层住宅、1栋2层高的商业,毛坯销售限价33500元/㎡,据了解项目将打造108、130㎡户型。
江北核心区——颐居G03:项目规划11栋15-16层的小高层,预计打造大平层、科技住宅,目前南京仁恒已经交付的产品中,很少有科技住宅,上市价格预计卖到4.5万/㎡。
江北城南中心——浦口国资G59:毛坯限价3.05万/㎡,将拟建14栋24-26F高层住宅,将由仁恒负责代建。
江宁小龙湾板块——金融城G93:项目为住宅、商办混合用地,紧邻秦淮河,坐拥南京第二大商圈百家湖商圈,地段配套都是无可挑剔。
麒麟科创园板块——仁恒华能G46:项目户型面积段约在90-180㎡之间,其中面积约150-180㎡的户型均为临河边户,精装放风预计3.5万/㎡左右,预计将于今年四季度上市。
麒麟科创园板块——东南国资麒麟科创园G92:项目打造6栋27-32F高层,面积约105-200㎡,毛坯限价2.08万/㎡,不过,这块地只销售给经麒麟科创园管委会认定的人才。
今年下半年,仁恒6个项目预计都会上市,江宁小龙湾、麒麟、江北,“仁恒粉”们可以冲一波了。
江核
江北核心区——新居G10
江核G10地块在2022年7月12日南京第二次土拍中,被新居建设拿下,成交总价11.75亿,楼面价16132元/平,最高毛坯销售限价33500元/㎡,未来预计要卖到3.7万/㎡。
据企查查官显示,江北研创园G10地块的南京轩宇投资(新居)与仁恒,共同成立了南京轩恒房地产开发有限公司,其中仁恒占比5%。
该地块位于江北新区云飞街以东,慧谷路以北,园胜路以西,华创路以南。
规划用地性质为Rb商住混合用地,用地面积约26013平方米,拟建总建筑面积约 10.53 万平方米,其中地上建筑面积约7.44万平方米,地下建筑面积约3.09万平方米,主要功能为住宅、商业、车库及其配套用房。
根据规划显示项目将打造5栋25-31层的高层住宅,除此之外还有一栋2层高的商业用房,小区的整体体量并不大。
根据效果图显示,这5栋楼都采用了首层局部架空的设计,整体为简约现代的风格,外立面采用大面积玻璃材质,搭配银色铝板。
项目自带的2F滨水商业体设计感十足,昭示面积大。
此前,流传出G10地块的户型图,分别是面积约108㎡三房两厅两卫和130㎡四房两厅两卫,但是并未得到开发商回复,最后还是要以公示为准。
另外,据南京市公共资源交易中心官网显示,NO.新区2022G10房地产开发项目工程总承包招标公告出炉,项目总投资约22.4亿,总工期要求为1136日历天。
设计内容包括但不限于设计〔含方案设计、初步设计(含概算)、施工图设计、专项工程设计(含供配电设计、三网设计、智能化设计、恒温恒湿恒氧系统等。预计未来打造科技住宅。
G10地块位于江北核心区研创园板块,周边江苏省产业技术研究院、省产研院智能制造研究所等一批重点项目落户,超6万的高知群体在板块内就业。
地块附近规划有地铁11号线(在建)、15号线(规划中)4个站点,东南侧紧邻规划地铁15号线团结路站,未来可享受便捷的轨道交通出行;周边还有江北万达广场、砂之船等商业配套。
目前区域楼盘项目有越江时代、佳源广场玖棠府等项目,新房房价约3.4-3.6万/㎡,二手房价在3.6-3.8万/㎡。
江北核心区——颐居G03
去年4月22日,该地块仅1轮报价底价成交,最终被颐居建设拿下,拿地总价约22.7亿元,毛坯限价40000元/㎡,楼面地价23644元/㎡。据了解,颐居G03地块预计将于今年上市。
项目位于南京江北新区康环路以东,广西埂大街以北、康行路以南,康环路以西。
项目共打造了11栋15-16层的高层住宅,其中A地块共5栋15-16层住宅,B地块共6栋16层住宅。项目毛坯房限价4万/㎡,全装修再加装修包或将卖到4.5万/㎡。
根据效果图显示,这11栋楼都采用了首层局部架空的设计,另外,项目还打造了一个下沉庭院。
据悉,仁恒G03地块将引入科技系统,户型建筑面积段为125-250㎡,定位改善,不过最终还是得以官方公布为准。
根据此前消息,项目将由颐居、仁恒、中铁建、扬子城投四家房企联合开发,仁恒操盘。从企查查来看,在2022年6月成立的南京颐新居置业有限公司由三家企业分别出资:南京国诚置业有限公司(颐居)占比51%;南京扬子江开发置业有限公司(扬子国投)占比39%;南京仁恒江洲房地产开发有限公司占比10%。
G03地块优质,周边配套丰富。鼓楼幼儿园(江北分园)、健康城育英小学、南京一中江北校区高中部等教育资源距其不远,周边还有在建的地铁4号线二期浦江站、在建地铁11号线商务东街站,而且还靠近扬子江隧道和广西埂大街。
不仅如此,项目周边还拥有南京国际健康城社区服务中心、南京鼓楼医院江北国际医院等配套;
另外,项目临近的晴翠府拥有配套的卓悦汇,且已与京东达成协议;加上地块不远处即为在建的华润万象商业;另外还有江苏第一高楼——约500米的绿地金茂国际金融中心,以及480万方的江北地下城,目前一期已建成,二期正在施工当中。
项目紧邻去年二批次中出让的颐居建设G07、G08地块,值得一提的是这两幅地块均为颐居拿下,并且不设毛坯限价,其中G07拿地总价为10.8亿元,G08地块拿地总价为10.35亿元。近期也有消息称,这两幅地块或将有仁恒操盘,具体还是等待官宣吧!
浦口城南中心
江北城南中心——浦口国资G59
该地块于去年7月12日土拍中被成功出让,经过1轮竞价,最终以23.8亿的成交总价被浦口区国有资产投资竞得,毛坯限价30500元/㎡,楼面地价15469元/㎡!
项目位于南京市浦口区南京市浦口区新南路以东、团结西路以北、科新路以西,总用地面积69936.7平方米。
G59地块出让条件:
(1)地块内不得设置商业。
(2)地块内应按每百户不少于30平方米的标准配套建设社区居家养老服务用房,同时须配建不低于25平方米的快件服务用房,由竞得人按规划标准建成并验收合格后,资产无偿交地方政府,由江浦街道负责督促建设。
该地块规划用地性质为R2二类居住用地,规划设计方案总建筑面积约 21.9万平方米,其中:地上建筑面积约15.4万平方米,主要功能为住宅及其配套用房;地下建筑面积约6.5万平方米,主要功能为车库。
根据规划显示,项目将拟建14栋24-26F高层住宅。
据资料显示,南京仁恒江洲房地产开发有限公司中标浦口城南中心G59地块项目,将负责房地产开发建设管理服务(代建)。

从效果图可以看出,社区内景观丰富,楼栋与楼栋之间间距较大,很好的保证了光照。
江宁
江宁小龙湾板块——金融城G93
去年10月19日,小龙湾G93地块经过1轮报价,就是由南京金融城建设竞得,成交总价26.65亿元,成交楼面价18658元/㎡。
值得注意的是,小龙湾商住用地G92地块也于2022年10月26日被金融城拿下,无疑未来G92、G93这一片将统一开发。而仁恒将操盘其中住宅部分,预计在今年下半年就入市。
小龙湾G93地块属于杨家圩二期地块,根据规划,未来杨家圩片区整体打造成服务于东山副城乃至江宁区的高端商务、商业、总部、科研、文化娱乐等为一体的综合性主中心,通过西门子路中心区功能轴线紧密相连,形成中心区的核心区。
根据江宁总体规划(2010-2030),在空间布局结构上, 未来江宁将规划形成“1核2区3园4带8片”的空间布局结构,核心区就是指凤凰港一杨家圩地区。
其次,G93该地块该地块附近的吃喝玩乐出行教育资源都已醇熟,公共生活配套齐全,居住环境优越,人居氛围浓郁。
地块附近最近的地铁站是1号线竹山路站,最近距离仅约500多米,且该站点还是1号线跟在建中的5号线的换乘站,以后交通非常便捷。
附近商业配套充足,隔壁就是龙湾天街,距离百家湖的景枫、江宁金鹰、百家湖1912都很近,去年刚开的金鹰E66也非常近;距离殷巷夜市美食街、谭桥商业小吃街行程都在3公里左右。
地块西北面就是江宁市民中心;附近还有杨家圩市民公园、竹山公园等景观资源。
当然,地块附近还有新亭西路小学、竹山小学、竹山中学等...
目前周边有龙湖春江郦城、东渡国际青年城以及万欣花园、蓝天公寓等小区;其中龙湖春江郦城位于江宁二手房房价第一梯队。
优越的地段性、周边品质次新房抗打的二手房价格,使得该地块在土拍之前,是江宁板块同批次出让地块中最受瞩目的!
麒麟科创园板块
仁恒华能G46
2022年7月12日,麒麟科创园G46地块最终经过1轮底价被华能拿下,成交总价23.8亿。
项目紧邻麒麟中央公园,处在麒麟科创园的核心位置,与仁恒城市星徽隔着一个麒麟科技生态中央公园。
该地块涵盖住宅、公寓、办公等业态,仁恒中标的项目涉及B、C、D分区和J、K(地下)分区,总用地面积52751.57㎡,用地性质为二类居住用地,建筑总面积约12.38万㎡。
根据规划,项目将打造12栋住宅、3栋公寓、2栋办公产品和商业等配套,住宅部分未来将打造三恒科技住宅,面积约90-180㎡。
地块放风价预计3.5万/㎡左右,按照90-180㎡户型来算,未来总价预计约315-630万左右,预计将于今年四季度上市。
从效果图来看,大面积银白色+香槟色铝板立面,非常惊艳。(具体以官方公布为准)
建面约165㎡户型图(以开发商公示为准)↓↓↓
该户型四开间朝南,其中三间卧室朝南,餐客厅一体大横厅设计,格局方正,南北通透,中西双厨房设计,主卧套房设计,并且主卫还是双台盆。

建面约165㎡户型图(以开发商公示为准)↓↓↓
该户型三开间朝南,与上面户型不同的是,该户型仅主卧和书房朝南,另外两间卧室朝北,南向为双联阳台,连通大横厅、书房。

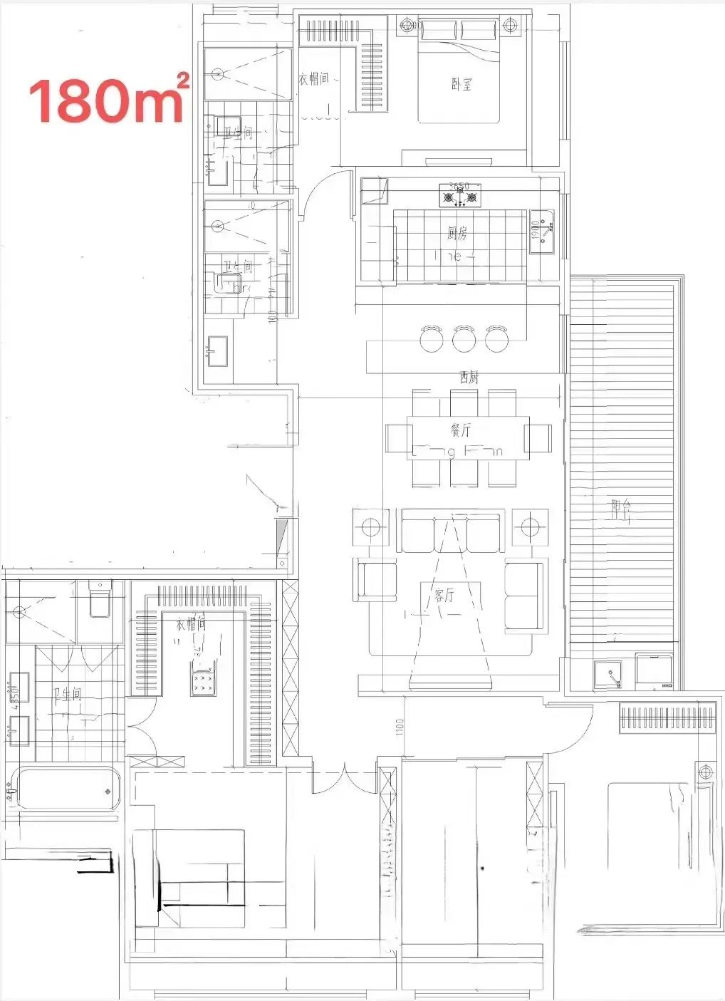
建面约180㎡户型图(以开发商公示为准)↓↓↓
该户型是边厅设计,超大阳台,客厅、餐厅一体,开放式厨房,主卧带有浴缸和独立衣帽间。

东南国资麒麟科创园G92
2021年9月26日,麒麟NO.2021G92地块经1轮底价成交,该地块被南京市科技创新投资有限责任公司拿下,成交总价8亿、楼面地价9867元/平、毛坯限价20800元/平。
值得一提的是该地块为“限销售对象、限销售价格”的限价商品房用地,竞得人竞得土地后须与麒麟科创园管委会签订《定购协议》,待项目竣工验收后,由麒麟科创园管委会按照20800元/平方米毛坯房均价对住宅部分进行定购,定向销售给经麒麟科创园管委会认定的人才。
根据规划,麒麟科创园人才共有产权房项目将结合高端人才居住需求,共打造6栋高层,拟设置约105、130、165和200㎡四个户型段,共约520套,以舒适三房、四房高层户型设计为主。
该小区会所、泳池、健身房、阅览室全都有,外立面玻璃幕墙+干挂石材+铝板,还是三恒科技房,整体将打造成高品质科技住宅小区。
