近日,麒麟科创园纯新盘仁恒华能G46地块传来新动态,户型图曝光。
此前,该地块透露将打造户型面积约99、125、143、165、180㎡五个户型,而本次流出的户型图面积段为165-180㎡。
不仅如此,项目的住宅部分未来将打造三恒科技住宅,预计今年8月份上市。同片区的高科紫麒景院也预计在今年首开入市。
01、户型图曝光,格局方正,超大横厅
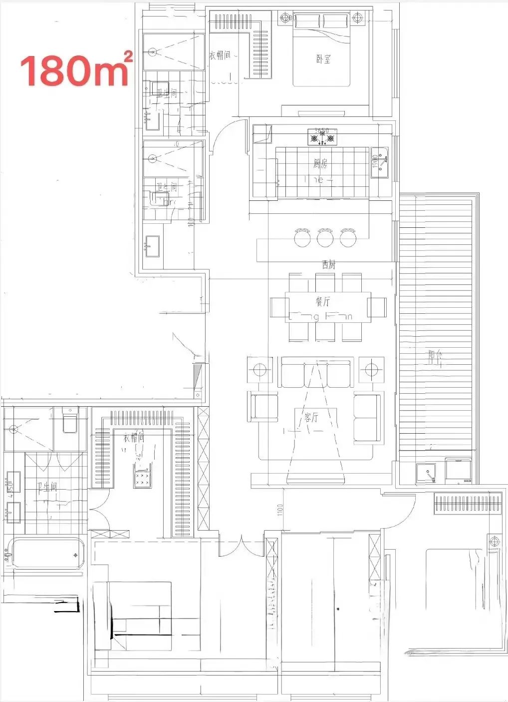
据最新消息,麟科创园纯新盘仁恒华能G46地块165㎡-180㎡面积段户型图曝光。
建面约165㎡户型图(以开发商公示为准)↓↓↓

该户型四开间朝南,其中三间卧室朝南,餐客厅一体大横厅设计,格局方正,南北通透,中西双厨房设计,主卧套房设计,并且主卫还是双台盆。

建面约165㎡户型图(以开发商公示为准)↓↓↓
该户型三开间朝南,与上面户型不同的是,该户型仅主卧和书房朝南,另外两间卧室朝北,南向为双联阳台,连通大横厅、书房。

建面约180㎡户型图(以开发商公示为准)↓↓↓
该户型是边厅设计,超大阳台,客厅、餐厅一体,开放式厨房,主卧带有浴缸和独立衣帽间。

项目紧邻麒麟中央公园,处在麒麟科创园的核心位置,与仁恒城市星徽隔着一个麒麟科技生态中央公园。
- 地块四至:东至文瑞路,南至智汇路,西至沧波门北街,北至运粮河东路;
- 出让面积:152037.45㎡(含仅出让地下空间30036.46㎡);
- 用地性质:R2二类居住用地,Bd商办混合用地;
2022年7月12日,麒麟科创园G46地块最终经过1轮底价被华能拿下,成交总价23.8亿。该地块涵盖住宅、公寓、办公等业态,这次仁恒中标的项目涉及B、C、D分区和J、K(地下)分区,总用地面积52751.57㎡,用地性质为二类居住用地,建筑总面积约12.38万㎡。
根据规划,项目将打造12栋住宅、3栋公寓、2栋办公产品和商业等配套,有望成为区域新地标。
02、今年,麒麟科创园两大住宅或将正面竞争
其实,这不是仁恒第一次进驻麒麟科创园。
去年7月,麒麟科创园人才共有产权房项目正式开工,据悉,该项目结合高端人才居住需求,拟设置约105、130、165和200㎡四个户型段约520套,以舒适三房、四房高层户型设计为主,依托麒麟科创园完善的商业、教育及其他生活配套,整体将打造成高品质科技住宅小区。
小区采用人车分流设计,配建包含泳池、健身房、阅览室、儿童活动室等功能,不小于1500平方米的公共活动中心。
根据此前项目建设方仁恒置地南京公司总经理高勇军介绍: 住宅按恒温恒湿恒氧、绿色建筑三星、健康住宅二星要求进行设计,同时景观标准、公区装修标准、智能化设计标准、外立面标准等均按高品质、国际化居住社区设计,将打造成为麒麟科创园乃至全市的标杆住宅,为城市塑造人居地标,为园区注入创新活力。
除此之外,麒麟科创园还有一个纯新盘待上市,那就是高科·紫麟景院。
项目从拿地开始就十分低调,关于项目的信息少之又少而且该项目也迟迟未动,与楼市其他风风火火的快节奏截然不同!
2021年12月,麒麟G87地块被高科以底价9.8亿元拿下,成交楼面价6420元/㎡,未来毛坯限价26000元/㎡,这还是仙林板块住宅一哥高科首次落子麒麟。
项目拟建6栋17-19层高住宅产品,最大楼间距达到73米,预计在今年上市,户型建面约89、107、134、143㎡,毛坯限价2.6万/㎡,预计加包超3万元/㎡。
片区内目前在售的还有星河钟山盛世:主力在售3、5、6号楼,户型建面均为98、114㎡,全装修,销许均价约30398元/㎡,另有2150元/㎡装修升级包,首付3成。
2010年6月,麒麟科创园正式启动,但到2013年后,板块发展停滞不前,直到2020年仁恒、高科、金地等大品牌入驻后,才把麒麟带火。
去年年初,麒麟科创园板块迎来产业利好,签约7个央企区域总部创新项目,此外中国能谷(启动区)项目在南京麒麟科创园正式开工。
交通方面,有轨电车1号线可到马群与地铁2号线进行换乘;板块内还规划了地铁8号线,10号线二期、12号线、光华路东延建成通车等等一系列交通利好正在加速兑现,未来这里出行将十分便利。
教育方面,2019年,南外仙林分校与麒麟小学、麒麟中学、麒麟科创园学校三所学校签订合作办学协议麒麟,位于蓝光睿创新筑与熙悦中间位置的南京力学小学分校的已开学,还有英国知名的莱爵公学,教育资源十分丰富。
商业方面,麒麟中央公园北侧不远处有江苏广电打造的麒麟荔枝广场,总体量约21万方,建成以后将成为城东最大的商业中心,将包含希尔顿酒店、幸福蓝海影院等多种业态。
产业方面,板块内聚集了一众知名高新创新企业,不仅仅为片区内带来了深厚的产业基础,更为板块内引进了一批先进的高新技术人才。
