近日,南京规划和自然资源局官网发布《NO.2022G59项目规划设计方案》。
01、毛坯限价3.05万/㎡,浦口城南中心新增14栋高层
项目位于南京市浦口区南京市浦口区新南路以东、团结西路以北、科新路以西,总用地面积69936.7平方米。
该地块于今年7月12日土拍中被成功出让,经过1轮竞价,最终以23.8亿的成交总价被浦口区国有资产投资竞得,毛坯限价30500元/㎡,楼面地价15469元/㎡!
G59地块出让条件:
(1)地块内不得设置商业。

(2)地块内应按每百户不少于30平方米的标准配套建设社区居家养老服务用房,同时须配建不低于25平方米的快件服务用房,由竞得人按规划标准建成并验收合格后,资产无偿交地方政府,由江浦街道负责督促建设。
该地块规划用地性质为R2二类居住用地,其中容积率≤2.2,绿地率>35%,建筑高度≤80 米,建筑密度≤20%。规划设计方案总建筑面积约 21.9万平方米,其中:地上建筑面积约15.4万平方米,主要功能为住宅及其配套用房;地下建筑面积约6.5万平方米,主要功能为车库。
根据规划显示,项目将拟建14栋24-26F高层住宅。
早在今年10月份,该地块就传出将由仁恒代建!据资料显示,南京仁恒江洲房地产开发有限公司中标浦口城南中心G59地块项目,将负责房地产开发建设管理服务(代建)。

南京仁恒江洲房地产开发有限公司中标NO.2022G59城南中心10号地块项目,中标金额为21337.425万。
从效果图可以看出,社区内景观丰富,楼栋与楼栋之间间距较大,很好的保证了光照。
值得一提的是,进入2022年以来,仁恒并没有拿地,但却经常通过合作的方式参与新项目的代建、操盘等。例如:仁恒与颐居建设、扬子国投合作开发江北核心区G03地块(仁恒操盘)、仁恒与南京新居建设合作开发江核研创园G10地块、代建麒麟科创园人才共有产权房项目等等。仁恒的进驻,对于提升项目品质,恢复市场信心,或将产生显著的推动作用。
02、配套醇熟,板块内新房数量充足
浦口城南中心可以算是江北的“后起之秀”,前些年,该板块并未大规模卖地,区域内空白地块较多、开发难度较小,另外板块内的规划也十分全面,商办、教育、住宅等待开发土地较多,可塑性高,未来的发展潜力巨大。
上月底,南京规划和自然资源局官网公示了NO.2021G53项目G、M分区规划设计方案。
根据规划显示,G、M分区规划用地性质为Bb商办混合用地,其中G分区用地面积为24239.62㎡,容积率为≤4.5,绿地率≥20%,建筑高度≤180(m),建筑密度≤50%。
现规划设计方案总建筑面积约14.36万㎡,包括地上建筑面积约10.90万㎡,主要功能为酒店、酒店配套及办公;地下建筑面积约3.46万㎡,主要功能为地下车库及其配套用房。
M 分区用地面积为6724.50㎡,地下空间出让。
根据总平面示意图显示:
红色部分为酒店,内部包含酒店宴会厅规划;
黄色部分为办公,总高为99.35米,共计22层;
蓝色部分为办公+酒店,总高179.75米,接近180米,共计39层,其中1-26层为办公,27-39层为酒店。
值得注意的是,G、M分区是银城、融创、融政联合打造的约86万方复合式文化综合体——金陵星图CULTURE HUB的一部分。
根据规划,金陵星图CULTURE HUB集合复合文化中心3.0、理想文化住区、五星级酒店、酒店式公寓、矩阵商业六大业态于一体,营造的26大生活场景非常丰富。

其中,文化中心总建筑面积约20万方(含地下),包含科技馆、图书馆、演艺中心、市民活动中心及规划馆、多元商业,四大场馆五大业态,整体业态丰富,设计打造「文化+商业」的体验。

目前,浦口城南中心的新房储备较为充足,对于买房人来说,选择性多,容易“上车”。城南中心在售项目有4个:金陵星图、天悦锦麟、星河时代、天悦风华。待售项目有3个:中垠臻悦府、浦口国资G59地块、海信G55地块。

金陵星图
项目主力在售1、6、9号楼,有充足房源在售,建筑面积约89、113、139㎡,销许价约30136元/㎡,另有2500元/㎡的升级装修包,首付3成。


天悦锦麟
项目主力在售B2、B5号楼,户型建面约97、135㎡,销许均价约30505元/㎡,另有2500元/㎡升级装修包。目前项目B、C地块均有房源在售。


星河时代
在售少量尾房,户型建筑面积约128㎡,全装修销许均价29566-29915元/㎡,具体一房一价,另有2165元/㎡升级装修包可选。
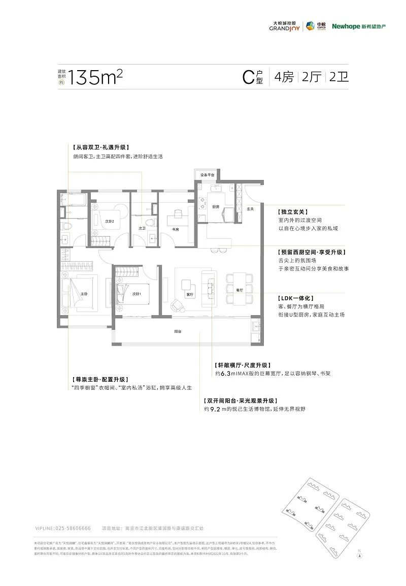
天悦风华
在今年首批次地块中出让的G13、G14地块,案名为天悦风华。毛坯限价均为29120元/㎡。
其中G13地块规划建设5栋15-17层住宅,G14地块规划建设8栋15-17层住宅。户型有89㎡三房两厅一卫,105㎡三房两厅两卫,得房率在80%左右。

目前项目在售G13地块1、3、4号楼,全装修房源,建筑面积约89、105㎡,销许价约31549元/㎡,另有2500元/㎡的升级装修包。

89㎡户型:三开间朝南,入户玄关,餐客厅一体化,U型厨房,客厅开间约3.6米,约6.45米双阳台,连通南向次卧。

105㎡户型:三开间朝南,入户玄关,U型厨房,餐客厅一体化,约3.7米开间客厅,外连6.7米宽屏大阳台;主卧为套房设计,带飘窗,预留衣柜空间;

中垠臻悦府
中垠臻悦府,前身是中垠G12地块,于今年4月22日出让,经过3轮竞价,最终被山东健康&中垠拿下,毛坯限价28188元/㎡,拿地总价约6.8亿元,楼面地价16599元/㎡。
根据规划,项目将建设6栋17-18F住宅,建面约88—98㎡,预计含包价格在3.2万/㎡左右,今年上市。
目前,项目3大户型图曝光,建面分别约83㎡、88㎡、98㎡,均为刚需入门级面积。
其中98㎡户型三开间朝南,入户玄关、主卧套房设计;88㎡户型与98㎡布局相似,面积有一定差异;83㎡户型布局方正,大开间阳台、宽幕横厅。
值得一提的是,这是城南中心继望江悦府76㎡的后,又一次诞生两房户型,届时又能吸引一大波刚需客群。

海信浦口城南中心G55地块
今年7月12日,浦口NO.2022G55地块被海信地产以5.2亿底价拿下。项目拟建5栋17F小高层住宅楼以及相关配套设施,楼面价15964元/m2,毛坯限价31000元/㎡。
浦口城南中心目前正处于飞速发展的上升期,在后边配套不断在完善:
交通上:城南中心沿着浦滨路、浦云路向外扩散,北侧与浦口大道、长江隧道相连,南侧与五桥接壤;另外,板块内还有号称“换乘王”的地铁11号线(在建),可与3、4、10、11、13、15、17等多条地铁线路换乘,未来,城南中心将是江北地铁最为密集的区域之一。
教育上,片区内规划设置了1所高中,2所初中,3所小学以及5所幼儿园的教育规划用地,有着全龄化的教育配套。(项目具体学校以政府最终划分为准)
自然景观上,周边游城南河活力带、芝麻河品质生活带、浦云路网红大桥、红色引擎广场等滨水景点,同时规划建设南北滨水湿地公园(规划)、多个社区公园(规划),十分宜居。
