近日,城南中心新盘中垠臻悦府3大户型图曝光,建面约83㎡户型起步!该楼盘的毛坯限价为28188元/㎡,后期全装修价格约29688-30188元/平,再加上升级包,预计要卖到3.2万/㎡,计划今年上市。
01、83㎡起步!刚刚,浦口城南中心纯新盘户型图曝光!
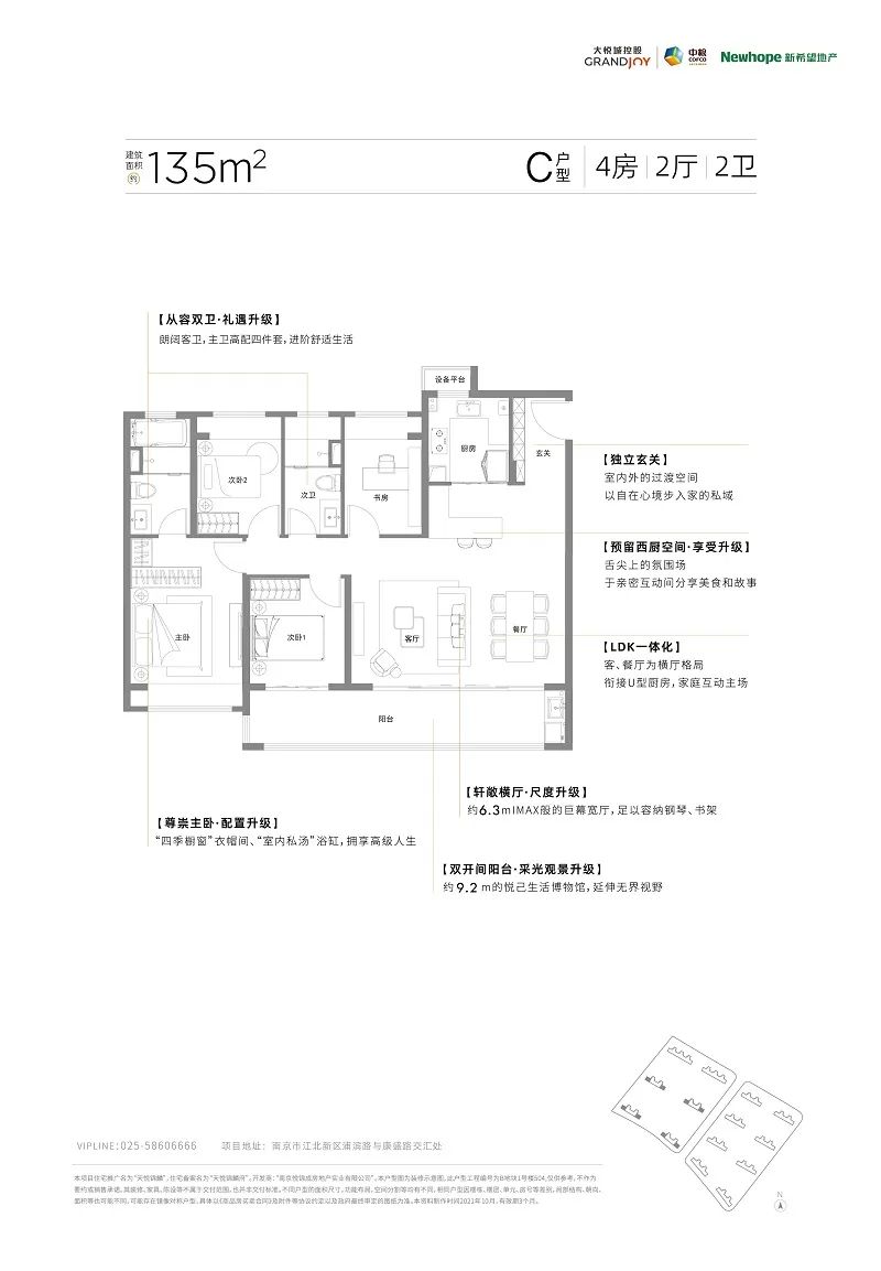
近日,城南中心纯新盘中垠臻悦府3大户型图曝光,建面分别约98㎡、88㎡、83㎡,均为刚需入门级面积。
其中98㎡户型三开间朝南,入户玄关、主卧套房设计;88㎡户型与98㎡布局相似,面积有一定差异;83㎡户型布局方正,大开间阳台、宽幕横厅;
具体户型展示如下:
值得一提的是,这是城南中心继望江悦府76㎡的后,又一次诞生两房户型,届时又能吸引一大波刚需客群。

项目位于浦口区,用地东至科新路,西至新南路,北至规划道路,南至团结路。地块东侧规划11号线轨道交通,西侧现有中学。根据规划,项目将新增6栋17-18F的住宅。
该项目前身为中垠G12地块,于今年4月22日出让,经过3轮竞价,最终被山东健康&中垠拿下,毛坯限价28188元/㎡,拿地总价约6.8亿元,楼面地价16599元/㎡,后期全装修价格约29688-30188元/平,再加上升级包,预计要卖到3.2万/㎡,计划今年上市。
项目外立面灰白色调,整体看上去大气,高矮错落的景观数搭配有致,小区入口处设置了人车分流。
小区内设置“一轴四进”之景,静享岛、欢聚岛、阳光岛、童话岛森居系空间,多元复合运动场,全龄儿童游乐区。
02、配套醇熟,目前板块内新房房源充足!
值得一提的是,今年首次土拍,浦口城南中心出让了3幅重磅优质地块,分别是G12(中垠臻悦府)、G13、G14地块(天悦风华),而就在7月12日土拍中,浦口城南中心再次出让两幅优质地块,分别是G55地块和G59地块,另外在售的还有天悦锦麟和金陵星图。
G55地块 :经过1轮竞价,最终以5.2亿的成交总价被海信地产竞得,毛坯限价31000元/㎡,楼面地价15964元/㎡!相比第一批次出让的天悦风华来看(毛坯限价29120元/㎡),微涨约1880元/㎡。
G59地块:经过1轮竞价,最终以23.8亿的成交总价被浦口区国有资产投资竞得,毛坯限价30500元/㎡,楼面地价15469元/㎡!较此前(28188元/㎡)上涨约在2312元/㎡左右。
值得一提的是,南京仁恒江洲房地产开发有限公司中标浦口城南中心G59地块项目,将负责房地产开发建设管理服务(代建)。这也就意味着仁恒将代建该地块,品质将有新的升级!

天悦风华:在售13地块1、3号楼,全装修房源,建筑面积约89、105㎡,销许价约31549元/㎡,另有2500元/㎡的升级装修包。
89㎡户型:三开间朝南,入户玄关,餐客厅一体化,U型厨房,客厅开间约3.6米,约6.45米双阳台,连通南向次卧。

105㎡户型:三开间朝南,入户玄关,U型厨房,餐客厅一体化,约3.7米开间客厅,外连6.7米宽屏大阳台;主卧为套房设计,带飘窗,预留衣柜空间;

天悦锦麟:在售主力楼栋B2、B5号楼,户型建面约97、135㎡,销许均价约30505元/㎡,另有2500元/平升级装修包。
在户型打造方面,天悦锦麟共打造了建面约97、117、135㎡3大户型;
其中建面约97㎡三房两厅两卫的户型可以说是项目的明星户型;3开间朝南,双阳台,保证了充足的采光和通风、主卧自带衣帽间,值得一提的是,通常通常九十几平的户型,都为一卫的设计,而天悦锦麟97㎡的户型设计了双卫生间,极大地解决了生活中的不便。


金陵星图:主力在售1、6、9号楼,有充足房源在售,建筑面积约89、113、139㎡,销许价约30136元/㎡,另有2500元/㎡的升级装修包,首付3成。


浦口城南中心目前正处于飞速发展的上升期,在后边配套不断在完善:
交通上:城南中心沿着浦滨路、浦云路向外扩散,北侧与浦口大道、长江隧道相连,南侧与五桥接壤;另外,板块内还有号称“换乘王”的地铁11号线(在建),可与3、4、10、11、13、15、17等多条地铁线路换乘,未来,城南中心将是江北地铁最为密集的区域之一。
教育上,片区内规划设置了1所高中,2所初中,3所小学以及5所幼儿园的教育规划用地,有着全龄化的教育配套。(项目具体学校以政府最终划分为准)
自然景观上,周边游城南河活力带、芝麻河品质生活带、浦云路网红大桥、红色引擎广场等滨水景点,同时规划建设南北滨水湿地公园(规划)、多个社区公园(规划),十分宜居。
