刚刚,本站在浏览南京规划和自然资源局时发现,城东汇通路G44地块规划出炉!
01、拟建8幢高层住宅!刚刚,汇通路G44地块规划出炉!
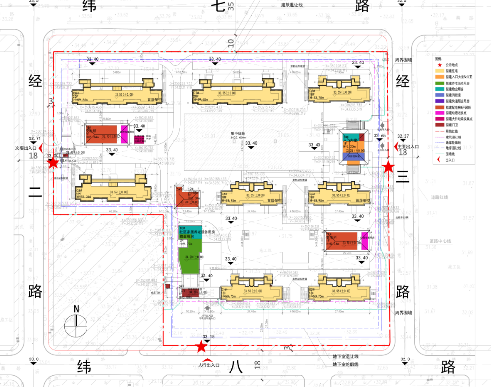
根据规划显示,城东汇通路G44地块将拟建8栋高层住宅及相关配套用房。
该地块位于南京市江宁区麒麟街道,东至经三路、南至纬八路、西至经二路、北至纬七路规划用地。
今年7月,仅1轮报价,汇通路G44地块被南京地铁小镇开发建设集团有限公司以底价11亿拿下,成交楼面价约17527元/㎡,毛坯销售限价28500元/㎡。
项目拟建设8栋高层住宅及配套用房,总建筑面积约9.1万平方米,其中地上建筑面积约6.4万平方米,地下建筑面积约2.7万平方米。经核,该项目设计方案各项规划指标均符合法律法规要求。

项目总建筑面积约9.1万平方米,其中地上建筑面积约6.4万平方米,地下建筑面积约2.7万平方米。其中地上拟建8栋18—20F高层住宅,以及社区养老服务用房等。
从项目南向效果图来看,现代化风格,公建化外立面,大面积采用玻璃窗。
02、目前,汇通路板块还有这些可选……
汇通路可以称得上是一个黑马板块,从板块概念提出至今,目前区域内已聚集了万科、新城、正荣、中南等品牌房企,加之在政府规划下,各项利好不断!
交通方面 ,项目紧邻2号线和4号线,而且项目南侧为金马路东延(规划中),西侧为仙隐南路的延展(规划中),可直接连接仙林大道通往仙林中心。
商业方面 ,周边游金鹰湖滨天地、九霄梦天地以及未来的德基等等。
生态方面,周边有紫金山、灵山、羊山湖等多处大型生态景观的环绕。
产业方面,板块内有在建的中国电子科技集团公司第二十八研究所,地理信息产业园、紫东国际创意园区等大型园区,未来这里将涌入上万人办公,为汇通路板块注入源源不断的人流。
教育方面,板块内名校环绕,南大、南师大、南邮、南财等等直接将板块拔高了一个档次!
目前,该板块并不缺新房,目前还有2盘待售(南京地铁G44、G45),4盘在售(润岚府(尾盘)、新城振业铭著风华、万科紫辰光年、牡丹大观天下)。
待售项目:
- 南京地铁G44地块
2022年7月12日,汇通路G44经过1轮竞拍最终被南京地铁底价拿下,毛坯限价28500元/㎡,拿地总价约11亿元,楼面地价17527元/㎡!
- 南京地铁G45地块
2022年7月12日,汇通路G45地块经过1轮竞拍最终被南京地铁底价拿下,成交总价3.9亿、楼面地价15517元/㎡、毛坯限价28215元/㎡。
两幅地块紧邻,周边有铭著风华、万科紫辰光年,中南·君启和牡丹·大观天下,北侧为仙外汇通路校区,靠近4号线汇通路地铁站。
在售项目:
- 润岚府
润岚府剩余少量跃层,户型建筑面积约250㎡,全装修均价24000元/㎡。
- 新城振业铭著风华
项目目前在售4、8号楼,共144套(人才44套、无房44/58套),户型建面约97、115㎡,精装销许均价约29593元/㎡,另有升级装修包2800元/㎡,首付最低3成。
户型图一览:




项目以“可栖居的园林”为理念规划,量身打造全龄环氧配套共享的“森语+社区”。约500米森氧跑道、亲子口袋乐园、有氧锻炼空间等。
南向窗墙比达0.42,规制出整体建筑的通透感与韵律感,楼间距最大超60米。
在精装方面,项目配备日立中央空调系统、威能地暖供热系统、爱迪生新风系统三大件,智能控制系统、环境控制系统、家庭安全系统、智能语音系统四大智慧系统质感精筑。
入户挂钩设计、床头双控开关、电热毛巾架等众多人性化细节打造,玄关、客餐厅、厨房、阳台、卧室、卫生间、全屋空间质感精筑。
- 万科紫辰光年
项目主力在售3、5号楼,户型建面约115、143㎡,精装交付,销许均价约30866元/㎡,另有升级装修包3000元/㎡,两梯两户,没有连廊,首付最低3成。
万科·紫辰光年主力户型有建面约115㎡、143㎡两种,均采用LDKB空间一体化设计,亮点十足。
建面约115㎡户型定位更偏首次改善客群,为三房两厅两卫设计。该户型为横厅设计,开间约6米,多个功能区均自带采光源,无暗房;

项目升级室内装修采用“雅致灰”色调,低调大气;定制新风系统、中央空调、地暖三大件(不包括卫生间、厨房、阳台),厨房空间配备定制净水系统等等,居住品质一览无余。
建面约143㎡户型为四房两厅两卫设计,四开间朝南,其中客厅开间达到约5.1米,步入客厅,空间阔绰感扑面而来;南向双联阳台长约8.1米,采光、观景效果拉满;
LDKB一体化设计,厨房、餐厅、客厅、阳台均位于同一动线上,无形中拓展了活动区域的实用面积,轻松满足家庭聚会需求;
据悉整个主卧套房建面达到约20㎡,瞰景飘窗享受充足采光,自带淋浴+浴缸双浴卫生间,同时升级装修交付衣柜,兼顾私密性与居住舒适度。
- 牡丹大观天下
项目在售5、9号楼,户型建面均为103、125㎡,销许均价约29989元/㎡,另有2800元/㎡装修升级包,首付3成,精装三大件分别采用大金、威能、爱迪士国际一线品牌。
在装裱上,项目配备大金(或同档次品牌)品牌中央空调、配备爱迪士(或同档次品牌)新风、威能(或同档次品牌)全屋地暖,选用博世、飞利浦、汉斯格雅、唯宝、瑞高、松下、斯力高、卡迪斯、欧派等国际一线品牌。
入户门选用松下(或同档次品牌)智能入户锁,配备冠林(或同档次品牌)可视对讲等智能化设备;厨房间采用博世(或同档次品牌)油烟机、飞利浦(或同档次品牌)凉霸;卫浴间精选汉斯格雅(或同档次品牌)花洒,唯宝(或同档次品牌)台盆、浴缸、坐便器,瑞高(或同档次品牌)淋浴房(具体装标以合同为准)。
项目将打造建面约103、125、143㎡三种主力户型:



