据置业顾问消息,这个周末,河西三家纯新豪宅将会公开,跟大家见面了!
1、河西南——星叶·云墅将于本周六公开实景示范区及样板间,共计约152套房源,户型建面约220、280㎡,放风价约5.3万/㎡,预计总价1100万起步!
2、河西南——枫璟雅园预计本周六公开城市展厅,地址位于华彩天地负一楼。
3、河西中——越秀和樾府预计本周六公开售楼处、样板间,预约参观需700万验资跟购房证明,最快11月底首开300套房!
河西南——星叶·云墅
项目将于本周六公开实景示范区及样板间。项目前身是河西南G112地块,是去年第三批河西南出让土地中,地块条件最好也是限价最高的一幅!所以土拍当日,该地块仅用时32秒就触顶成交,最终摇号被栖霞建设拿下,成交总价12.9亿元,成交楼面价为34971元/㎡,未来毛坯限价46350元/㎡,当时刷新了河西南的毛坯限价。

根据规划,项目规划了6栋12-13F小高层产品,另外还规划有一个下沉式庭院,物业、配电、快递用房等,最大楼间距约43米。此外,项目容积率2.0,限高50米,是河西南为数不多的低密小高层住宅。
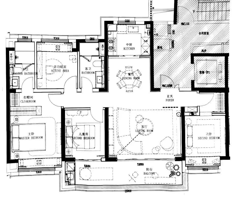
户型方面,项目主打造建面约220㎡、280㎡户型,全四房。建面约220㎡的户型,在河西南是最大的起步户型!这无疑直接将小区圈层拔高到南京顶端。
户型特点:四房两厅两卫,独立电梯入户,一梯一户设计,层高约3.15米,南北通透;约80㎡餐客厅,采用动静分区;敞开式厨房、餐厅设计,带西厨吧台+岛台+飘窗,采光通透,布局合理;双联阳台达到11.5米;南向双套房设计,都配置了独立卫生间,其中主卧还配置了独立衣帽间。建面约280㎡的户型,空间感更加奢阔。
户型特点:四房两厅四卫,独立电梯入户,一梯一户设计,层高约3.3米,南北通透,六开间朝南, 近18米的超级跑道阳台;南向三套房设计,都配置了独立卫生间,其中主卧还配置了独立衣帽间。
外立面方面,项目采用IMAX钻感外立面,窗墙比极高,折射出现代主义极简主张。
园林设计方面,50米恢弘大堂、内部园林水景,都烘托出尊崇的归家体验。此外,小区还配置游泳池、健身馆等丰富配套。不久我们就能看到实景图。
从区位上看,星叶·云墅位于河西南“老星八客”片区,夹在五矿崇文金城与朗诗熙华府之间,东边是五矿崇文金城,西边是朗诗熙华府,南边是南外河西二附小,北边是青莲公园。
北边还有吴侯街嘉华、正荣、金地在内的三大商业综合体,这一片区配套相对更加成熟。周边二手房成交价在6万/㎡以上。
项目由栖霞建设开发,共计约152套房源,户型建面约220、280㎡,放风价约5.3万/㎡,预计总价1100万起步!
至于河西南的枫璟雅园将于本周六公开城市展厅,地址位于华彩天地负一楼。详情请见昨日稿件:《放风价5.4万/㎡,河西南纯新盘本周六公开,预计年底入市!》
河西中——越秀和樾府
项目预计本周六公开售楼处、样板间,预约参观需700万验资跟购房证明,最快11月底首开300套房,放风价约6.3万/㎡。
项目前身是河西中G28地块,在今年第二次集中供地土拍中,经过31轮竞价触顶摇号,被越秀以总价约27亿元竞得,楼面地价40806元/㎡,毛坯限价55000元/㎡!
值得注意的是,越秀G28是今年南京第二次土地集中出让中河西中唯一一块地;也是河西中首幅“双限”地块!
根据规划,项目拟建6栋30层高层住宅,另有两栋配电房、两栋养老或物业用房,小区的北侧与西侧设有入口,最高楼间距达41米!
项目主力户型为143㎡(四房两厅两卫)、175㎡(4房2厅3卫),科技住宅。此外据放风消息,项目未来还带有会所 ,含泳池、宴会厅、健身房、书吧等,属实是河西新豪宅标配了!目前来看,项目两个主力户型都偏向于改善,和紧邻的保利云际面积段相似,按照含包放风6.3万/㎡的价格来说,项目总价约900万起!
建面约143㎡四房两厅两卫:
四开间朝南+大横厅设计,带270°转角双开间阳台,主卧套房设计,而且3间卧室自带飘窗,南北加起来有4个飘窗。
建面约175㎡四房两厅三卫:
区别于143㎡户型,这个户型是南向双套房设计,父母房为南向明卫,在约180㎡以下户型中比较难得。据悉主卧还配备270°全视角飘窗,主卫双台盆+淋浴隔+浴缸设计。
起居室采用厨房+餐厅+客厅+阳台的LDKB一体化设计,宽度约6.2米大横厅+约8.4米双开间南向大阳台。
项目具体位于河西中部、建邺高新区(新城科技园)中部,属于建邺区沙洲街道。西至创意路,北至楠溪江东街,南侧河西大街,东侧为金洲苑小区,地块北侧为已建通信设施。
地铁方面:直线距离约400米至地铁中胜站(在建7号线+10号线),直线距离约1.5km至2号线元通站。商业方面:一街之隔就是龙湖A标级天街,36万方超级综合体,24小时+生活赋能中心,同时享受华采天地、德基、IFC、金奥等商业辐射。学校方面:项目东侧在建新城科技园学校(九年一贯制),直线距离约1.5km可达南师附中黄山路小学、初中,建邺高级中学,直线距离3公里范围内涵盖南师附中教育集团、金陵中学教育集团、致远外国语等多所学校。
