01.尖岗山凤鸣水岸花园获批预售!推369套住宅
9月19日,位于宝安的凤鸣水岸花园获批预售!
项目共备案383套房源,其中包含369套住宅产品,为75-120平方米的3-4房,均价约8.3万元/平方米,单套总价约500万元起。

据了解,项目旁边为万科都会,于2021年6月开盘,推售住宅为70-115平方米户型,均价约8.82万元/平方米,单价区间在7.54-9.73万元/平方米,总价区间在524-1113万元/套,精装交付。
项目简介
佳兆业凤鸣水岸位于西乡街道尖岗山大道与卧龙四路交会处,周边无地铁,出行自驾或乘公交,周边公园、商业、教育配套都还算齐全。

项目占地面积约2.1万平方米,建筑面积约6.9万平方米,将打造四栋住宅产品,其中一、二栋为可售商品房,共372套,其中75平124套,95平186套,120平62套;三、四栋为人才房,只租不售。
02.蛇口招商玺家园摇号结果出炉!1614批客选604套房
招商玺家园登记人名册公示,共1614批客户成功登记。项目于今日(9月20日)9:30在前海公证处摇号,摇号结果已经全部出炉。
项目此次预售房源为604套住宅,为2栋-6栋单位,为124-127平方米单位和424平方米单位,其中,备案区间价格约为10-16.2万元/平方米(其中,小面积备案价格约10-11.6万元/平方米,大面积13.6-16.2万元/平方米),均为精装交付。
销售公示:
9月14日-16日为意向登记及资料提交阶段;
9月17日客户排序及入围审核阶段;
9月18日为保证金冻结阶段(2、3、4、5栋为350万,6栋为1200万);
9月18日-20日公示及摇号阶段;
9月21日正式选房。
扫码查看摇号结果:

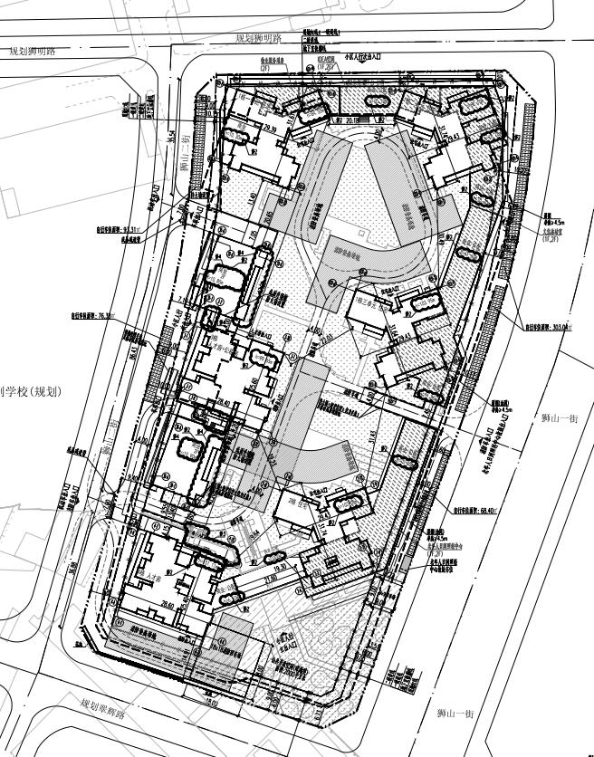
03.光明深业颐瑞府总平面图设计调整事宜的公示
深圳市规划和自然资源局光明管理局关于深业颐瑞府(A641-0030)总平面图设计调整事宜的公示。
深圳市深业明胜地产有限责任公司申请办理“深业颐瑞府”(宗地号:A641-0030)的建设工程规划许可证,涉及已批总平面图调整。
一、调整内容
深业颐瑞府项目位于光明区新湖街道规划翠辉路北侧与规划建昌路交汇处西北角,宗地号为A641-0030,该项目于2022年3月取得《建设工程规划许可证》(深规划资源建许字GM-2022-0021号),于2022年5月取得变更后的《建设用地规划许可证》(地字第440311202200099号)。本次调整的主要内容为(具体详见附件《屋顶总平面图》云线圈注部分):
(一)建设单位变更为“深圳市深业明胜地产有限责任公司”;
(二)调整1-4栋建筑高度;
(三)调整小区东南人行主入口、2栋及4栋主入口、4栋大堂的场地标高;
(四)原5栋、6栋二层商业纳入3栋商业裙房,3栋设置屋面平台与原5栋、6栋二层商业连接;原5栋、6栋一层商业进深加大,相应调整屋顶轮廓线;
(五)技术经济指标表部分指标修改,主要为地下核增面积由35102㎡改为35246㎡,其中共用停车库由33302㎡改为30992㎡,公用设备用房由1800㎡改为4254㎡;住宅户型套内小于90㎡的建筑面积由60047㎡改为67117㎡,详细调整见云线圈注范围。
本次修改涉及局部建筑布局、场地、经济指标表调整,修改内容基本符合《深圳市建筑设计规则》、《建设用地规划许可证》(地字第440311202200099号)和《土地使用权出让合同书》(深地合字(2021)7028号)及补充合同的规定要求。
规划显示,总户数为444套,户型套内建面小于90平方米的为333套,大于90平方米的为111套。
出售型人才住房与公共租赁住房户数为434套(公共租赁住房为120套,出售型人才住房为314套)。
界面楼谈 扫描二维码,一起买房吧!

