要说今年什么最火?露营,必然榜上有名。作为后疫情时代一种新的微度假旅游体验方式,它爆火的深层次原因,其实是随着物质生活的逐渐丰富,人们越来越追求精神上的富足。
生活方式的变化,反映到居住上,就是人们的关注点从性价比到了品质比,从买的值不值到品质好不好,这就对产品的设计提出了更高的要求。
作为处于“上升期”的绿城而言,做最懂客户的产品,做最懂产品的项目,一直是绿城保持长效发展的底气和软实力。所以是否在空间上采用创新设计,是否采用新的工艺、新的精装科技等,每一个动作都会以客户是否真的需要为前提。
绿城在北京望京的作品——晓风印月,就是在绿城产品标准之上的“属地化”再设计。除在建筑方面进行了升级之外,在园林、户型空间和精装上都从都市精英的高级别个性化需求出发,让客户对理想的坚持、对美好的热爱、对幸福的追求和期待,都能在晓风印月中兑现。
全龄开放式会客园林 美观与功能缺一不可

作为生活的第二社交空间,晓风印月以城市新贵客户对生活仪式感、社交感的需求为出发点,对园林进行了精心的设计,在保证美观性的同时,对园林的功能性作用更是做到了最大。
晓风庭、疏影庭、映月庭营造的“礼序三庭”,把归家的仪式感拉满,让情绪在此得以逐步放松;以约430米动力环为引,设计有七大花园,如长者专属的芥子园,中青年的优氧花园,孩子的秘境乐园等,全龄居者都能在这里找到自己的社交成长空间;更有从趣学、乐玩、妙用三个维度,为孩子打造的成长乐园——春知学堂,以知园、蝶园、香园、药园、蔬园、果园六大空间,将书本移归自然,让认知启发头脑。
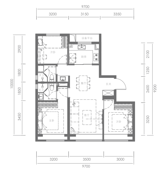
可生长的宽宅家 细微之处见真章
在产品定位之初,晓风印月便对客群进行了专题化的精细研究,抓住客户的痛点和敏感点,并以此为依据,设计建筑面积约102-169㎡三至四室全能空间,从物理属性、生活属性等维度进行了迭代升级。
扩容的尺度与舒适度
所有户型都做到了南北通透、全南向三面宽,而且建面约169㎡户型的南向尺度约12.9米,客厅面宽达约6米,把视野和舒适度扩容到了最大化,仪式感尽显。
LDK一体化
餐厨客一体化,是对客户生活场景的升级考量。一家人畅聊、孩子游乐、亲朋欢聚……空间灵活复合设计,让每一个家庭社交场景都可在这里随心切换。
可变空间设计
都说孩子越大,家越小。随着人生阶段和家庭结构的变化,人们在不同时期对空间的需求都会有所不同。晓风印月建筑面积约102-169㎡三至四室,可以满足多代人群所需。可变空间设计,可以作为卧室使用,亦可以作为绘画室、健身房等兴趣空间,随家庭而变。
国际品牌品质精装 体验温馨触感
一所“好房子”的诞生,需要方方面面的精心雕琢。从看不见的工艺细节,到看得见的精装实力,晓风印月的每一处考量都始终围绕着“人”,将对生活的解读转化为一个个妥帖入微、润物无声的细节中去,以高于标准的规格,赋予未来生活更多可能。
颜值系统/精致生活 美学是第一要义
我们始终认为“美,是第一生产力”,所以晓风印月的精装方案规划之初,便将颜值放在了重要位置。
餐客一体的天花吊顶统一铺装,不仅可以提升美观度,更能拉伸室内视野;客厅设计氛围灯带,搭配金属装饰线条,铺陈出厅间的温馨气氛,让归家的第一刻便能感受到宁静。主卧科技皮革硬包背景墙,柔和的色彩与触感,让休憩更安然。此外,厨房石英石超薄台面,将厨房的颜值拉升至另一高度,下厨做饭也成为一种享受。
品牌系统/国际背书 为至高标准正名
在当下的生活中,品牌已在无形之中成为一种力量,更是成为价值的代名词。“真金白银”的大手笔投入,也从侧面体现了晓风印月的至高标准。
四个户型主卫,都配备劳芬马桶,这个有着130年历史的瑞士顶配品牌,倍得高端项目、超五星酒店的青睐。高仪恒温花洒,杜拉维特台盆、浴缸,西门子厨电等众多一线国际品牌,为精装品质背书,以满配的诚意,打动对生活品质有更高追求的城市新贵客群。
收纳系统/全屋定制 让空间重归有序
在空间设计上,晓风印月根据客群的个性化需求,匹配了多元收纳空间,特别是在玄关、厨房、卫生间,将收纳功能发挥到了极致。
作为家与外界的转场,玄关处设计大容量玄关柜,让衣物、鞋子、小物件儿各得其所,方便拿取,出入更从容有序。厨房中,设有欧派整体橱柜,厨具等精心收纳,轻松扩容下厨空间。卫生间配有收纳镜柜,剃须刀、护肤品等悉数藏纳,映射生活的无限可能。
智慧系统/科技赋能 向美好生活进阶
在眼花缭乱的智能精装市场中,晓风印月始终坚持以客户的真正需要为出发点,让科技真正为更舒居的生活服务。
钥匙、密码、指纹、刷卡四合一的智能门锁,不必携带钥匙也能开门,用高科技守护每一次出入的心安。另外配有智能家居面板,可以一键控制新风、空调系统,便捷之余更能享受畅快的呼吸。
细节系统/人性化考量 时刻温暖守护
在绿城,产品无小事。大到一个建筑体,小到精装的一盏灯,都精心打磨,不留背面。
比如在主卧配置了感应小夜灯,通过红外线感应而触发动作。人来即亮,人走即灭,柔和灯光,守护安全亦不干扰家人休息。比如防溅开关盒,精细防护,让居家生活更安心。
在当前红海市场中,要想突出重围,“认真做好房子”是核心之道。不管是户型空间的设计,还是精装细节的打造,晓风印月都始终保持初心,以客户的需求为要,认真打磨。通过每一步的精益求精,稳扎稳打,以好房子、好生活犒赏城市新贵的品质追求。
