浦口城南中心纯新盘天悦风华明天正式亮相啦!
从置业顾问得知,浦口城南中心低密小户型天悦风华将于明天正式亮相,售楼处和样板间同步公开!

据悉,项目预计9月底10月初上市,项目最高毛坯销售限价29120元/㎡,未来上市精装价格预计将达到3.3万/㎡。
项目位于浦口区江浦街道,天悦风华的前身为2022G13、2022G14两个地块,今年4月22日,两幅地块均为中粮大悦城竞得。
浦口城南中心G13,仅1轮报价底价成交,最终被中粮大悦城拿下,拿地总价约5.2亿元,毛坯限价29120元/㎡,楼面地价17052元/㎡!

浦口城南中心G14:经过5轮竞价,最终被中粮大悦城拿下,毛坯限价29120元/㎡,拿地总价约9.1亿元,楼面地价17479元/㎡!
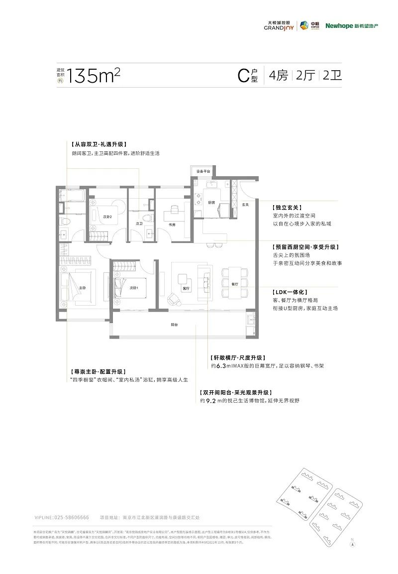
其中,G13地块规划建设5栋15-17层住宅及相关配套用房,G14地块规划建设8栋15-17层住宅及相关配套用房,共计800多套房,户型有89㎡三房两厅一卫,105㎡三房两厅两卫,得房率在80%左右。
89㎡户型:三开间朝南,入户玄关,餐客厅一体化,U型厨房,客厅开间约3.6米,约6.45米双阳台,连通南向次卧。

105㎡户型:三开间朝南,入户玄关,U型厨房,餐客厅一体化,约3.7米开间客厅,外连6.7米宽屏大阳台;主卧为套房设计,带飘窗,预留衣柜空间;

项目还设置10大主题景观,分别是:【星河礼遇】、【鲜氧森聚】、【童言童语】、【追光草浪】、【礼序雅苑】、【拾光浮庭】、【童真童乐】、【游影漫林】、【林下风华】、【青林茶话】。
从效果图来看,G13和G14地块建筑风格基本相同,毛坯销售限价也同样为29120元/㎡,后续上市后将为浦口城南中心注入新的血液。
这两幅地块南侧紧邻天悦锦麟、西侧靠近望江悦府,一路之隔即是规划中的九年一贯制学校。周边还有中海观江樾、保利阅云台等项目,均价在3.3万/㎡左右。
从交通配套来看:项目紧邻号称“换乘王”的地铁11号线(在建)的森林大道站,后续可与3、4、10、11、13、15、17等多条地铁线路换乘,未来,城南中心将是江北地铁最为密集的区域之一。
从教育配套来看:项目北侧规划设置了1所九年一贯制学校,1所高中,1所小学,另外城南中心北部已经确认引入南京一中分校。(项目具体学校以政府最终划分为准)
从商业配套来看:项目南侧即为14万方的大悦城,能满足居住的日常需求。
从自然配套看:以浦滨路为发展轴,两侧聚集了城南河活力带、芝麻河品质生活带、浦云路网红大桥、红色引擎广场等滨水景点,同时规划建设南北滨水湿地公园(规划)、多个社区公园(规划),十分宜居。
目前,板块内在售的新房不多,仅有天悦锦麟和金陵星图以及星河时代少量尾房在售。另外,除G13、G14外,今年两次土拍还有3幅待售,分别是G12、G55、G59。
G12地块:经过3轮竞价,最终被山东健康&中垠拿下,毛坯限价28188元/㎡,拿地总价约6.8亿元,楼面地价16599元/㎡!
G55地块 :经过1轮竞价,最终以5.2亿的成交总价被海信地产竞得,毛坯限价31000元/㎡,楼面地价15964元/㎡!相比第一批次出让的中粮G13&G14来看(毛坯限价29120元/㎡),微涨约1880元/㎡。
G59地块:经过1轮竞价,最终以23.8亿的成交总价被浦口区国有资产投资竞得,毛坯限价30500元/㎡,楼面地价15469元/㎡!较此前(28188元/㎡)上涨约在2312元/㎡左右。
从最新土拍的毛坯限价来看,浦口城南中心已经突破了3万/㎡,新房价格也将会再上一个台阶。
天悦锦麟:项目近日刚加推B2、B5号楼,共计248套全装修房源,户型建面约97、135平米,销许均价约30505元/平,另有2500元/平升级装修包。
在户型打造方面,天悦锦麟共打造了建面约97、117、135㎡3大户型;
其中建面约97㎡三房两厅两卫的户型可以说是项目的明星户型;3开间朝南,双阳台,保证了充足的采光和通风、主卧自带衣帽间,值得一提的是,通常通常九十几平的户型,都为一卫的设计,而天悦锦麟97㎡的户型设计了双卫生间,极大地解决了生活中的不便。



金陵星图:金陵星图主力在售B-1、B-3、B-4、B-9号楼,建筑面积约89、113、139㎡,销许价约29783元/㎡,另有2500元/㎡的升级装修包,首付3成。
星河时代:在售少量尾房,户型建筑面积约128㎡,全装修销许均价29566-29915元/㎡,具体一房一价,另有2165元/㎡升级装修包可选。
