昨天(8月25日)又有4盘领取销许,今起报名!于此同时,几千人陪跑的观泓雅苑,第二批共有产权房的物价刚刚批复,即将加推!
1、铭著风华领4、8号楼销许,共144套(人才44套、无房44/58套),户型建面约97、115㎡,精装销许均价约29593元/㎡,另有升级装修包2800元/㎡,首付最低3成。
2、天萃领2、4#销许,共196套房源,户型建筑面积98、108、113、126㎡,销许均价34349元/㎡,另有2400元/㎡升级装修包可选,首付3成。
3、上宸云际今日(8月25日)领取7号楼销许,共108套房源(人才33套,无房33/44套),户型建面约97、101、121㎡,销许均价约26171元/㎡,精装修交付。
4、碧桂园星语海领取7号楼销许,共72套房源,户型建面约89㎡,销许均价约19333元/㎡,精装修交付。
5、观泓雅苑第二批共有产权房的物价刚刚批复,即将加推,均价同上次一样为32062元/㎡,此次共有2215套房,要知道,项目上一次推出514套房,共吸引4073人报名!

01、毛坯限价2.9万/㎡!铭著风华即将加推!
铭著风华今日(8月25日)领4、8号楼销许,共144套(人才44套、无房44/58套),户型建面约97、115㎡,精装销许均价约29593元/㎡,另有升级装修包2800元/㎡,首付最低3成。
报名时间:8月26日上午09:00-8月28日上午09:00
报名方式:报名人可通过关注公众号:南京房产微政务,点击“宁小通”进入报名通道进行线上报名。
项目上一次加推时间为7月下旬,共约72套,户型建面约97、115㎡,精装销许均价约30161元/㎡,另有升级装修包2800元/㎡,截至目前累计认购+成交30套,去化超4成。
项目前身为汇通路-新城G46,去年5月21日,G46地块经过44轮竞价,以总价19.9亿元被新城竞得,楼面价22595元/㎡,未来该地块毛坯限价28500元/㎡,根据规划条件,项目拟建11栋住宅,在项目东侧规划有商业街,项目的得房率约80%。
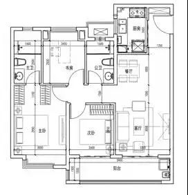
建筑面积约97㎡三房两厅两卫,是铭著风华的主力户型。不仅三开间朝南,南北通透,更配了两个全明卫生间!小面积高配置,最大限度保障生活的舒适度。

建筑面积约115㎡户型,做到了3+1房2厅2卫配置,比市面上常规3房多出一个书房,实为罕见。双卫设计,保证绝佳私密性。主次卧皆带南向大飘窗,南侧大宽厅以及270°采光大阳台,让美景尽收眼底。

值得一提的是,铭著风华紧邻地铁4号线汇通路站,“两横两纵”干道环伺,便捷出行。
项目周边规划了的两所幼儿园一所小学,拥揽羊山湖、紫金山等自然景观、人文景观。商业方面,周边有金鹰奥莱城、东城汇等,还有在建的苏宁广场、仙林德基广场;另外,项目东侧就是规划的商业街区等。
02、首付3成,均价3.4万/㎡!人居森林天萃即将加推!
越秀·天萃昨日(8月25日)领2、4#销许,共196套房源,户型建筑面积98、108、113、126㎡,销许均价34349元/㎡,另有2400元/㎡升级装修包可选,首付3成。
报名时间:8月26日上午9点至8月27日上午9点。
报名方式:报名人可通过关注公众号:南京房地产微政务,点击“房帮宁-买房报名-宁小通-商品房报名”进入报名通道进行线上报名。
该地块于2021年5月22日,被越秀夺得,成交总价414000万元,楼面地价25189元/㎡,未来毛坯限价33000元/㎡。
据规划,越秀G40地块总建筑面积约239455㎡,其中:地上建筑面积约164355㎡,主要建设14栋高层住宅、3栋低层商业及配套用房等;地下建筑面积约75100㎡,主要建设2层地下室,包含人防设施、配建停车库、非机动车库、地下商业及配套服务设施等。
03、均价2.6万/㎡!正方新城纯新盘再上新,108套房源即将入市!
上宸云际今日(8月25日)领取7号楼销许,共108套房源(人才33套,无房33/44套),户型建面约97、101、121㎡,销许均价约26171元/㎡,精装修交付。
报名时间为8月26日上午9点至8月27日上午9点。
报名方式:报名人可通过关注公众号:南京房地产微政务,点击“房帮宁-买房报名-宁小通-商品房报名”进入报名通道进行线上报名。
项目上一次加推108套房源,截至目前累计认购+成交约32套,去化不足3成。
该项目于去年2月的土拍中被旭辉摇号拿下,成交总价15.3亿元,成交楼面价13200元/㎡,未来毛坯限价24100元/㎡。
根据规划,上宸云际共拟建9栋25-27F住宅及商业、社区养老活动用房等配套,项目由旭辉、新城和天安联合开发,新城操盘。
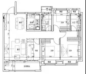
至于户型上,上宸云际打造了三大户型,分别为89㎡三房两厅一卫、约100㎡三房两厅两卫、约120㎡四房两厅两卫,都是双阳台户型。



值得注意的是,项目无精装包,全精装交付,交付时中央空调、地暖、新风三大件齐备,精装品牌也几乎全部采用威能、高仪、摩恩、海尔、方太等国内外一线品牌。
目前正方中路地铁口附近主要有两家楼盘,除了上宸云际,还有一家紧邻的玖华府。
玖华府刚刚报名结束,此次项目加推3#,共108套房源(人才33套、无房33/44套),户型建筑面积89、100㎡,销许均价26660元/㎡,首付3成,精装修交付,另有1200元/㎡装修包可选。
04、均价3.2万/㎡!南京首个共有产权住房再加推!
观泓雅苑第二批共有产权房的物价刚刚批复,即将加推,均价同上次一样为32062元/㎡,此次共有2215套房,要知道,项目上一次推出514套房,共吸引4073人报名!
项目即将加推A01、03、05、07、10、B01、02、04,共2215套房。
项目位于秦淮区观前里1号,东至G122地块、南至石杨路、西至御水湾花园、北至规划道路,土地性质为划拨用地,户型为75㎡、82㎡、88㎡、89㎡、115㎡。
根据规划,项目占地面积约9万㎡,规划总建面约38万㎡,主要由12幢住宅、约2万方自持运营商业、绿地及配套幼儿园组成。
值得一提的是,申购人可以自主选择一次性支付、住房公积金贷款、住房商业贷款或组合贷款等付款方式,不同付款方式的购房价格相同,贷款方式的首付比例不得少于购房款的三成。
观泓雅苑供应对象为:无住房、也未曾享受过产权型住房保障的本地市民(其中,35周岁以下个人还需提供在南京累计缴纳12个月的个人所得税或社会保险(城镇社会保险)证明)。
南京户籍家庭购买的共有产权住房在取得不动产权证满5年后,可申请上市转让;非南京户籍家庭或个人购买的共有产权住房在取得不动产权证满8年后,可申请上市转让。
共有产权住房申请转让时,申购人可将持有的产权份额按市场价优先转让给其他符合条件的家庭或个人,转让价格应不低于届时上市指导价,转让后的房屋性质仍为共有产权住房;若没有符合条件的家庭或个人购买,可申请公有权人进行回购;
对没有符合条件的家庭或个人购买、公有权人也不回购的,可将共有产权住房的全部份额按市场价上市交易,取得的收益按照申购人和公有权人各自持有的产权比例进行分割。
户型一览:







