根据南京网上房地产数据显示,上周(8月15日-8月21日),南京新房累计认购1076套,累计成交906套,相较于上上周(8月8日-8月14日)南京新房累计认购1015套,累计成交805,认购量上涨约6%,成交量上涨约12.5%。
开盘方面,上周仅有金基雅玥和蓝湖郡领取销许报名,但这两盘全部“流摇”,平推入市。
金基雅玥:项目8月17日领3、6#销许,共212套房源(人才64套、无房64/85套),户型建筑面积97、118、138㎡,全装修销许均价32786元/㎡,首付3成。
截至目前,据南京网上房地产显示,目前累计认购已上传数据的有71套,此前,项目首开248套房源,截至目前累计认购+成交234套,去化近95%。
户型图如下:



蓝湖郡今日(8月17日)领2#销许,共66套房源(人才14套,无房20套),户型建筑面积89㎡,销许均价19558元/㎡,首付3成,精装修交付。

建面约89㎡户型图如下:

同时,上周,4个纯新项目规划出炉,分别是百家湖G51、燕子矶G33、仙林湖G35、江核G09。
百家湖G51
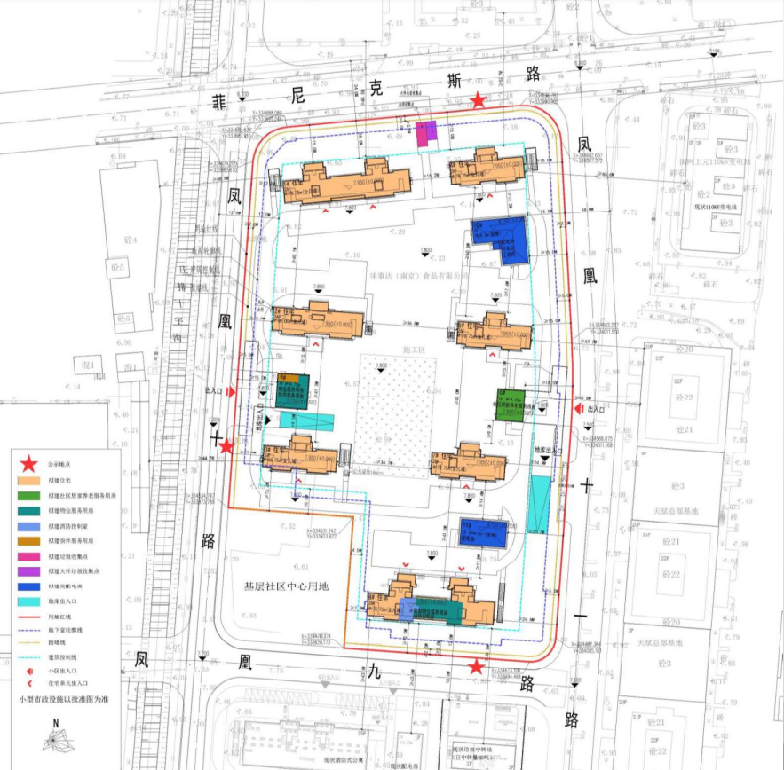
NO.2022G51地块房地产开发项目位于南京市江宁区江宁开发区凤凰十路以东、菲尼克斯路以南。
规划用地性质为R2二类居住用地,规划总用地面积25607.31平方米,1.0<容积率≤2.6,建筑高度≤80m,建筑密度≤20%,绿地率≥30%。
项目拟建7栋22-26F高层住宅及相关配套设施,总建筑面积约8.83万平方米,其中地上建筑面积约6.66万平方米,地下建筑面积约2.17万平方米,社区居家养老服务用房面积138.25平方米。
其中3号楼为22层,1、2、4、5、7、8号楼为26层,没有连廊。
外立面采用了大面积玻璃墙搭配银白色的线条,阳台统一封闭交付,整体大气美观。
江核G09
项目位于江北新区,广西埂大街以北、九袱洲路以东(具体范围以用地红线为准)。
712土拍中,江核G09地块经过2轮竞价,最终被保利拿下,不设毛坯限价实行差异化定价,拿地总价24.1亿元,楼面地价20724元/㎡!值得注意的是,G09是整个江北唯一一块没有底价成交的地块,该地块实行差异化定房价,即未来售价不限制。
项目分为A、B、C三个地块,A、B地块规划用地性质为R2二类居住用地(100%),C地块用地性质为S1城市道路用地(地下空间)(100%),共打造8栋17-32层高层住宅以及6栋1层商业。
A地块用地面积约1.8万平方米,拟建总建筑面积约6.5万平方米,其中地上建筑面积约5.0万平方米,地下建筑面积约1.5万平方米。
B地块用地面积约2.1万平方米,拟建总建筑面积约7.8万平方米,其中地上建筑面积约6.0万平方米,地下建筑面积约1.8万平方米。
C地块用地面积约0.28万平方米,地下建筑面积约0.24万平方米。主要建设内容为住宅、沿街商业、配套用房、地下停车库及其他配套设施。
从效果图可以看出,项目住宅部分外立面窗墙比较高,灰白色系辅以亮色线条,给人耳目一新的感觉!
燕子矶G33
NO.2022G33 地块项目位于燕子矶新城,东至现状铁路及防护绿地、南至燕恒路、西至怡园东路、北至松花江路。
今年712土拍中,该地块以23亿元的价格被南京品牌房企栖霞建设拿下,楼面地价18620元/㎡,未来毛坯限价32320元/㎡。
根据规划显示,项目将拟建10栋28-29F高层住宅,地块北侧为规划医院用地,占地面积约:44918.48平方米。
项目规划设计总建筑面积约:17.12万平方米,其中:地上建筑面积约 12.36 万平方米,主要功能为住宅、配套商业、物业、养老及配电房等相关配套设施;地下建筑面积约4.76万平方米,主要功能为地下车库、其他配套设施等。
效果图:
仙林湖G35
该地块位于栖霞区仙林街道白象片区,西临临山路、北临启智路、东临经天路、南临观山路。
712土拍中,栖霞建设21.3亿底价拿下仙林湖G35地块,楼面地价25015元/㎡、未来毛坯限价39000元/㎡。
本项目拟建总建筑面积约13.5 万平方米,其中:地上建筑面积约 8.5 万平方米,主要功能为住宅及相关配套服务用房:地下建筑约5万平方米,主要功能为机动车库、非机动车库及配套辅助用房等。
效果图:
