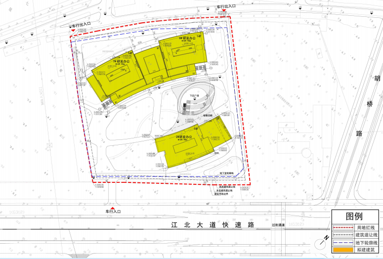
8月3日,南京规划和自然资源局官网发布了《龙华智谷北区规划设计方案批前公示》。
项目位于江北大道快速路北侧,南京工业大学(江浦校区)南侧,西至龙华智谷南区、南至浦珠南路、东至现有企业用地、北至市政道路与校区相隔河道。
规划用地性质为B29a科研办公用地,用地面积约32631.92平方米,容积率≤2.5,绿地率≥30%,建筑高度≤60米。
拟建总建筑面积约14.16万平方米,其中地上建筑面积约8.16万平方米,地下建筑面积约6万平方米。主要建设内容为办公及配套服务用房、地下车库及其他配套设施。
从效果图来看,项目造型新颖,外立面采用了大面积的玻璃幕墙,颜值十分在线。
值得一提的是,项目一路之隔便是江北核心区,待项目建成后,将成为片区的封面地标级建筑,对提升片区城市风貌有积极影响!

另外,龙华智谷南区正在如火如荼的建设中,龙华智谷(南区)分为 B、C 两个地块。
B 地块项目主要建设内容为研发办公。项目用地面积约为 22371 平方米。拟建总建筑面积约93175平方米。
C 地块项目主要建设内容为学术交流中心。项目用地面积约为4508平方米, 规划用地性 质为 B29a 科研设计用地,拟建总建筑面积约16274平方米。
该项目为江北科投集团携手南京工业大学,强强联手打造而成。龙华智谷北区总计建筑面积约23.2万方,加上施工中的南区9.3万方,南北两区总计约32.5万方,其先进的智谷概念,结合南工大的研发力,堪称“江北大脑”。
待后续建成投入运营后,将为片区引入不少的人流。
目前江核在售的新房众多,有晴翠府、龙湖天璞、中海观江樾、晴樾府、花语天境、保利阅云台、花语熙岸府、佳源玖棠府、颐和铂岸江璟、越江时代、万科首开新悦光年等新盘在售;另外,今年两次土拍中,江核成功出让5幅地块,分别是江核颐居G03,江核颐居G07、颐居G08、保利G09、奥体建设G11地块。
中国铁建花语天境目前主力在售1、3号楼,共192套房源,建筑面积约143、168㎡,销许均价39996元/㎡。项目位于江北核心区正核的位置,坐揽地下城,江北第一高楼,地段绝版!是中国铁建打造的“语系”高端产品。
晴樾府主力在售4、5、6号楼,建筑面积约112、129㎡,销许均价36855元/㎡,另有3100元/㎡升级装修包。
晴翠府建筑面积约112、127、129、143㎡,目前主力在售珑府1、2、3、4、6号楼,翠府1-6号楼,销许均价38513元/㎡。
龙湖天璞主力在售3号楼,共128套房源,建筑面积约113、139㎡,销许均价39800元/㎡(含包均价),首付3成。
中海观江樾户型建面约110、118、142㎡,目前主力在售6、16号楼,销许均价34908元/㎡,首付3成。
保利阅云台主力在售4、8-14号楼,建筑面积约110、129㎡,销许均价36176元/㎡,首付3成。
花语熙岸府主力在售14-20号楼,建筑面积约97、117㎡,销许均价34592元/㎡。
佳源·玖棠府预计最快8月加推9号楼,建筑面积约89、113㎡,共133套房源,两梯四户。
颐和铂岸江璟建筑面积约110、130、165㎡,项目主力在售2、3、4、6、7、8、9号楼,销许均价33957元/㎡。
越江时代建筑面积约110、128、143㎡,目前主力在售1、2、3、5、6、9、12号楼,销许均价33387元/㎡,首付3成。
此外,下半年预计还有颐居G03地块入市,有消息称该地块将有仁恒加入开发,值得期待。
今年4月首次土拍中,江核G03地块底价成交,最终被颐居建设拿下,拿地总价约22.7亿元,毛坯限价40000元/㎡,楼面地价23644元/㎡!
江核G07地块:被颐居以10.8亿的成交总价拿下,不设毛坯限价实行差异化定价,楼面价23262元/㎡。
江核G08地块:被颐居以10.35亿的成交总价拿下,不设毛坯限价实行差异化定价,楼面价22780元/㎡。
江核G09地块:经过2轮竞价,最终被保利拿下,不设毛坯限价实行差异化定价,拿地总价24.1亿元,楼面地价20724元/㎡!
江核G11地块:奥体建设以11.1亿的价格拿下该幅地块,毛坯限价35350元/㎡,楼面地价18660元/㎡。
