根据南京网上房地产数据显示,上周(7月25日-7月31日),南京新房累计认购1544套,累计成交864套,相较于上上周(7月18日-7月24日)南京新房累计认购971套,累计成交703,认购量下降约5.9%,成交量下降约22.9%。
part 1
新盘方面,上周共有9盘申领销许,分别是华发四季雅筑、晴樾府、云萃府、都荟紫京四季、大华南门望、中海观文澜、越城天地中心、颐和云台源筑、上宸云际,其中仅有颐和云台源筑达到摇号要求,另外8盘“流摇”。
颐和云台源筑84套房源共352组成功报名,中签率约23.9%,平均4人抢一套房。
项目于7月29日下午17:00加推,据网上房地产数据显示,目前项目累计认购70套房源,还有14套未售出,去化超8成。
另外,上周三,招商局中心·臻境在售楼处迎来首开,据南京网上房地产显示,目前还有6套未售,去化近9成。

据最新消息,招商局臻境即将再次迎来加推,预计推出10#号楼,共计104套,面积137-186㎡,放风价52000元/㎡。
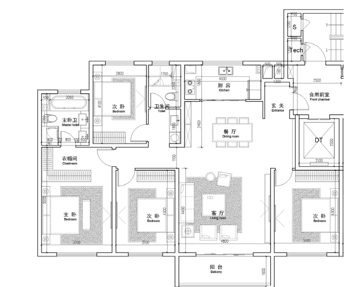
华发·四季雅筑本次加推3号楼,共132套房源(人才房40套、无房40/53套),户型建面99、120、140㎡,全装修销许均价33992元/㎡,另有2500元/㎡装修升级包,首付3成。
晴樾府本次加推2号楼,共92套全装修房源,建筑面积约112㎡,销许价约36844元/㎡,首付8成,验资330万。
云萃府已加推5#收官楼栋,共64套房源(人才13套、无房20套),销许均价46872元/㎡,户型建面约143㎡,另有4200元/㎡升级装修包可选。
中海观文澜已加推B-4、B-8幢,总房源132套(人才40套、无房40套),户型建面89、110㎡,全装修销许均价36088元/㎡,另有2000元/㎡升级装修包可选。
越城天地中心已加推1号楼别墅,共12套房源(人才房3套、无房4套),主力户型建面约453-722㎡,销许均价约67195元/㎡,毛坯交付,验资1000万元。
上宸云际已加推8号楼,共108套房源(人才房33套、无房33/44套),户型建面约97、101、121㎡,销许均价约26099元/㎡。
part 2
新盘加推,一些还未入市的纯新项目也紧随其后。
上周,小行、江心洲、南部新城、河西南、雨山路等几个板块的纯新项目有了新动态。
首先便是万科小行G04地块的户型图曝光,据悉,项目将打造2种户型,分别是建面约109㎡和139㎡,目前户型图曝光(具体户型以开发商公布为准)。
建面约109㎡户型为三房两厅两卫,其中两间卧室朝南。建面约139㎡户型四房两厅两卫,三房朝南。
建面约109㎡户型:

建面约139㎡户型:

项目前身为小行G04地块,根据规划显示,将拟建5栋28-30F高层,约500套房源。
4月22日,该地块经过17轮竞价触顶,最终被万科竞得,毛坯限价39000元/㎡,拿地总价约20.8亿元,楼面地价27924元/㎡,未来含包预计卖到4.5万/㎡左右(具体以开发商公布为准),据悉,项目最快8月公开,四季度上市。

同时曝光户型的还有璟樾府,预计将打造约143㎡、172 ㎡、194㎡三种户型,毛坯限价44500元/㎡,未来含包预计卖5.1万/㎡,总价700万/㎡起步。最快将于10月迎来首开,目前项目临时接待处设置在金基望樾府。
建面约143㎡四房三卫:大横厅设计,三开间朝南,主卧套房设计,保证了私密性,厨房带有岛台。

建面约172㎡四房两卫:双阳台设计,三间卧室朝南,南向次卧带有衣帽间,主卧卫生间双台盆设计。

建面约194㎡四房三卫:双阳台设计,三间卧室朝南,主卧双台盆设计,另外一个南向次卧也带有独立衣帽间和卫生间。

项目由金基、南京交通、东南集团联合打造,根据规划,项目拟建11栋26-30F住宅,其功能为二类住宅用地,其中8#楼为租赁用房,其余楼栋正常对外出售。
江苏水利江心洲G72项目案名确定:水沐和瑞园,打造140-206㎡面积段,142㎡两大户型图曝光:A户型4房2厅2卫、B户型4房2厅3卫,含装修包未来预计卖5万/㎡。
其中建面约142㎡两大户型图曝光,A户型建面约142㎡4房2厅2卫、B户型建面约4房2厅3卫。
A户型建面约142㎡4房2厅2卫

B户型建面约4房2厅3卫

南部新城G121地块案名确定,为:奥体建设·云尚紫薇。项目预计今年8月下旬公开售楼处和样板间,预计最快9月正式首开小高层D1、D2,以及多层D4、D5,目前城市展厅设在雨花客厅一楼。
据悉,项目最大户型为建面223㎡的科技房,目前项目销售团队已组建好,预计最快9月首开,户型建面分别约143、176、179、223㎡
根据规划,项目住宅部分将拟建8-18层洋房、小高层,建面约142、176、179、223㎡,层高约3.1米,得房率预计全部在80%以上,其中洋房得房率超85%,小高层得房率超81%。
142㎡3房2厅2卫

176㎡4房2厅2卫

179㎡4房2厅2卫

223㎡5房2厅3卫

中建东孚雨山路G15地块案名确定,为中建翰林雅境!项目同步公开河西万达1楼C入口展厅,且同步公开城市展厅,位于河西万达1楼C入口,项目拟建设17栋7-11层住宅。
今年4月22日首次土拍,雨山路G15仅1轮报价底价成交,最终被中建东孚拿下,毛坯限价28000元/㎡,拿地总价约17.7亿元,楼面地价16223元/㎡!
项目位于浦口区卓溪路以南,山林路以东,总用地面积约为6.82万平方米(具体范围以用地红线为准)。
项目拟建17栋小高层住宅及相关配套设施,总建筑面积约15.75万平方米,其中:地上建筑面积约10.91万平方米、地下建筑面积约4.84万平方米。
项目容积率仅1.6,并且地块内不得设置商业,可以预见的是,未来该项目的低密以及纯粹的居住属性或将成为该项目的卖点。
