继江心洲G72案名公布,定为水沐和瑞园后,接着又有两个纯新盘公布案名,分别是大校场G121地块和中建东孚雨山路G15地块,其中:
1、纯新盘南部新城G121地块案名正式公布,定为:奥体建设·云尚紫薇。项目预计今年8月下旬公开售楼处和样板间,预计最快9月正式首开。目前城市展厅设在雨花客厅一楼。
2、中建东孚雨山路G15地块近期案名公布,为中建翰林雅境!项目同步公开河西万达1楼C入口展厅。
01、奥体建设·云尙紫薇,南部新城G121案名公布,最快9月入市
纯新盘南部新城G121地块案名正式公布,定为:奥体建设·云尚紫薇。
项目预计今年8月下旬公开售楼处和样板间,预计最快9月正式首开小高层D1、D2,以及多层D4、D5,目前城市展厅设在雨花客厅一楼。

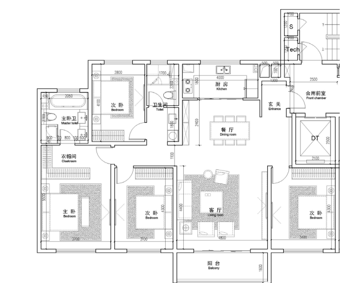
据悉,项目最大户型为建面223㎡的科技房,目前项目销售团队已组建好,预计最快9月首开,户型建面分别约143、176、179、223㎡
根据规划,项目住宅部分将拟建8-18层洋房、小高层,建面约142、176、179、223㎡,层高约3.1米,得房率预计全部在80%以上,其中洋房得房率超85%,小高层得房率超81%。
142㎡3房2厅2卫

176㎡4房2厅2卫

179㎡4房2厅2卫

223㎡5房2厅3卫

该项目位于南部新城南部,地块北至机场四路,南至机场六路,西至国西路特色街巷,东至国际路。这里也是南部新城最核心的机场跑道板块,集浓厚的历史积淀和超前的板块规划于一体,区位优势明显,紧邻金地大成汇文府。
地块东侧有规划地铁5号线,并在地块内设有地铁5号线大校场站,地块东北方向有已建110KV变电站、规划公交首末站、消防站、能源中心,地块西侧为规划12班幼儿园,地块东侧国际路为城市主干道。
总用地面积 61965.45平方米,其中:
A、B分区用地性质为Bb商办混合用地,用地面积分别为10289.83 平方米、11004.57 平方米。
C、D分区用地性质为R2二类居住用地,用地面积分别为15408.66平方米、16517.44 平方米。根据规划,项目将拟建12栋住宅,其中6栋8F小高层和6栋17F高层。
E、F、G分区(地下空间出让),用地性质为Bb商办混合用地,用地面积分别为1132.85 平方米、1260.47平方米、6351.63平方米。
地块位于土山机场净高保护范围内,在土山机场未搬迁或未得到部队书面同意意见前,建构筑物最高点绝对高程不得大于72米。
从图片上可以看出来,建筑外立面是全玻璃幕墙,立面极具现代化,豪宅感满满。据了解,奥体建设将把南部新城G121项目打造为区域高品质典范住区!
去年出让时,G121的地块的限制还是非常高的,需引进1家科技类企业、1家商贸类企业、1家物联网企业,对于3家企业的具体要求如下:
2021年11月25日,经过竞拍,南部新城G121地块最终被南京南部新城会展中心发展有限公司夺得,以底价258000万元成交,楼面地价11896元/㎡,未来毛坯限价不得超过44998元/㎡。
02、雨山路纯新盘动态曝光,中建东孚G15地块案名正式公布
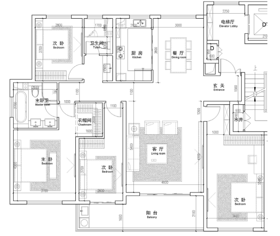
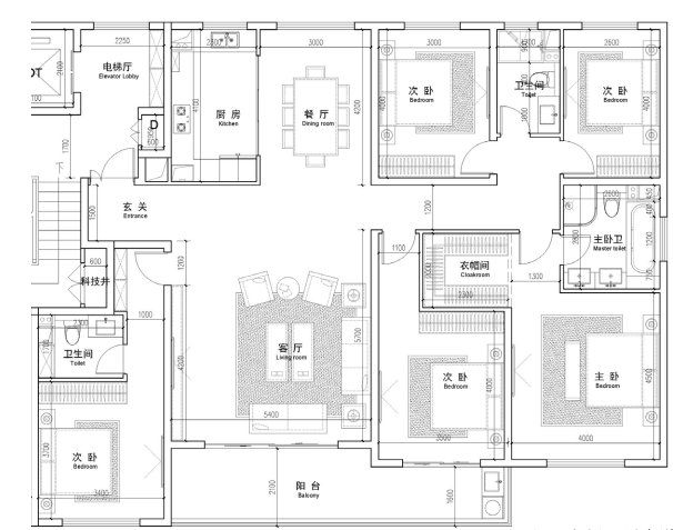
中建东孚雨山路G15地块正式公布案名为:中建翰林雅境,且同步公开城市展厅,位于河西万达1楼C入口,项目拟建设17栋7-11层住宅。
今年4月22日首次土拍,雨山路G15仅1轮报价底价成交,最终被中建东孚拿下,毛坯限价28000元/㎡,拿地总价约17.7亿元,楼面地价16223元/㎡。
项目位于浦口区卓溪路以南,山林路以东,总用地面积约为6.82万平方米(具体范围以用地红线为准)。
项目拟建17栋小高层住宅及相关配套设施,总建筑面积约15.75万平方米,其中:地上建筑面积约10.91万平方米、地下建筑面积约4.84万平方米。
项目容积率仅1.6,并且地块内不得设置商业,可以预见的是,未来该项目的低密以及纯粹的居住属性或将成为该项目的卖点。
从效果图看,项目的公共区域有大片的绿化和休憩区,景观树有高有低错落有致,外立面采用玻璃幕墙+铝板,整体给人感觉十分舒适。
该地块一路之隔为中交锦兰荟,目前该小区的挂牌均价约为2.7万/㎡,雨山路G15地块距离雨山路地铁站不远,周边还有金陵中学(浦口分校)、龙湖雨山天街等。
目前区域内新房较为稀缺,板块内保利云禧、中海原山、招商雍宁府等项目均已收官,在售的仅有龙湖天曜和北江锦城两大楼盘。
值得一提的是,就在5月份,在浦口区2022年施教区官方文件中,雨山路北花园路学校小学部、初中部,均挂牌中华中学浦口集团。
2022年北花园路学校小学部(暂定名)招生,利用江浦实验小学滨江分校校舍过渡办学,这对周边居民无疑是个重大利好!


根据规划,北花园路九年一贯制学校,拟建设6轨36班小学一所,8轨24班中学一所,计划总投资约2.6亿,预计今年建成。
