7月14日,据南京规划和自然资源局官网显示,浦口城南中心一幅地块规划出炉!将新增6栋17-18F的住宅。
01、毛坯限价28118元/㎡!将新增6栋住宅!
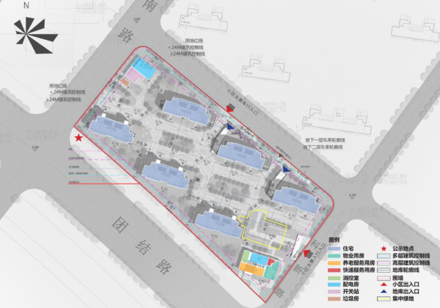
项目位于浦口区,用地东至科新路,西至新南路,北至规划道路,南至团结路。地块东侧规划11号线轨道交通,西侧现有中学。
总用地面积18621.31㎡,用地性质R2二类居住用地,1<容积率≤2.2,绿地率≥30%,建筑高度≤60m,建筑密度≤20%。
现规划设计方案总建筑面积约6.2万㎡,其中:地上建筑面积约4.1万㎡,主要功能为6栋17-18F的住宅及其配套用房;地下建筑面积约2.1万㎡,主要功能为地下车库及其配套用房。
该地块于今年4月22日出让,经过3轮竞价,最终被山东健康&中垠拿下,毛坯限价28188元/㎡,拿地总价约6.8亿元,楼面地价16599元/㎡,后期全装修价格约29688-30188元/平,再加上升级包,未来售价预计在3万/平以上。

项目外立面灰白色调,整体看上去大气,高矮错落的景观数搭配有致,小区入口处设置了人车分流。
02、毛坯限价不断上涨,浦口城南中心正在逆袭!
一直以来城南中心的板块价值就被严重低估!
浦口城南中心位于长江五桥以及长江隧道之间,总面积2.75平方公里,从空间来说,左侧靠研创园、背后是核心区青奥板块,右侧则是大热的江核。
起初很多人认为浦口城南中心,是在“夹缝”中求生存,因为它周边全是大火的板块。
但事实并非如此。
从整体发展来看:城南中心可以说是浦口最核心的一块净土,区域内空白地块较多、开发难度较小,另外板块内的规划也十分全面,商办、教育、住宅等待开发土地较多,可塑性高,未来的发展潜力巨大!
从板块联动来看:浦口城南中心虽被热门板块包围,但同时,它还处于新城与老城的交汇点,因此板块定位“因地制宜”,既延续着老城文脉,又与中央商务区互为补充,同时还为研创园提供了配套支持,同时也能为板块聚合高净值精英人群,被称作“城市新客厅”。
从交通配套来看:城南中心沿着浦滨路、浦云路向外扩散,北侧与浦口大道、长江隧道相连,南侧与五桥接壤;另外,板块内还有号称“换乘王”的地铁11号线(在建),可与3、4、10、11、13、15、17等多条地铁线路换乘,未来,城南中心将是江北地铁最为密集的区域之一。
从教育配套来看:城南中心片区规划设置了1所高中,2所初中,3所小学以及5所幼儿园的教育规划用地,有着全龄化的教育配套。(项目具体学校以政府最终划分为准)
从自然资源配套看:以浦滨路为发展轴,两侧聚集了城南河活力带、芝麻河品质生活带、浦云路网红大桥、红色引擎广场等滨水景点,同时规划建设南北滨水湿地公园(规划)、多个社区公园(规划),十分宜居。
另一方面,都说土拍是楼市风向标,浦口城南中心近2次的毛坯限价不断上涨!
今年首次土拍,浦口城南中心的3幅重磅优质地块,除G12外,还有G13、G14两幅地块,这两幅地块的毛坯限价相较于此前28000元/㎡,上涨了1120元/㎡,而G12地块相较于之前,上涨了188元/㎡。
而就在7月12日刚刚结束的土拍中,浦口城南中心再次出让两幅优质地块,分别是G55地块和G59地块。
G55地块 :经过1轮竞价,最终以5.2亿的成交总价被海信地产竞得,毛坯限价31000元/㎡,楼面地价15964元/㎡!相比第一批次出让的中粮G13&G14来看(毛坯限价29120元/㎡),微涨约1880元/㎡。
G59地块:经过1轮竞价,最终以23.8亿的成交总价被浦口区国有资产投资竞得,毛坯限价30500元/㎡,楼面地价15469元/㎡!较此前(28188元/㎡)上涨约在2312元/㎡左右。
从最新土拍的毛坯限价来看,浦口城南中心已经突破了3万/㎡,新房价格也将会再上一个台阶。
目前,除了以上G12、G13、G14、G55、G59五幅待入市地块外,浦口城南中心目前有3家楼盘在售。
金陵星图:主力在售B-3、B-4号楼,共204套房源,户型89/113/139㎡,均价29528元/㎡,另有升级装修包2500元/㎡,预计2024年6月25日交付。



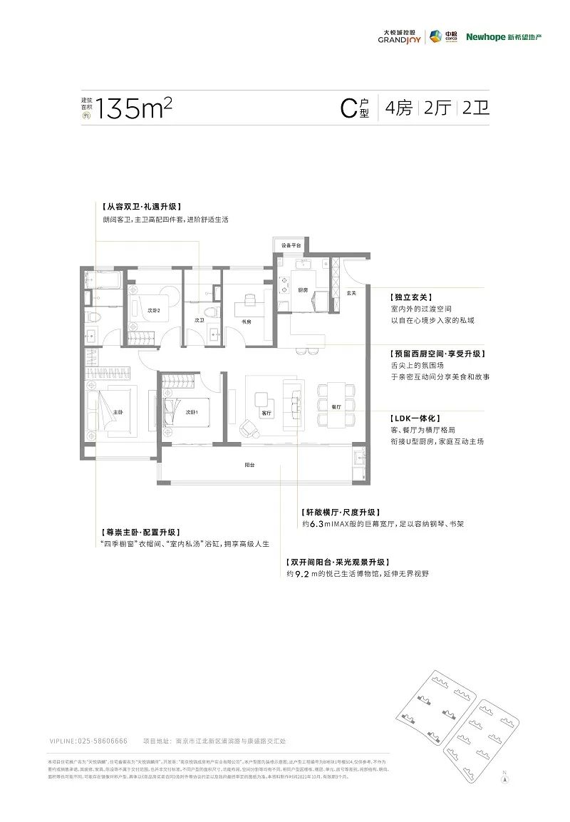
天悦锦麟:项目B、C地块均有房源在售,户型97/117/135㎡,均价30278元/㎡,另有2500元/㎡升级装修包,预计2024年3月底交付。


星河时代:在售少量尾房,户型128㎡,均价29566-29915元/㎡,另有2165元/㎡升级装修包可选。
