【今日楼市看点】
1、天悦锦麟今日(6月28日)领取C地块7、8号楼销许,共184套房源,建筑面积约97、117㎡,销许均价30278元/㎡,首付3成。
2、板桥纯新盘中冶锦绣和鸣今天首次成功领证,户型建面约89㎡(中间户)、110㎡(边户),均价25400万/㎡,首付3成起。
两盘均于明日起报名,摇号报名时间:6月29日上午9:00——6月30日上午9:00;
报名方式:报名人可通过关注公众号:南京房产微政务,点击“房帮宁”进入报名通道进行线上报名。
01、均价3万!首付3成!天悦锦麟销许已下明起报名!

项目新领取C-7、8号楼销许,共184套房源,建筑面积约97㎡、117㎡,销许均价30278元/㎡,另有2500元/㎡升级装修包,首付3成,明起报名!
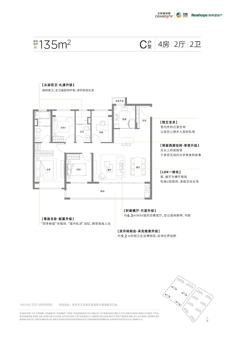
项目由大悦城和新希望联合开发,总体量约86万方,涵盖了大悦城购物中心、潮流商街、公寓、办公、品质住宅等5大业态。
800米生活圈内,地铁、公园,商场、文化中心等,你想要的它都有!
在户型打造方面,天悦锦麟共打造了建面约97、117、135㎡3大户型;
其中建面约97㎡三房两厅两卫的户型可以说是项目的明星户型;3开间朝南,双阳台,保证了充足的采光和通风、主卧自带衣帽间,值得一提的是,通常通常九十几平的户型,都为一卫的设计,而天悦锦麟97㎡的户型设计了双卫生间,极大地解决了生活中的不便。



作为浦口居住氛围较为浓厚的板块,生活配套较为成熟,能够满足生活需要。
教育配套:规划有1所高中,2所初中、3所小学及5所幼儿园。(最终以教育局公示为准)。
交通配套:板块内有南京地铁10号线(已运营),11号线(规划),南京长江五桥。
商业配套:周边有江北虹悦城(在建)、城南河两侧的明珠广场(规划中)和浦口万汇城(在建),还有慕斯荟、金盛田广场等。
医疗资源:板块周边有省人民医院浦口分院、江北国际健康城、鼓楼医院江北国际医院
此外,近两年城南中心是浦口开发建设的重点,未来将成为服务百万人的城市级功能中心。
02、销许已下!板桥纯新盘首开在即!户型最小89㎡起!
项目刚刚成功申领6、10号楼销许,户型建面约89㎡、110㎡,均价25400万/㎡,首付3成起,整体得房率约72-76%。
中冶锦绣和鸣规划11栋31-33F高层、1栋21F租赁住房、2栋低层商业及配套用房。打造户型面积约89-128㎡的青年活力住区,项目毛坯限价23815元/㎡。
户型图如下:
建筑面积约89㎡三房两厅一卫

建筑面积约110㎡三房两厅两卫

建筑面积约128㎡四房两厅两卫

项目位于雨花台区板桥新城,东至新湖大道,西至三号街,北至凤集大道,靠近莲花湖、在建的地铁S2号线板桥北站。目前板块内新房在售均价在2.6-2.8万/㎡。
项目外立面采用大气简约的线条,搭配顶部精致的圆弧造型,符合现代都市年轻人的审美风格与居住习惯。
板桥毗邻南京主城,此前一直受限于宁芜铁路,区域无法全力发展,但目前区域内的各项配置资源仍在更新中。
随着2021年12月28日,宁马城际的南京段正式启动开工,对于板桥板块无疑是以此大的提振!
交通方面,区域内有三条地铁规划重大利好,分别是宁马S2号线、9号线二期、16号线,未来随着这些线路的开通运营,区域也许将得到质的发展。
商业方面,目前区域内主要有吾悦广场、花生唐两大商圈,区域内的社区商业配套集聚,生活氛围浓厚。
教育方面,目前区域内有金陵华兴实验中小学、力小分校、南京实验幼儿园、贝街国际幼儿园、板桥小学与中学等。此外,区域未来规划还将新增11所小学与10所中学。
医疗方面,第一医院雨花分院和梅山医院(拟提档为三甲)在侧,且近邻河西儿童医院、明基医院等优质医疗配套。
至于新房市场,长久以来,板桥给人的印象就是,刚需圣地。
之所以这样说,是由于板桥身在主城,目前在售的新房房源均价都在3万/㎡以内,相对于主城的其他板块,板桥的置业门槛相对较低。目前板桥新城有宋都柏悦府、宝能翡丽河滨、凤汇壹品等楼盘在售。
宋都柏悦府:6月21日项目加推11号楼,共104套房源,户型建面约92、127㎡,精装修交付,销许均价约27251元/㎡。
锦绣云麓:在售户型建筑面积约76、89、110㎡房源:A7、9号楼,销许均价25419元/㎡,全装修交付;另A1、3、5号楼房源,销许均价约为24400元/㎡,全装修交付。
宝能翡丽河滨:在售1-5号楼,户型建筑面积为93、120、132㎡,销许均价25898-27247元/㎡,两梯四户,精装修交付。
星叶欢乐城:在售1-5号楼,户型建筑面积为89、90、107、108、128、130㎡,售价22500元/㎡起,精装交付;
石林云城:主力在售多栋户型建筑面积段约89-168㎡房源,销许均价29176-29490元/㎡。
凤汇壹品:目前在售A1-6号楼,户型建筑面积为89、108㎡,销许均价21631-22165元/㎡,可加升级精装包,拟交付时间为2023年6月30日。
