作为楼市风云的晴雨表,2022年南京首轮土拍,意义重大。
本轮20幅出让的土地中,除6幅流拍外,其余14幅土地全部成功出让。
其中南部新城G01、02地块、小行G04地块触顶摇号,浦口城南中心G12、G14两幅地块及软件谷G05地块经过多家房企激烈竞价,最终溢价成交。

这次表现令人有些许意外的当属浦口城南中心板块,为什么这么说呢?
首先南部新城、小行、软件谷等板块热度一直很高,触顶摇号或者溢价成交并不足为奇,而浦口城南中心之前一直被江核压制,所以在众人心里可能它只能算得上二线板块,其热度自然不能同一线板块相比。
但楼市就是这么魔幻,在当前这大环境下,各大房企谨慎拿地,他们更愿意把手中有限的资金投入到更具有价值的板块。

都说江核价值高,可别忘了,江核这次是底价成交,浦口城南中心的G12、G14地块却被多家房企争抢,而且城南河北岸的G13、14两幅地块相较于此前区域毛坯限价28000元/㎡,更是上涨了1120元/㎡!
值得一提的是,本次三幅地块所处的位置,均位于浦口城南中心中轴线浦滨路一侧,可以说这里不仅被官方认可,更被精明的开发商所看好!
这让我联想到了河西的黄金中轴线江东中路。
抽丝剥离后我发现,浦滨路之于江北新区,如同江东中路之于河西新城,因为它们的发展脉络及其相似!
part.1
十年前看河西的江东中路
十年后看浦口城南中心浦滨路
无论楼市行情怎样变动,购房逻辑亘古不变。例如,买入稀缺性强的城市核心区永远不会出错,正如同土拍时,一些核心区的优质地块会被争抢。
在南京,人人都知道河西是绝对的价值高位。
回看河西近十年的发展可以发现,河西凭借着一条江东中路,把河西南、河西中、河西北三大区域牢牢的串联起来。
在这条中轴线两侧汇聚着区域内顶尖的配套,例如奥体、青奥双子塔、国际博览中心、中央公园等知名地标建筑,同时它又与河西大街交汇,形成黄金十字轴——元通商圈,周边德基、华采天地等一众知名商业体汇集,另外河西还汇集了大量的金融、科技等高新技术产业,这里人才汇聚,名企遍地。
随着这些顶尖配套落地,板块内的地价、房价也是水涨船高,当年踩准时机入场的人,身价早已随着河西近十年的发展水涨船高,跻身富豪行列。
有人会问,现在还是入手河西的最佳时机吗?
不是,是它在爆发的前夕或者说正在爆发的时候,而此时的浦口城南中心目前不就正处于一个爆发期么?
part.2
浦滨路中轴线CBD
下一个“河西新城”!
从前十年河西的发展脉络发现,中轴线在哪,意味着城市发展的重心在哪。
而这条与江东中路媲美的黄金中轴线浦滨路,直接把浦口城南中心带火了!
浦口城南中心,作为江北新区新的主城之一,也是江北新区重点发展的风向标。
坐落于浦口城南中心的浦滨路,与横向的城南河交汇,形成黄金十字交汇点。
在这个交汇点上,汇集了城南中心的一众商业体、文体中心、教育等配套,不仅如此,沿浦滨路两侧还聚集城南河活力带、芝麻河品质生活带、浦云路网红大桥、红色引擎广场等滨水景点,同时规划建设南北滨水湿地公园(规划)、多个社区公园(规划),这个交汇点就如同“元通商圈”之于河西。
其实,它不仅仅是城南中心的中轴线,也是串联整个江北新区的重要中轴线。
为什么这么说呢?
浦口城南中心,总面积2.75平方公里,呈南北狭长走向,自北向南为中央商务区、浦口城南中心、青奥、研创园,板块之间的相互联动,浦滨路在其中发挥着巨大的作用。
首先,人口和产业是区域发展的两张王牌。
浦滨路这条中轴线,使得城南中心牢牢地抓住了北向金融中心大量金融从业人员和南向研创园的高精尖人才,人才汇聚的地方,往往是顶级资源聚拢的地方,而顶级资源的聚拢,往往又会吸引一批高圈层人士。
未来居住在这里的人群,正如同现在居住在河西的那群人,要么是社会高精尖人才,要么“非富即贵”。
其次,板块发展交通先行,浦滨路与纵向的地铁11号线基本吻合,北侧与浦口大道、长江隧道相连,南侧与五桥接壤,可快速通达全城,交通非常便利!
另外,它还是一条商业中轴,从北向南依次串联起了卓悦汇、华润综合体、东方万汇城、明发财富中心、大悦城、江北万达广场。
除了上述,城南中心还有着备受关注的教育配套!片区规划设置了1所高中,2所初中,3所小学以及5所幼儿园的教育规划用地(项目具体学校以政府最终划分为准)。
可以说,这里贯穿着整个江北的优质资源。
好的区位+顶尖的配套+发展潜力+上涨空间!
下一个“河西新城”,已跃然眼前,怪不得片区的地块在地价上涨的情况下,还能被一众开发商争抢!
part.3
规划高地,价格洼地
把握板块“爆发期”上车机会!
眼光独到的新希望地产和大悦城控股,早已看穿浦口城南中心的价值所在,提前在浦滨路沿线布局。
要知道,新希望地产自2019年3月首入南京后便开始布局,2年落子13处,处处是经典,而大悦城控股是2020中国商业地产综合实力NO.1!
二者联手,在浦口城南中心造出一个总体量约86万方的超级综合体,引领新的人居方式。
这里,不仅有着南京首座大悦城,还有着3栋公寓楼、120米高的写字楼、潮流商业街以及品质住宅天悦锦麟。
800米生活圈内,地铁、公园,商场、文化中心等,你想要的它都有!
未来,能第一时间享受到这里美好生活的,非天悦锦麟的业主莫属,而他们的美好生活,也将从这里重新出发。
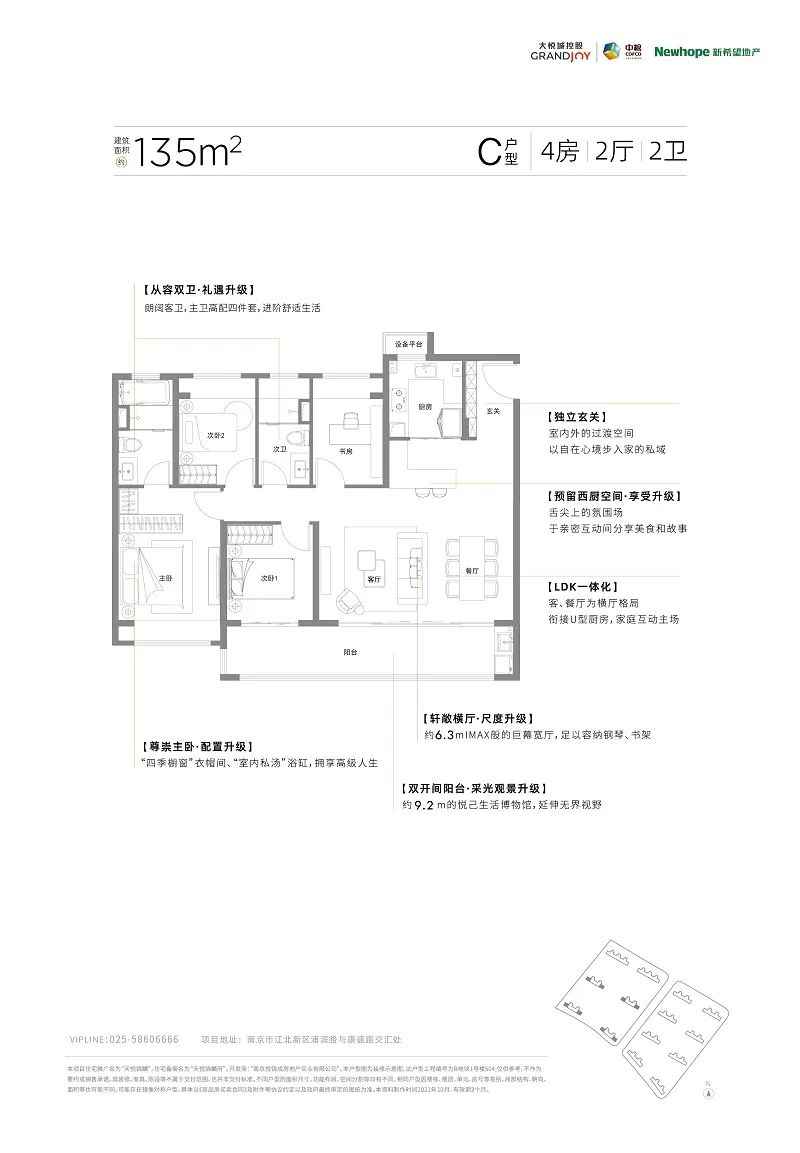
项目内部效果图在产品打造方面,天悦锦麟共打造了建面约97、117、135㎡3大户型,无论是刚需还是改善都能满足。
建面约97㎡的户型就做到了三房两卫,主卧带衣帽间、双阳台设计,市场少见,功能性极强;
建面约117㎡的户型适合首改家庭,满足三房两厅两卫的同时,主卧还带有浴缸;
建面约135㎡的户型适合改善家庭,四开间朝南、南北通透,空间极致利用,舒适度高。



项目2500元/㎡的精装包性价比非常高,屋内三大件均采用日立、菲斯曼等一线品牌,厨卫方面采用唯宝、高仪、科勒等国际一线大牌,与市面上一些豪宅使用的品牌一样。
值得一提的是,目前板块内存在明显倒挂!周边的保利西江月二手房售价已达约40000元/㎡,而刚出让的土地地价也在上涨,此时,3万+/㎡的天悦锦麟正处于价格旋涡!
所以现在入手天悦锦麟,没什么好犹豫的。
