
近日,南京多家纯新盘公布最新动态!
除了中铁建江核G19、黑牡丹汇通路G91以及首开岱山G77先后规划出炉外,板桥新城的中冶G35地块也正式公布项目案名“中冶锦绣和鸣”!将打造中冶置业“锦绣系”产品,是继锦绣天玺、锦绣珑湾后的又一全新力作!
项目前身是板桥G35地块,2021年5月22日,地块被中冶以总价25.1亿元拿下,成交楼面价16233元/㎡,刷新区域地价,比前地王宋都柏悦府高了780元/㎡。未来毛坯限价23815元/㎡,加上全装修和升级装修包,未来房价预计要卖2.8万/㎡左右。
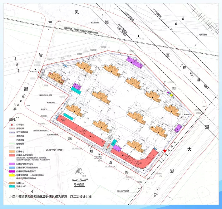
根据规划,中冶G35地块占地面积约2.95万㎡,容积率≤2.6,绿地率≥30%,60≤建筑高度≤100m,建筑密度≤20%。项目总建筑面积约20.80万㎡,其中地上建筑面积约15.46万㎡,主要功能为住宅、商业、配套等;地下建筑面积约5.34万㎡,主要功能为地下停车场及相关配套设施。
项目拟建11栋31-33F高层、1栋21F租赁住房、2栋低层商业及配套用房。
从效果图来看,项目外立面是大面积玻璃幕墙,窗墙比很高,而且项目南侧紧靠规划学校,未来上学还是很方便的。

项目位于雨花区板桥新城,东至新湖大道、西至三号街、北至凤集大道。
板桥毗邻南京主城,此前一直受限于宁芜铁路,区域无法全力发展,但目前区域内的各项配置资源仍在更新中。随着2021年12月28日,宁马城际的南京段正式启动开工,对于板桥板块无疑是以此大的提振!
交通方面,区域内有三条地铁规划重大利好,分别是宁马S2号线、9号线二期、16号线,未来随着这些线路的开通运营,区域也许将得到质的发展。
商业方面,目前区域内主要有吾悦广场、花生唐两大商圈,区域内的社区商业配套集聚,生活氛围浓厚。
教育方面,目前区域内有金陵华兴实验中小学、力小分校、南京实验幼儿园、贝街国际幼儿园、板桥小学与中学等。此外,区域未来规划还将新增11所小学与10所中学。
医疗方面,第一医院雨花分院和梅山医院(拟提档为三甲)在侧,且近邻河西儿童医院、明基医院等优质医疗配套。
至于新房市场,长久以来,板桥给人的印象就是,刚需圣地。
之所以这样说,是由于板桥身在主城,目前在售的新房房源均价都在3万/㎡以内,相对于主城的其他板块,板桥的置业门槛相对较低。目前板桥新城有宋都柏悦府、宝能翡丽河滨、凤汇壹品等楼盘在售。
宋都柏悦府:在售多楼栋精装修房源,户型建筑面积为92、107、126、127㎡,销许均价27015-28800元/㎡,具体一房一价,拟竣工时间为2023年1月30日。
锦绣云麓:刚于12月17日加推A7、A9号楼,共374套房源,销许均价25200-25637元/平,户型建筑面积约76、89、110㎡,全装修交付,拟竣工时间2022.12.31。
宝能翡丽河滨:在售1-5号楼,户型建筑面积为93、120、132㎡,销许均价25898-27247元/㎡,两梯四户,精装修交付,拟交付时间2023年8月31日。
星叶欢乐城:在售1-5号楼,户型建筑面积为89、90、107、108、128、130㎡,售价22500元/㎡起,精装交付,拟交付时间为2022年9月30日。
石林云城:主力在售户型建筑面积段约89-168㎡房源,销许均价29176-29490元/㎡,首付6成,一梯两户,精装修交付,拟交付时间为2022年1月10日。
凤汇壹品:目前在售A1-6号楼,户型建筑面积为89、108㎡,销许均价21631-22165元/㎡,可加升级精装包,拟交付时间为2023年6月30日。另外,在售B地块1-3、4-1、5、7号楼,户型建筑面积为75、89、108㎡,销许均价21912-22231元/㎡。
至于纯新项目,目前板块内除了中冶锦绣和鸣,还有旭辉&宝龙G37地块,待入市。
2020年7月15日,2020G37地块最终被旭辉&宝龙以底价126000万元拍下,楼面地价11269元/㎡,未来毛坯限价2万/㎡!
根据规划,项目拟建6栋25-26层住宅,其中5栋26层高层住宅、1栋25层高层住宅,此外项目还将建设1栋18层高层办公、部分沿街商业等。
