
11月3日,位于鼓楼滨江的江景豪宅中冶锦绣天玺、位于雨花滨江示范区的纯新盘东原印未来和位于五桥的中交锦度突领销许,今日开启报名,三盘共533套房源。
01、最贵一套2127万,中冶锦绣天玺正在报名
位于城北鼓楼滨江的中冶锦绣天玺项目昨日已经领取销许,今日正式开始报名。
报名时间:11月4日上午9点-11月5上午9点报名方式:点击“宁小通”进入报名通道进行线上报名
其实早在10月底,该项目就申领销许,据“宁小通”显示,后因规划变更未及时重新审核图纸,不符合商品房预售许可要求,故暂缓上市。
项目本次领取1号楼销许,共81套房源,户型建筑面积为380㎡,前期销许均价约38743-38864元/㎡,无装修包,首付预计5成,验资800万。

项目上一次入市还是去年9月10日,加推3号楼,共计186套毛坯房源,销许均价为38854元/㎡,户型建筑面积为176、202㎡,根据南京网上房地产显示,已经基本售罄。
中冶锦绣天玺,是中冶盛世滨江组团中的一个超高层大平层住宅。项目规划建设6栋住宅(其中1栋7F、4栋49F、1栋43F),另有3栋23-26F的办公楼,主力建面约170-200㎡。
该项目不仅有着天然的江景,在周边配套上也具有得天独厚的优势。
周边有5号线(建设中)、9号线(规划中)两条地铁线路,另外还有2条过江通道,4条主干道,20多条公交线路,交通十分便利。该项目的施教区已经确定为拉小分校,周边有麦德龙、大观天地等大型商业。
据一房一价表显示,最便宜的一套总价1180万,最贵的一套位于3102室,面积483.61㎡,总价2127万/套。
02、首付三成“上车”雨花纯新盘,东原印未来正在报名
另外,同是江景房的东原印未来,昨日也已成功领证,今日开启了报名。
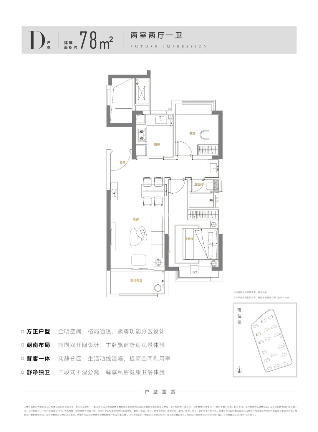
位于雨花滨江的纯新盘东原印未来新领9、12、15号楼销许,共320套全装修房源(其中人才房96套,无房家庭保障房96/128套),销许均价24716-26221元/㎡,户型建筑面积约78、89、108㎡,首付三成。
报名时间:11月4日上午9:00-11月5日上午9:00;
报名方式:点击“宁小通”进入报名通道进行线上报名。
项目前身为雨花滨江G38地块,位于雨花经开区的中心位置,紧临扬子江大道、绕城公路和长江滨江风光带,与河西鱼嘴地区隔板桥河相望。
根据规划内容,项目规划打造17栋25-27层的高层住宅(配建租赁住房约8602㎡),其中25层的住宅只有一栋,为17#楼,是租赁性质的;此外26层的住宅有4栋,27层的住宅有12栋。
另外,项目还将配建2栋低层配套商业跟2栋低层配套用房等,项目整体由东原、弘阳合作打造。
户型图如下:



项目所在的位置为雨花滨江示范区,根据规划其定位是以城聚人、以人兴产、产城融合的现代化滨江新城。
但其实目前板块仍处于发展规划阶段,商业和周边配套不多,但值得一提的是,板块内交通配套还是可以的,宁和城际S3号线的刘村站距离项目仅约1公里,并且该站点已经投入运营。此外,宁马城际S2号线也在建设中,附近还有规划中的9号线二期工程,也正因如此,在一定程度上吸引了部分河西、雨花外溢的购买力!
目前在新房市场,区域内仅两盘在售,分别是石林云城和凤汇壹品,片区内的商品住宅供应还是比较稀缺的。
凤汇壹品居,在售A1-6号楼,户型建筑面积为89、108㎡,销许均价21631-22165元/㎡,可加升级精装包,拟交付时间为2023年6月30日。另外,在售B地块1-3、5号楼,户型建筑面积为75、89、108㎡,销许均价21912-22231元/㎡。
石林云城,项目上一次开盘时间为9月30日,开盘房源为39、40号楼低密精装房源,户型建筑面积段约89-168㎡,共60套,销许均价29176-29490元/㎡,首付6成,一梯两户,精装修交付,拟交付时间为2022年1月10日。
而在二手房市场,据链家网显示,石林大公园目前挂牌均价在27228元/㎡;市场成交价,普遍在2.5万/㎡左右,最新的成交价为24325元/㎡,目前片区内并无二手房源倒挂。
除了上面两盘,位于江北五桥板块的中交锦度昨日销许以下,今日也正式开启报名。
报名时间:11月4日上午9点-11月5上午9点报名方式:点击“宁小通”进入报名通道进行线上报名
中交锦度昨日领取3号楼销许,共132套房源(含40套人才房,40或53套无房家庭保障房,具体视报名情况而定),销许均价28400元/㎡,户型建筑面积约89、110㎡,精装修交付。
