
7月8日,大校场热盘金地大成雅境销许申领中,仁恒城市星光和万科燕语光年也在同一天摇号清册出炉。另外,两大纯新项目迎来新消息,分别是中南G83项目、城东马群G05项目。正荣润棠府即将加推,这也是它最后的收官。
1、金地大成雅境正在申请销许
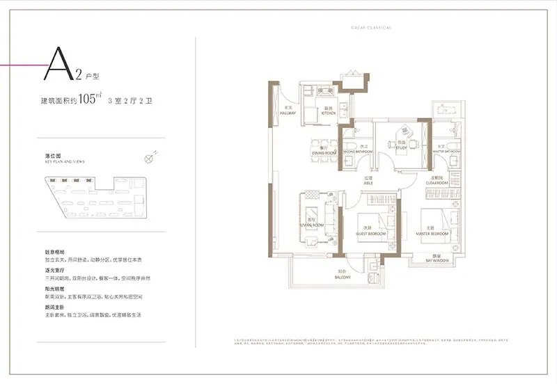
7月8日,根据南京市住房保障和房产局官网显示,金地大成雅境正在申领销许。前期开盘房源为20号楼,户型建筑面积105、127㎡,共计112套房源(优先人才和无住房保障家庭各34套),销许均价44200元/㎡,可另加装修包,两梯四户,拟交付时间为2023年12月31日。

金地·大成雅境位于南部新城大校场核心机场跑道起点位置,并且是双地铁交汇(地铁6号线与地铁10号线二期)的红花机场站旁的优质地铁盘。

项目为约72万方城市综合体,集住宅、办公、公寓、购物中心、商务办公于一体。其中,住宅部分金地大成雅境共约1800多户。





升级装修包有爱迪士新风、博士/菲斯曼/威能地暖、大金中央空调,德国泰克净水系统、杜拉维特智能马桶、高仪五金、博洛尼柜子、西门子面板+厨房油烟机+灶具、科勒浴缸、西勒奇智能门锁等品牌。

此外,还有一体式智能马桶、末端净水器、电热毛巾架、鞋柜精灵、衣柜处理器、风暖浴霸等。设计全屋收纳空间约超7000L,覆盖6大主体柜成品交付,包含玄关柜、橱柜、镜柜、衣帽间、餐边柜、过道柜等全屋收纳系统。
交通方面,片区内规划有3号线、10号线二期(在建)、5号线(在建)、6号线(在建)、16号线(规划)、13号线(规划)6条地铁线,板块内每600米一个地铁站点,未来这里将是主城区内轨道线网密度最高的区域之一。
商业配套方面,南部新城板块规划约220万方商业,集中分布于机场跑道公园两侧,规模约等于15个德基广场。此外,南部新城政府积极招商引资,目前合作意向较为明确的有老佛爷百货、香港置地和新鸿基(ifc)等国际国内一流商业运营商。
医疗方面,步行15分钟即可到达超大型综合性三甲医院南京市中医院,车行15分钟可达全科系三甲医院军区总院,区域内还有9万方医养一体的城市医疗综合体银城国际医疗中心。
2、两大热盘摇号清册出炉
7月7日,仁恒城市星光报名结束,7月8日摇号清册出炉,摇号房源为2、3、5号楼,户型建筑面积110、143㎡,共计312套房源(其中优先人才房源94套、优先无住房保障房源94套),销许均价44367-44759元/㎡,首付6成,验资260万,两梯四户,精装修交付,拟交付时间为2023年6月30日。

本次摇号共计吸引了3109组购房者参与摇号(其中人才244组,无房1297组,普通1568组)。

仁恒城市星光上次开盘时间是在4月29日,开盘房源为1、4、19号楼,户型建筑面积110、143、165㎡,共计324套房源(其中优先人才房源98套、优先无住房保障房源98套),销许均价为43660-45480元/㎡,首付5成,验资200万,两梯四户,精装修交付,拟交付时间为2023年6月30日,开盘当日全部售罄。
值得一提的是,上次开盘首付5成,验资500万,而此次开盘首付6成,验资260万,置业门槛变高。
项目本次开盘户型图:


项目为精装交付,装标含中央空调、全热交换除霾新风系统、地暖、前置过滤器等四大件齐备,西门子消毒柜油烟机、菲斯曼锅炉、toto整体洁具、弗兰卡水槽、橱柜下拉拉栏等也都是交付标准。(具体装修标准以开发商合同为准)
项目未来还将配置九年一贯制学校以及幼儿园,目前已正式启动、开始招标。
万科燕语光年也在7月8日摇号结果出炉,摇号房源为5、8号楼,户型建筑面积约89、118、130㎡,共计320套房源(优先人才96套,优先无住房保障家庭房源128套),全装修均价34017-34692元/㎡,首付5成,可另选择升级装修包,两梯四户,拟交付时间2023年6月30日。本次加推共计吸引了1324组买房人报名,整体中签率约24.2%。

3、中南G83项目有新消息
汇通路中南G83项目传来最新动态,面积段、首开价格、物业也基本确定。
项目由中南、银城、绿都联合打造,主力户型建筑面积为99㎡、117㎡、130㎡,即将首开,一次加推500套左右房源,加精装包预计价格在3.5万/平以内,未来为银城物业。
该地块位于紫东仙林板块,东至汇通路,南至规划纬七路,南至规划经二路,北至规划支路,去年11月初,仙林G83地块,经过23轮竞拍外加一轮摇号,最终被中南置地以总价13.3亿元拍下,楼面地价19766元/㎡,未来毛坯限价27500元/㎡。
中南G83项目距离仙林中心仅2公里,距离汇通路地铁站仅约300米,是个标准的地铁盘,位置十分便利。

今年5月份土拍出炉后,万科和新城也进驻了汇通路板块,汇通路G46地块经过44轮竞拍外加一轮摇号被新城拿下,总价19.9亿、楼面地价22595元/平、毛坯限价28500元/平;
汇通路G47地块经过29轮竞拍外加一轮摇号被万科拿下,总价14.2亿、楼面地价22702元/平、毛坯限价28500元/平;
这三个项目离仙林的豪宅区非常近,向南包含风华园、绿城玉园、朗诗保利麓院、依云溪谷、大鱼VILLA等,板块优势明显。豪宅区二手房均价基本都在5万/㎡左右。

除了中南G83项目,近期,由正荣操盘的时代中国马群G05地块传来新消息,预计7月公开,8月开盘,毛坯限价3.1万/平。共规划7栋住宅、1栋商业,其中1-3号楼20F、4-6号楼18F、7号楼19F。将打造三种户型,户型建筑面积分别是89㎡、104㎡、125㎡。
地块位于栖霞区马群街道南湾营片区,北邻美芝嘉路,东临宁芝路(马高路),西南邻白鹅山路。根据规划,时代中国马群G05地块拟建7栋18-20层小高层住宅,小区体量不大,楼间距比较宽敞。
今年2月25日,城东马群G05地块被时代中国以16.4亿元竞得,触顶最高限价,楼面价22697元/㎡,未来毛坯房限价31000元/㎡。紧邻项目的就是中海钟山印。

从效果图来看,楼栋外立面窗墙比很高,看上去简洁大气。
交通资源方面,项目位于城东马群板块紫金山东麓片区,距离马群地铁站约1.8公里,目前地铁2号线和有轨电车已经开通,还未在建的宁句城际、规划中的8号线等多条线路都将从这里经过。并且马群枢纽可以直通绕城高速,区位条件非常好。
商业配套方面,项目周边有马群生活圈、仙林悠游圈。招商花园城、中垠紫金广场、绿地云都会、森林摩尔构成了5min马群生活圈,便捷生活;金鹰湖滨天地,以及在建的仙林苏宁等构成了15min仙林悠游圈,更加丰富生活方式。
教育资源方面,目前环钟山区域分布约23所知名高校,其中一本以上高校就有13所,同时覆盖南京外国语学校仙林分校、南京国际学校、南京师范大学附属实验学校、金陵中学仙林分校等多所知名中小学校。
医疗资源方面,因钟山森林覆盖率高达90%以上,负氧离子最高是市区的15倍之多,天赋的生态环境造就天然医养胜境,江苏省人民医院城东分院、仙林鼓楼医院纷纷择址于此,助力板块康养体系形成。
产业资源方面,项目处于项目附近有徐庄软件园、紫东国际创意园、马群科技园等高新产业聚集,3000+企业集合。
4、正荣润棠府即将收官加推
7月6日,正荣润棠府已领取1、2、7、17号楼销许,7月8日结束报名,本次销售房源共222套房源(含67套人才房,67或89套无房家庭人才房,具体视报名情况而定),全装修销许单价24328-31549元/㎡,另有2500元/㎡升级装修包,户型建筑面积约89㎡、105㎡。
根据规划,项目共计打造17栋18层的小高层住宅。作为南京双限政策后首批出让的地块,该项目自带升级精装包。据了解,项目的精装标准以德系精工为主,装修配建都是国际品牌。

户型如下:

(建面约89㎡三房两厅两卫)

(建面约105㎡三房两厅两卫)

(建面约123㎡四房两厅两卫)
想要了解更多楼市资讯,探讨楼市最新动态,欢迎关注微信号:ssjzyw

