今天(3月30日)上午,「鼓楼区重大项目集中开(竣)工暨苏宁睿城(二期)开工现场会」在鼓楼高新园区内清江南路举行,南京市市长韩立明、苏宁控股集团董事长张近东出席活动。

在今天开工现场会上,苏宁睿城二期、苏宁睿城三期住宅(苏宁檀悦)宣布将正式动工。
苏宁睿城(二期)
苏宁睿城(二期)产品(苏宁睿城是苏宁置业深耕布局产城小镇打造的科技生态之城,总体量230万方),涵盖超甲级写字楼集群、苏宁广场、奢品酒店、高端智慧住宅四大核心业态,融合了苏宁多产业生态圈资源与全业态的商业体验场景。

苏宁睿城(二期)由三个地块组成,打造的是一个集高端商业、高端办公集群、高端社区、智慧酒店为一体的超大城市科技综合体。
具体如下:

E0304地块内将建1幢300米办公、2幢186米办公、18幢2层单体商业;
C0102地块内将建1幢8层50米购物中心和180米办公塔楼;
D07地块则由1幢7层商业、1幢13层酒店、1幢155米五星级酒店构成。
苏宁檀悦(三期)
此外,苏宁睿城三期住宅在今天的开工现场会上也确定了案名——“苏宁檀悦”。

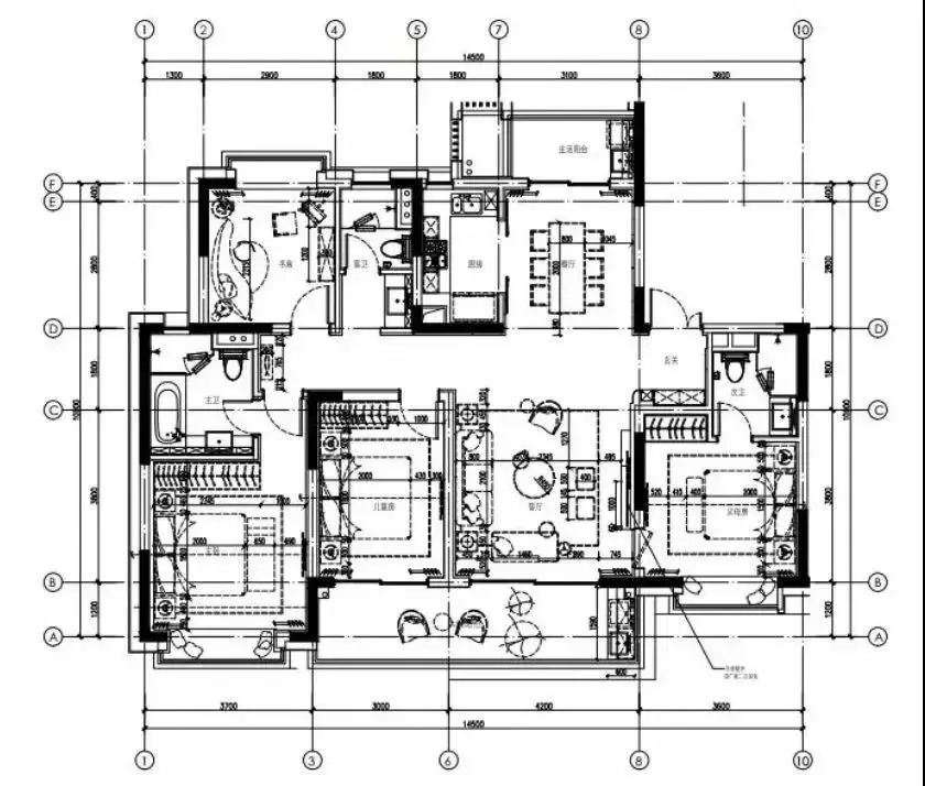
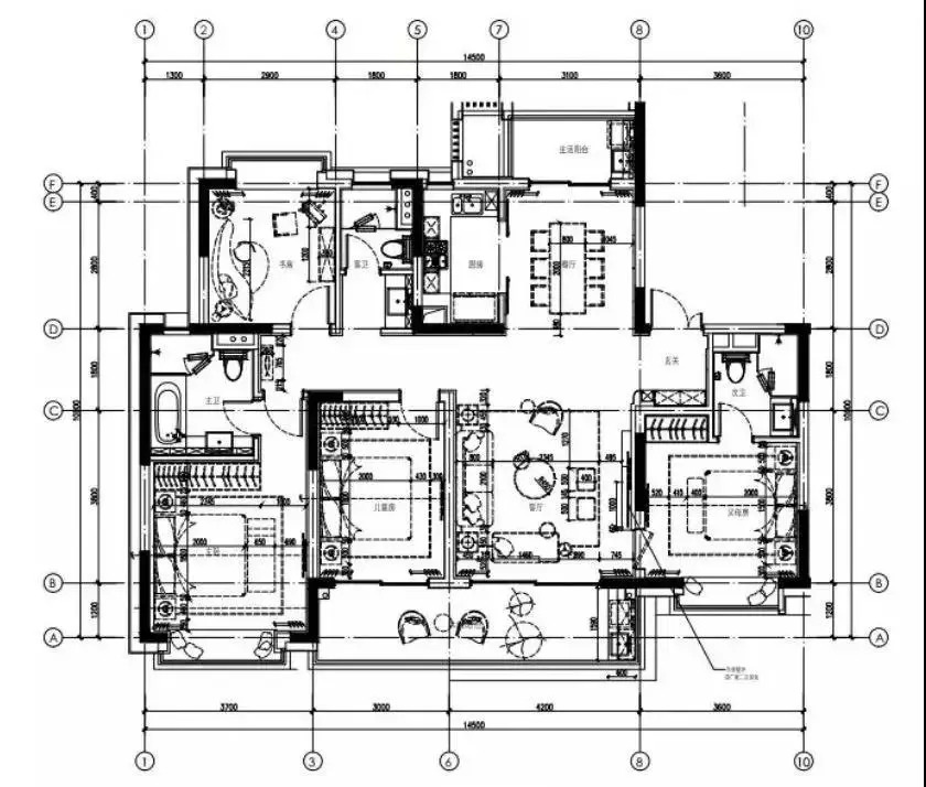
苏宁睿城三期地块由(E01E02)地块和(D0405)地块两幅地块共计16栋楼组成,有162㎡、189㎡、195㎡、240㎡、246㎡5大户型。

E01E02地块规划10栋住宅(14F-28F),共544套房源,户型建面约162㎡、195㎡与246㎡。
D0405地块规划打造6栋住宅(29F),共计384套房源,户型建面约189㎡、238㎡。
据悉,苏宁檀悦项目共有5大户型,162㎡、189㎡、195㎡、240㎡、246㎡。此前,曾被曝光三款户型。
162㎡四房两厅三卫户型:

户型解析:160㎡户型为4房2厅3卫设计,该户型4开间朝南,主卧套间设计,双阳台连接次卧与客厅,其他3房均设有飘窗。
189㎡四房两厅三卫户型:

户型解析:189㎡户型同样也是4开间朝南的户型,整室较为周正,其客厅与“书房”之间没有墙体,整个活动区域空间特别大,舒适度高,主卧为套房设计,私密性强。
240㎡五房两厅三卫户型:

户型解析:240㎡户型为5房2厅3卫设计,该户型多开间朝南,采光面充足,整室较为周正。活动区域为大横厅设计,空间阔绰大气。
周边二手房
在链家二手房网站,苏宁睿城前期住宅的二手房均价62559元/㎡,最高的已经叫价79269元/㎡,接近8万/㎡!


最新的二手房成交,是3月14日刚成交的133㎡高层房源,成交总价840万,单价63158元/㎡。

日前,就传出未来苏宁三期住宅项目放风价将达6.4万/㎡,但具体价格还是要以获批的销许为准。

该项目周边商业配套比较全面,有河西万达、河西金鹰世界等;苏宁睿城最吸引人的是它的双学区,科睿小学(琅小分校)和金陵汇文中学。

此外,与项目一街之隔便是河西唯一一个准现房销售的葛洲坝五矿金陵府项目,项目地价高达3.8万/㎡,项目整体打造9栋住宅楼,其中1栋为保障房,总户数817户,保障房149户,共打造966户,今年大概率不会入市。

除了苏宁檀悦近期有上市计划之外,河西还有四盘也会在近期上市。
河西金茂府
河西金茂府项目预计将于近日开盘,该项目于本月23日领取销许,3月25日上午9时即结束报名登记,目前报名清册还未公布。

金茂府此次加推2、6号楼共106套精装房源销许,均价5.2万/㎡,户型为145㎡三房、185㎡三房和四房(2种户型)。



云际花园
云际花园预计近期首开5#,共计68套房(20%约14套房作为人才房优先人才选择),户型建筑面积约140㎡,预计均价5.5万+/㎡(具体以销许价为准)。

云际花园由保利、招商、国贸联合开发,根据规划,该项目拟建5栋住宅,社区中心以及一所幼儿园。其中,1#、2#、4#、5#为17层小高层;3#为27层高层。

世茂天誉
河西中部世茂天誉,预计在3—4月份加推3号楼,共计258套房源(按照30%的比例,其中77套将作为人才房),建筑面积约165㎡、210㎡、215㎡,前期均价为45000元/㎡。

长江尊邸
河西南的葛洲坝中国府(长江尊邸)4月加推3号楼57套精装修房源,户型面积为230、290㎡,项目此前的销许均价为63999元/㎡,验资420万,首付5成。

