10月17日,河西中纯新盘海玥花园(海玥万物)售楼处和240㎡户型样板间曝光,预计近期正式开放售楼处。
海玥花园前身是上海建工河西中G68地块,是上海建工在河西的第二子。该地块经过87轮竞拍被上海建工以64.8亿元拿下,地价为42561元/平方米,成为当时南京新地王。
海玥花园分A、B两个地块,共打造20幢住宅,限高60米,住宅均为16-18层的小高层,共约500户。
A地块规划建设8栋住宅,1、3、4、5、6、8号楼为18层,2、6、7号楼为17层。
B地块规划建设打造12栋住宅,12、13、15、20、21号楼为18层,11、14、16、18、19号楼为17层,17号楼为16层。
海玥花园售楼处位于项目A地块,共分为三层,后期将作为会所使用。


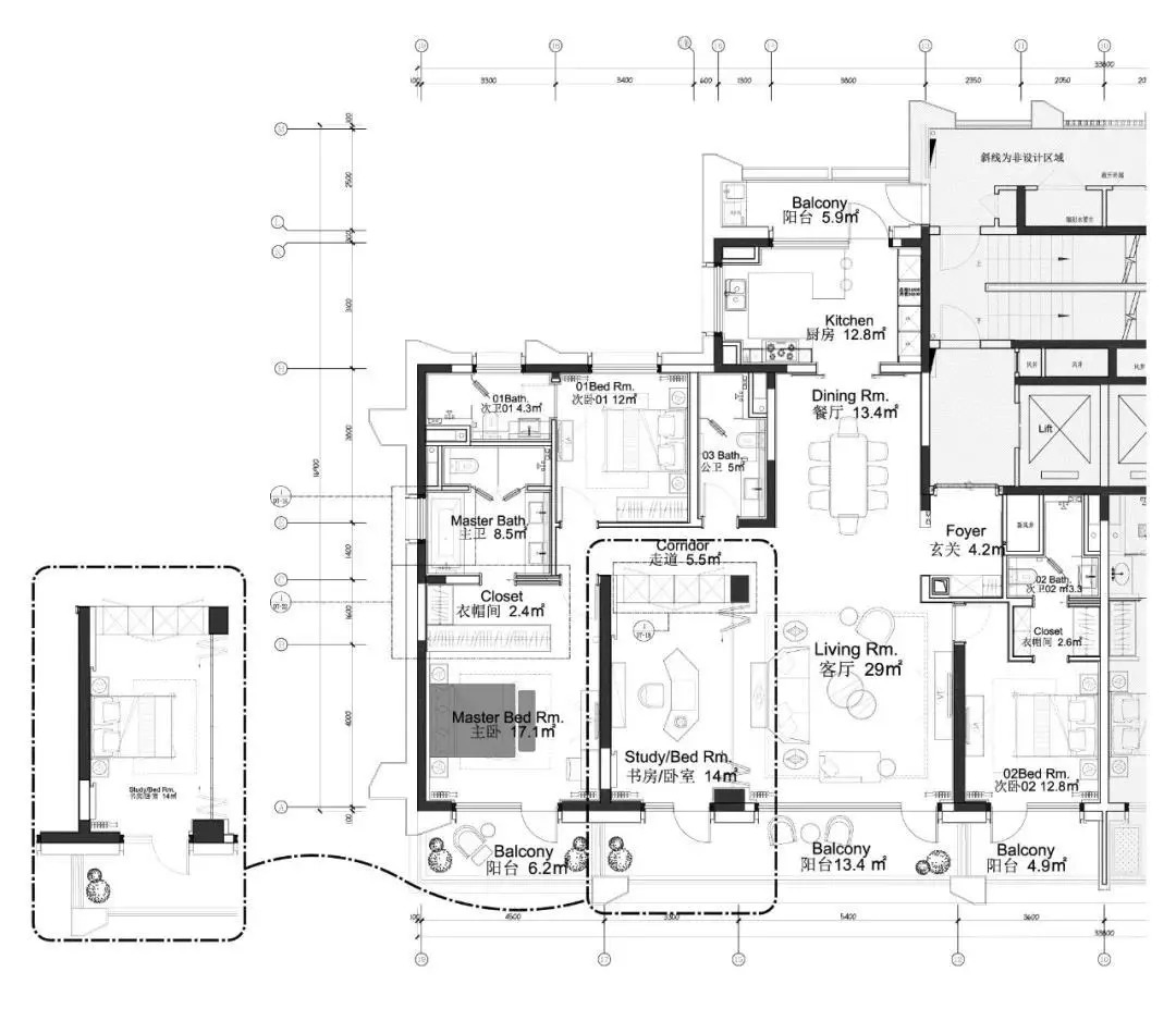
240㎡五房三卫 :

样板间:



网传约240㎡四房四卫户型:

项目预计首开A地块房源(共1-8号楼),面积约240、330、500㎡,两梯两户,价格待定。以曝光的最小240㎡户型,按地价4.25万/㎡来算,总价也将超1000万元;如果按6万/㎡来算,总价将卖1440万元以上;如果按7万/㎡来算,总价将近1700万元!
目前河西中房源还是比较紧缺的。海玥名都去年6月收官,东原印长江去年11月首开即收官;华新城、碧瑶花园三期一直遥遥无期。
华新城

1、开盘房源:本月或将加推7、9、11#号楼三栋住宅,共170套精装房源;
2、户型面积:本次开盘户型142㎡(7号楼68套)、170㎡(9号楼34套)、200㎡(11号楼68套);
4、交付时间:现房销售
5、户型分布&首付情况:

6、户型图:
142㎡ 三房两厅两卫

170㎡ 三房两厅两卫

200㎡ 三房两厅三卫

碧瑶花园三期

1、开盘房源:项目打造4栋小高层,只有228套房源;将在本月开盘,售楼处近期公开;
2、户型面积:90-150㎡;
3、预计价格:按照河西中部新房的价格和前期户型来算,预计单价4.5万元/㎡;
4、首付情况:

6、前期部分户型图:


值得注意的是,该项目于2003年拿地,至今土地年限已经缩水16年。碧瑶花园前期最后一次开盘还是2013年,当时项目开盘均价在24000元/㎡。
保利G22地块规划出炉
近期,南京市规划和自然资源局对保利NO.2019G22 建邺区新城科技园D-15 地块项目规划设计方案,进行了批前公示。根据规划,该地块将拟建5栋住宅,社区中心以及一所幼儿园。

根据公示的规划设计方案可以了解到,项目位于建邺区新城科技园内。北至富春江东街,南至楠溪江东街,东至康苑新村和中(钟)鼎雅居小区,西至创意路。该地块的出让面积为24437.60㎡,用地性质为R2二类居住用地、Rax幼托用地和Rc基层社区中心,容积率为2.58。

据规划,项目共分为ABC三个地块,其中A地块为R2二类居住用地,用地面积21412.67㎡,B地块为Rax幼托用地,用地面积为4053.5㎡,C地块为Rc基层社区用地,用地面积为3024.93㎡。



据了解,该地块在今年6月18日的土拍中,进行了39轮竞价后,被保利江苏房地产发展有限公司以总价20.4亿元竞得,成交楼面价为32356元/㎡。

江心洲纯新盘正式公开
不仅河西中有大动作,江心洲纯新盘仁恒江湾世纪售楼处和样板间已于10月17日正式对外开放。据悉,项目将率先推出C、E地块的小高层产品,面积130、150、179㎡,两梯两户,精装交付,价格待定。
仁恒江湾世纪项目前身是仁恒江心洲G84地块。该地块于2016年12月被仁恒以总价78.4亿竞得,楼面地价14476元/平,占地面积536202.45平米,建筑面积426439.38平米,综合容积率为1.27。

根据规划,仁恒江湾世纪项目共分为A、B、C、D、E、F六个地块。其中,A、C、E、F四个地块为居住用地。
A地块:共19栋,14栋别墅(4层),5栋洋房(6-7层),限高24米;
B地块:共3栋,商业、办公、酒店等配套,容积率≤4.3;
C地块:共9栋,4栋洋房(5-6层),5栋小高层(16-17层),限高80米;
D地块:社区中心(3层),前期将作为售楼处使用,后期为会所配套;
E地块:共22栋,15栋别墅(4层),7栋小高层(17-18层),限高60米;
F地块:共45栋,40栋别墅(4层)约220户,5栋洋房(11层)约300多户,限高35米。

其中E、F地块将打造约1000多户,最小户型130㎡起。
E地块将打造17-18层小高层约400多户,面积段约为130-180㎡,4层低层别墅约70多户,面积段约为220-250㎡。
F地块将打造11层小高层约300多户,面积段约为170㎡左右,4层低层别墅约200户,面积段约为220-250㎡。(最终户型面积及分布以开发商公布为准)

