文/朱承胜
近日,位于江北新区核心区的绿地海悦传出消息,该项目预计4月公开售楼处,并于上半年首开500多套精装房,主力户型为95㎡、110㎡、105㎡、124㎡。有消息称,绿地海悦放风价在3万/㎡。

(图片来源江北地产)
规划显示, 绿地海悦为江北核心区G41地块中的B1、B2、B3以及C1、C2地块。其中,C1地块将建6栋住宅楼(17-20F),C2地块将建5栋住宅楼(17-26F)。从现场施工情况来看,绿地海悦与扬子江金茂悦售楼处已基本建成。目前,内部沙盘、户型模型以及样板间、外部景观都在逐步完善中,且均已有置业顾问驻场。据透露,这两大纯新盘有望在4月中下旬左右公开售楼处。

(绿地海悦售楼处与样板间,样板间内部尚未完全装修完)

此外,同区域内的华润国际社区也计划4-5月份加推最后四栋楼C3、C4、C5、C6号楼,共计约516套精装房源,2梯4户,户型面积89、108、129、144㎡,前期均价在2.8-2.9万/㎡。

面对即将到来的推盘潮,买房人最关心的还是这些楼盘值不值得买?以及怎么选择?
业内观点
江北新区前景可观,核心区对标陆家嘴
其实,谈及楼盘值不值得买,首要参考的还是楼盘所在区域的发展前景。
“十三五”期间,南京城市格局由跨江发展全面转向拥江发展。其中包含了将高标准建设江北新区,把江北新区建设摆在南京改革发展战略全局的突出位置。据悉,江北新区的核心区在规划、产业集聚、城市建设等指标上也是对标的上海陆家嘴这一金融贸易区。

(江北核心区区位)
去年,江北新区重新划定空间架构,其中核心区已扩大到33.2平方公里,将集中开发,发挥引领示范作用。
阳光城市频道主编阳光也表示,江北新区核心区的发展前景一定是整个南京所有新城区中,最被大家所看好。如果想要发展的比较出色的话,周期至少要二十年。南京北站、北沿江高铁等重要的交通枢纽都在逐渐汇聚到江北新区。未来江北新区小到可以连接苏中、苏北等区域发展,大到将扬子江八市有机串联在一起,并实现沿江八市快速通达西南等全国各地区。而南京作为长江下游唯一横跨长江南北的城市,其江北新区,尤其是核心区的整体定位以及它所承担的作用比南京其余新城要高。
江北核心区
三盘联动,华润国际社区日访量最高达200组
目前,江北核心区的核心就是中央商务区。区域内,此前仅华润国际社区一盘在售,未来扬子江金茂悦与绿地海悦将接棒而上。业内人士分析,从地段上来看,华润国际社区类似于江北的“新街口”,即将公开的两大纯新盘则更靠近摩天大楼,商务办公区。

华润国际社区有望在4-5月份加推C3、C4、C5、C6号收官楼,33层,共计约516套精装房源,2梯4户,户型面积89、108、129、144㎡,前期均价2.89万/㎡。

注:
(1)首付按3成比例计算;
(2)月还款标准以按揭30年,首套房房贷率上浮20%来计算。
据了解,华润国际社区自首开至今,每一次开盘都会吸引大批买房人以及媒体的关注,已成为名副其实的“网红盘”。去年12月底,华润国际社区加推就吸引了7248组买房人参与摇号。
从面积段来看,华润国际社区户型面积从89-144㎡,跨度较大,适合大部分刚需、改善客群。
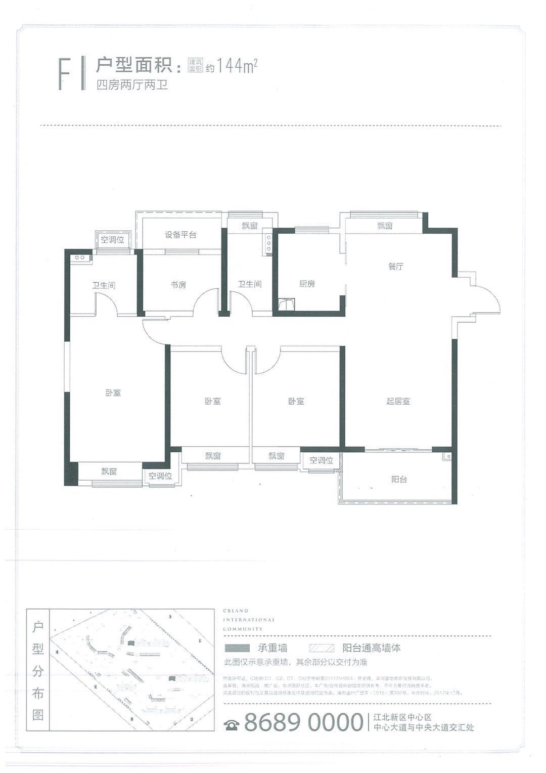
户型图:

(89㎡ 两房两厅一卫)

(108㎡ 两房两厅两卫)

(129㎡ 三房两厅两卫)

(144㎡ 三房两厅两卫)
扬子江金茂悦最快本月公开售楼处,预计上半年首开2栋楼,共计192套精装房,面积90、110、115㎡,其中90㎡户型共有96套,110㎡户型共有48套,115㎡户型共有48套。置业顾问表示,江北目前限价3万/㎡,价格不会低于这个价格。有消息称,项目放风价3.5万/㎡。据了解,此次扬子江金茂悦不会打造金茂系科技住宅。
户型图:


绿地海悦预计4月公开售楼处,并有望上半年首开500多套精装房,主力户型为95㎡、110㎡、105㎡、124㎡,放风价也要3万/㎡。目前,项目户型图尚未公开。
从配套上来看,华润国际社区、扬子江金茂悦与绿地海悦都处于江北核心区的中央商务区。从几何地理上的位置,4条地铁环绕的配套,华润国际社区相对更核心一些。
价格方面,华润国际社区前期均价为2.89万/㎡,受限价制约,此次收官房源应当与前期价格持平,而绿地海悦目前放风价为3万/㎡,扬子江金茂悦放风3.5万/㎡。业内人士分析,如果三盘价格相当,买房人优先考虑纯新盘的可能性比较大。当然,也要看三盘的开盘顺序。
