1. 在看到这组图片之前,我以为自己未来住的小户型会是这样的。
图片来源:网络
2. 也可能是这样的。
图片来源:网络
3. 再不济也是这样的。
图片来源:网络
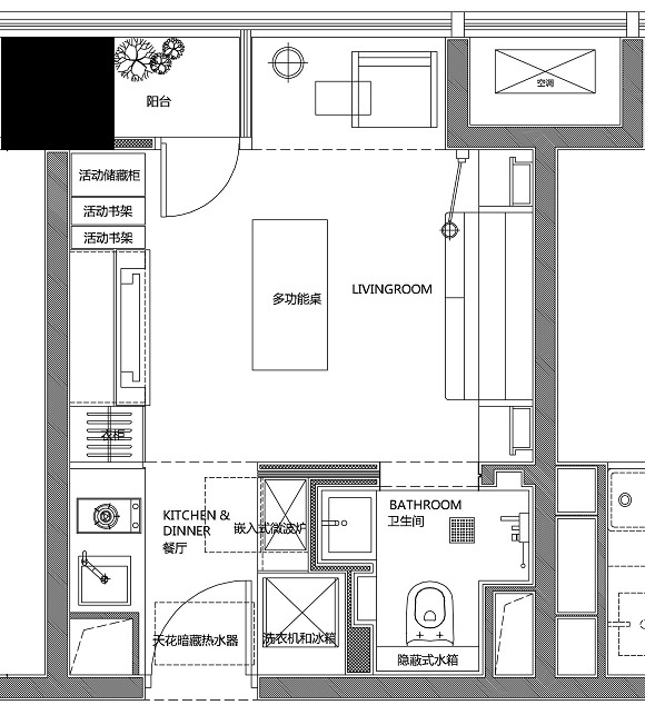
4. 现在,我只觉得自己想太多了,把鞋、酒、书放在一个空间里,真的不会逼死处女座嘛?
图片来源:网络
5. 小空间里自然不能再有吊灯来挤压空间,正对面的左侧是厨房,右侧是卫生间,你看出来了吗?
图片来源:网络
6. 不看内部划分,这方方正正的户型、阳台和空调机的位置,根本就是大学宿舍嘛~
图片来源:网络
7. 不知道有没有视觉错觉,卫生间比想象中宽敞一些,壁挂式电动马桶、天花式花洒、一体式白色石材台盆应有尽有。
图片来源:网络
8. 精确分割灶台下的空间,但是这狭窄的通道真是不给胖子活路。
图片来源:网络
9. 麻雀虽小五脏俱全,日常晾晒用的生活阳台还是有的。
图片来源:网络
10. 沙发前的茶几可翻折为学习用的书桌,回到童年,简直就是边写作业边看电视的利器啊。
图片来源:网络
11. 天花板上垂下来的电动幕帘可以帮助你幻想自己是住在一间正八儿经的卧室里。
图片来源:网络
12. 西式厨房设备(面包机,咖啡机等)符合年轻人的生活习惯。
图片来源:网络
13. 小小的用餐台适合一人早餐,电视旋转一下还可以看看早间新闻。
图片来源:网络
14. 这个设计在小户型装修中很常见,将沙发背后的木板翻转下来就变成了床。
图片来源:网络
15. 整体柜体设计容纳了生活一切所需,如果有个隐藏货梯就更棒了。
图片来源:网络
16. Duang~广角镜头加特效。虽然不比宿舍床位宽多少,但至少看上去软软的。
图片来源:网络
